5-Bedroom, 7354 Sq Ft Spanish Plan with Butler's Pantry

Spanish home (ThePlanCollection: Plan #195-1277)

Images/Plans copyrighted by designer. Photos may reflect homeowner modifications.

About House Plan #195-1277

Sq Ft
7354
Sq Ft
Bedrooms
5
Bedrooms
Bathroom
5
Baths
Half Baths
3
Half Baths
Bedrooms
3
Cars
Bedrooms
1
Stories
Bedrooms
113' 0'
Width
Bedrooms
100
Depth
Starting at$3295.00What's included
STEP 1Bedrooms
STEP 2Bedrooms
STEP 3Bedrooms

Subtotal:$0
Plan Collection

How much will it cost to build?

Estimate your costs based on your location and materials.

Free Cost Instant Estimator

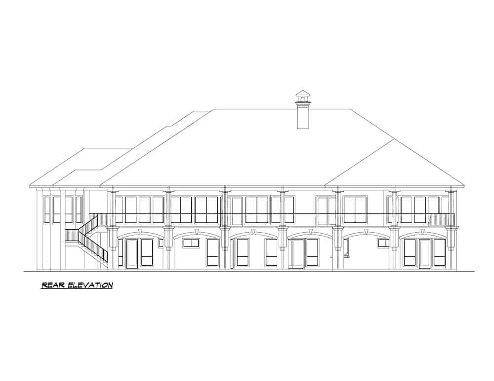
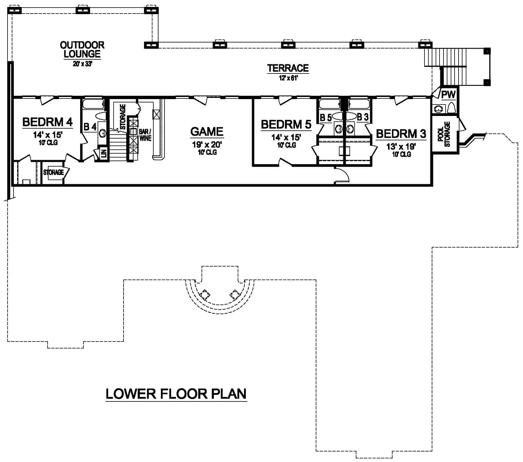
Floor Plans

Floor Plan Main Level
Floor Plan Main Level
Floor Plan Upper Level
Floor Plan Upper Level
Floor Plan Basement
Floor Plan Basement
Plan Collection

Can I modify this plan?

Yes! This plan can be customized—contact us for a free quote.

Additional Notes from Designer

This designer does not offer ICF!

House Plan Description

The design of this Spanish style home will be sure to captivate you with its clean lines and clay tile roofing that stands out in the neighborhood. The estate has been designed with great care and attention with a real understanding of the needs of modern family life. The inviting 1-story floor plan has 7354 square feet of fully conditioned living space and includes 5 bedrooms.

Home Details

Summary
Plan #:195-1277
Starting at:$3295.00
Floors:1
Bedrooms:5
Full Baths:5
Half Baths:3
Garage:
Square Footage
Heated Area:7354 Sq. Ft.
Basement:1920 Sq. Ft.
First Floor:4888 Sq. Ft.
Second Floor:546 Sq. Ft.
Unheated Area:
Garage:857 Sq. Ft.
Dimensions
Architectural Styles
Exterior Wall Material
Brick
Roofing Type
Hip
Roofing Material
Tiles
Roof Pitch
8/12
Ceiling Height
10 Foot Ceiling9 Foot Ceiling
Special Feature
FireplaceDining RoomMud RoomFamily RoomGame RoomMain Level LaundryLibraryMedia RoomColor PhotosSplit BathroomStorageDenWine CellarBalconyOpen Floor Plan
Garage Type
Attached GarageSide Entry
Fireplaces
One Fireplace
Building Lot Type
Corner Lot
Kitchen Features
Kitchen IslandButler's PantryNook/Breakfast AreaWalk-in PantryOutdoor KitchenPeninsula/Eating BarEat-In Kitchen
Porches and Exterior Features
Covered Front PorchCovered Rear Porch
Master Suite Features
Main Floor MasterMaster BathroomWalk In ClosetSitting AreaSplit Master Bedroom

What’s Included

Most plan sets include the following:

icon text-secondary-400 includedDimension Plan

icon text-secondary-400 includedNotation Plan

icon text-secondary-400 includedElectrical Layout

icon text-secondary-400 includedElevations

icon text-secondary-400 includedRoof Plan

icon text-secondary-400 includedGeneral Specifications

icon text-secondary-400 includedGeneral Details

What’s Not Included

These items are  NOT included:

icon text-secondary-400 includedArchitectural or Engineering Stamp - handled locally if required.

icon text-secondary-400 includedSite Plan - handled locally when required.

icon text-secondary-400 includedMechanical Drawings (location of heating and air equipment and ductwork) - your subcontractors handle this.

icon text-secondary-400 includedPlumbing Drawings (drawings showing the actual plumbing pipe sizes and locations) - your subcontractors handle this.

icon text-secondary-400 includedEnergy calculations - handled locally when required.

Related House Plans

Plan Collection
Plan Collection
Plan Collection
Plan#165-1077
Starting at$2450
6690
Sq Ft
1
Story
5
Bed
5
Bath
4
Car
Plan Collection
Plan Collection
Plan Collection
Plan#135-1297
Starting at$0
6105
Sq Ft
1
Story
5
Bed
5.5
Bath
3
Car
Plan Collection
Plan Collection
Plan Collection
Plan#107-1020
Starting at$1900
6095
Sq Ft
1
Story
5
Bed
5
Bath
3
Car
View All

Other Plans By This Designer

Plan Collection
Plan Collection
Plan Collection
Plan#195-1216
Starting at$3295
7587
Sq Ft
2
Story
5
Bed
6.5
Bath
3
Car
Plan Collection
Plan Collection
Plan Collection
Plan#195-1307
Starting at$7995
12720
Sq Ft
2
Story
5
Bed
6.5
Bath
5
Car
Plan Collection
Plan Collection
Plan Collection
Plan#195-1127
Starting at$9995
14727
Sq Ft
2
Story
9
Bed
8.5
Bath
9
Car