3-Bedroom, 3572 Sq Ft Cottage Plan with Bonus Room

Cottage home (ThePlanCollection: Plan #198-1148)

Images/Plans copyrighted by designer. Photos may reflect homeowner modifications.

About House Plan #198-1148

Sq Ft
3572
Sq Ft
Bedrooms
3
Bedrooms
Bathroom
2
Baths
Half Baths
1
Half Baths
Bedrooms
2
Cars
Bedrooms
1
Stories
Bedrooms
104' 6'
Width
Bedrooms
84
Depth
Starting at$2695.00What's included
STEP 1Bedrooms
STEP 2Bedrooms
STEP 3Bedrooms

Subtotal:$0
Plan Collection

How much will it cost to build?

Estimate your costs based on your location and materials.

Free Cost Instant Estimator

Floor Plans

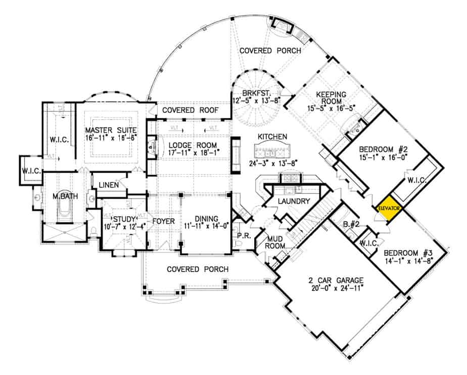
Floor Plan Main Level
Floor Plan Main Level
Floor Plan Bonus Room
Floor Plan Bonus Room
Plan Collection

Can I modify this plan?

Yes! This plan can be customized—contact us for a free quote.

Additional Notes from Designer

NO Material lists.

House Plan Description

Enjoy an exceptional lifestyle of luxury and convenience, with the incredible amenities this Cottage style house offers.  This home is European roots features plenty of room to seat friends and family in the spacious and open floor plan, a perfect home for your enjoyment.  The house has 3572 square feet of fully conditioned living space and with an optional 870-square-foot bonus room. 

The covered porch at the front entry is wide enough for a small sitting area or perhaps a few planters to give the house an added pleasant look. As you enter the home...

Home Details

Summary
Plan #:198-1148
Starting at:$2695.00
Floors:1
Bedrooms:3
Full Baths:2
Half Baths:1
Garage:
Square Footage
Heated Area:3572 Sq. Ft.
First Floor:3572 Sq. Ft.
Unheated Area:
Garage:530 Sq. Ft.
Dimensions
Width:104' 6''
Depth:84' 2''
Architectural Styles
Exterior Wall Material
Rock/StoneShakes
Roofing Type
Gable/Dormer
Roofing Material
Asphalt Shingles
Ceiling Height
10 Foot Ceiling9 Foot Ceiling
Special Feature
FireplaceDining RoomMud RoomBonus RoomFamily RoomMain Level LaundryLibraryColor PhotosSplit BathroomStorageVaulted CeilingsElevatorOpen Floor PlanInterior Photos
Garage Type
Attached GarageSide Entry
Fireplaces
Three Fireplaces
Building Lot Type
Corner Lot
Kitchen Features
Kitchen IslandNook/Breakfast AreaWalk-in PantryPeninsula/Eating BarEat-In Kitchen
Porches and Exterior Features
Covered Front PorchCovered Rear Porch
Master Suite Features
Main Floor MasterMaster BathroomWalk In ClosetSplit Master Bedroom

What’s Included

Most plan sets include the following:

icon text-secondary-400 includedExterior elevations

icon text-secondary-400 includedFoundation plan

icon text-secondary-400 includedDetailed floor plans

icon text-secondary-400 includedInterior details

icon text-secondary-400 includedRoof plan

icon text-secondary-400 includedCross-section details

icon text-secondary-400 includedElectrical layout

What’s Not Included

These items are  NOT included:

icon text-secondary-400 includedArchitectural or Engineering Stamp - handled locally if required.

icon text-secondary-400 includedSite Plan - handled locally when required.

icon text-secondary-400 includedMechanical Drawings (location of heating and air equipment and ductwork) - your subcontractors handle this.

icon text-secondary-400 includedPlumbing Drawings (drawings showing the actual plumbing pipe sizes and locations) - your subcontractors handle this.

icon text-secondary-400 includedEnergy calculations - handled locally when required.

Related House Plans

Plan Collection
Plan Collection
Plan Collection
Plan#142-1209
Starting at$1395
2854
Sq Ft
1
Story
3
Bed
2
Bath
3
Car
Plan Collection
Plan Collection
Plan Collection
Plan#117-1132
Starting at$1345
2787
Sq Ft
1
Story
3
Bed
2.5
Bath
2
Car
Plan Collection
Plan Collection
Plan Collection
Plan#198-1001
Starting at$2495
3126
Sq Ft
1
Story
3
Bed
2.5
Bath
2
Car
View All

Other Plans By This Designer

Plan Collection
Plan Collection
Plan Collection
Plan#198-1053
Starting at$2195
2498
Sq Ft
1.5
Story
3
Bed
3
Bath
3
Car
Plan Collection
Plan Collection
Plan Collection
Plan#198-1054
Starting at$2630
4376
Sq Ft
2
Story
4
Bed
4.5
Bath
3
Car
Plan Collection
Plan Collection
Plan Collection
Plan#198-1060
Starting at$1985
3970
Sq Ft
2
Story
5
Bed
4.5
Bath
2
Car