4-Bedroom, 3527 Sq Ft Acadian Plan with Interior Photos

Acadian home (ThePlanCollection: Plan #206-1021)

Images/Plans copyrighted by designer. Photos may reflect homeowner modifications.

About House Plan #206-1021

Sq Ft
3527
Sq Ft
Bedrooms
4
Bedrooms
Bathroom
3
Baths
Half Baths
1
Half Baths
Bedrooms
3
Cars
Bedrooms
1
Stories
Bedrooms
92' 1'
Width
Bedrooms
84
Depth
Starting at$1795.00What's included
STEP 1Bedrooms
STEP 2Bedrooms
STEP 3Bedrooms

Subtotal:$0
Plan Collection

How much will it cost to build?

Estimate your costs based on your location and materials.

Free Cost Instant Estimator

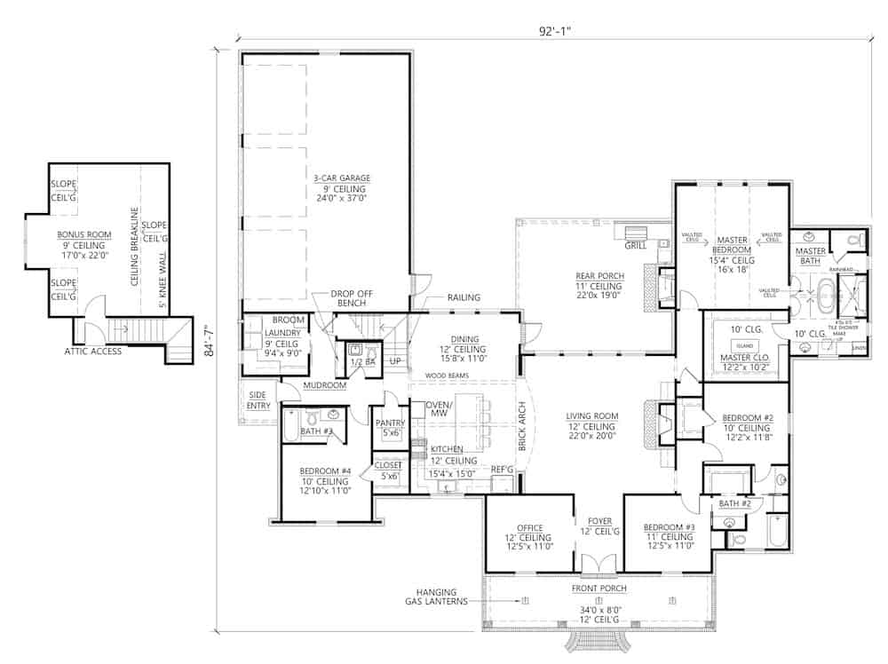
Floor Plans

Floor Plan Main Level
Floor Plan Main Level
Plan Collection

Can I modify this plan?

Yes! This plan can be customized—contact us for a free quote.

House Plan Description

Experience the perfect combination of luxury and comfortable lifestyle offered by this Acadian style home with French overtones, which is sure to grab your attention. The home has so much to offer – between the unique architectural design, spacious layout, and gorgeous exterior – that it's just perfect for family living. The great 1-story family-oriented home has 3527 square feet of fully conditioned living space with a 454-square-foot finished bonus area upstairs.

From the front entry, the porch steps lead directly to the main...

Home Details

Summary
Plan #:206-1021
Starting at:$1795.00
Floors:1
Bedrooms:4
Full Baths:3
Half Baths:1
Garage:
Square Footage
Heated Area:3527 Sq. Ft.
First Floor:3073 Sq. Ft.
Bonus Room:454 Sq. Ft.
Unheated Area:
Garage:971 Sq. Ft.
Porch:701 Sq. Ft.
Dimensions
Width:92' 1''
Depth:84' 7''
Architectural Styles
Exterior Wall Material
Brick
Roofing Type
Hip
Roofing Material
Asphalt Shingles
Roof Pitch
9/12
Ceiling Height
10 Foot Ceiling9 Foot Ceiling11 Foot Ceiling12 Foot Ceiling
Special Feature
FireplaceDining RoomHome OfficeMud RoomBonus RoomFamily RoomMain Level LaundryColor PhotosColor PhotosSplit BathroomStorageOpen Floor PlanInterior PhotosInterior PhotosL-Shaped
Garage Type
Attached GarageSide Entry
Fireplaces
Two Fireplaces
Exterior Wall Framing
2x4
Building Lot Type
Corner Lot
Kitchen Features
Kitchen IslandWalk-in PantryPeninsula/Eating Bar
Porches and Exterior Features
Covered Front PorchCovered Rear PorchFriend's Entry
Master Suite Features
Main Floor MasterMaster BathroomWalk In Closet

What’s Included

Most plan sets include the following:

icon text-secondary-400 includedFloor plan(s)

icon text-secondary-400 includedWindow & door schedules

icon text-secondary-400 includedElectrical layout

icon text-secondary-400 includedExterior elevations

icon text-secondary-400 includedFoundation plan

icon text-secondary-400 includedTypical wall section

icon text-secondary-400 includedFoundation section details

icon text-secondary-400 includedRoof plans

icon text-secondary-400 includedMiscellaneous details

icon text-secondary-400 includedKitchen & bath cabinet elevations

icon text-secondary-400 includedBuilding Cross-Section

What’s Not Included

These items are  NOT included:

icon text-secondary-400 includedArchitectural or Engineering Stamp - handled locally if required.

icon text-secondary-400 includedSite Plan - handled locally when required.

icon text-secondary-400 includedMechanical Drawings (location of heating and air equipment and duct work) - your subcontractors handle this.

icon text-secondary-400 includedPlumbing Drawings (drawings showing the actual plumbing pipe sizes and locations) - your subcontractors handle this.

icon text-secondary-400 includedEnergy calculations - handled locally when required.

Related House Plans

Plan Collection
Plan Collection
Plan Collection
Plan#142-1244
Starting at$1545
3086
Sq Ft
1
Story
4
Bed
3.5
Bath
3
Car
Plan Collection
Plan Collection
Plan Collection
Plan#142-1167
Starting at$1545
3194
Sq Ft
1
Story
4
Bed
3.5
Bath
3
Car
Plan Collection
Plan Collection
Plan Collection
Plan#153-1806
Starting at$1100
2952
Sq Ft
1
Story
4
Bed
3.5
Bath
3
Car
View All

Other Plans By This Designer

Plan Collection
Plan Collection
Plan Collection
Plan#206-1039
Starting at$1245
2230
Sq Ft
1
Story
3
Bed
2.5
Bath
2
Car
Plan Collection
Plan Collection
Plan Collection
Plan#206-1046
Starting at$1195
1817
Sq Ft
1
Story
3
Bed
2
Bath
2
Car
Plan Collection
Plan Collection
Plan Collection
Plan#206-1035
Starting at$1295
2716
Sq Ft
1
Story
4
Bed
3
Bath
3
Car