4-Bedroom, 3505 Sq Ft Country European Plan with High Ceilings

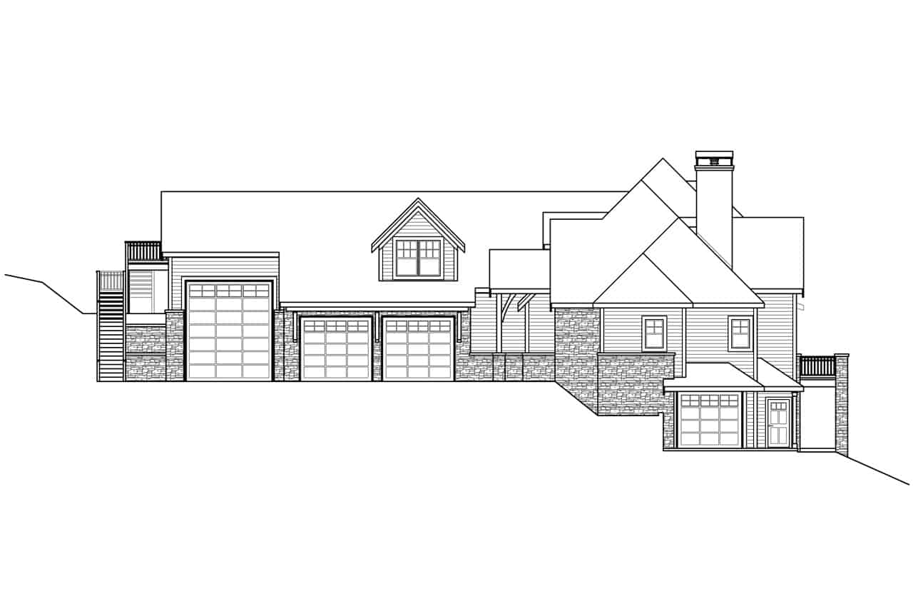
Front elevation of European home (ThePlanCollection: House Plan #108-1974)

Images/Plans copyrighted by designer. Photos may reflect homeowner modifications.

About House Plan #108-1974

Sq Ft
3505
Sq Ft
Bedrooms
4
Bedrooms
Bathroom
4
Baths
Half Baths
1
Half Baths
Bedrooms
5
Cars
Bedrooms
2
Stories
Bedrooms
98' 0'
Width
Bedrooms
104
Depth
Starting at$2000.00What's included
STEP 1Bedrooms
STEP 2Bedrooms
STEP 3Bedrooms

Subtotal:$0
Plan Collection

How much will it cost to build?

Estimate your costs based on your location and materials.

Free Cost Instant Estimator

Floor Plans

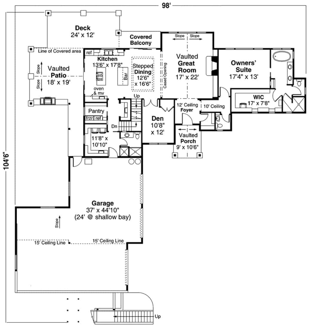
Floor Plan Main Level
Floor Plan Main Level
Floor Plan Upper Level
Floor Plan Upper Level
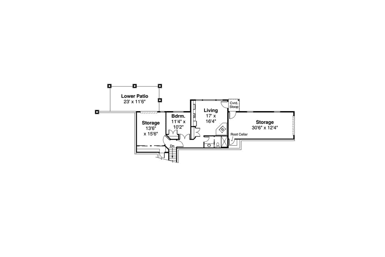
Floor Plan Basement
Floor Plan Basement
Plan Collection

Can I modify this plan?

Yes! This plan can be customized—contact us for a free quote.

Additional Notes from Designer

PLEASE NOTE!! For this designer, The PDF that comes with the PRINT Packages (5 set+PDF and 8 set+PDF) is NOT Modifiable - it is for printing ONLY! PLEASE NOTE!! Optional Foundations (foundations that cost extra money) will take 5-10 business days to complete.

When ordering an optional (priced) foundation, please allow 5–10 days for plan to ship.

House Plan Description

This luxurious European style home with Country characteristics offers you the ease and convenience of everyday living. You'll love the spacious, open layout of the home, which makes it ideal for the whole family. The 1.5-story home's stylish floor plan has 3505 square feet of heated and cooled living space with a finished basement.

Home Details

Summary
Plan #:108-1974
Starting at:$2000.00
Floors:2
Bedrooms:4
Full Baths:4
Half Baths:1
Garage:
Square Footage
Heated Area:3505 Sq. Ft.
Basement:604 Sq. Ft.
First Floor:2223 Sq. Ft.
Second Floor:678 Sq. Ft.
Unheated Area:
Basement:707 Sq. Ft.
Bonus Room:725 Sq. Ft.
Garage:1580 Sq. Ft.
Dimensions
Depth:104' 7''
Architectural Styles
Exterior Wall Material
Vinyl SidingRock/StoneWood Siding
Roofing Type
GableHipGable/Dormer
Roofing Material
Asphalt Shingles
Roof Pitch
12/12
Ceiling Height
10 Foot Ceiling8 Foot Ceiling
Special Feature
FireplaceMud RoomBonus RoomFamily RoomMain Level LaundrySplit BathroomStorageDenVaulted CeilingsBalconyOpen Floor PlanL-Shaped
Garage Type
Attached GarageCourtyard Entry
Fireplaces
Two Fireplaces
Exterior Wall Framing
2x6
Kitchen Features
Kitchen IslandWalk-in PantryPeninsula/Eating Bar
Porches and Exterior Features
Covered Front PorchCovered Rear PorchCovered Rear Patio
Master Suite Features
Main Floor MasterMaster BathroomWalk In ClosetSplit Master Bedroom

What’s Included

Most plan sets include the following:

icon text-secondary-400 included Artist’s rendering of the home,

icon text-secondary-400 included Front/Rear/Left and Right Elevations,

icon text-secondary-400 included Main floor plan, Second or Basement floor plans (if applicable),

icon text-secondary-400 included Foundation plan and detail,

icon text-secondary-400 included Floor framing plan,

icon text-secondary-400 included Roof framing plan, supporting details and

icon text-secondary-400 included Electric layout.

What’s Not Included

These items are  NOT included:

icon text-secondary-400 includedArchitectural or Engineering Stamp - handled locally if required.

icon text-secondary-400 includedSite Plan - handled locally when required.

icon text-secondary-400 includedMechanical Drawings (location of heating and air equipment and ductwork) - your subcontractors handle this.

icon text-secondary-400 includedPlumbing Drawings (drawings showing the actual plumbing pipe sizes and locations) - your subcontractors handle this.

icon text-secondary-400 includedEnergy calculations - handled locally when required.

Related House Plans

Plan Collection
Plan Collection
Plan Collection
Plan#180-1020
Starting at$1800
4304
Sq Ft
2
Story
4
Bed
4.5
Bath
3
Car
Plan Collection
Plan Collection
Plan Collection
Plan#142-1140
Starting at$1545
3360
Sq Ft
2
Story
4
Bed
4.5
Bath
3
Car
Plan Collection
Plan Collection
Plan Collection
Plan#106-1292
Starting at$1695
3302
Sq Ft
2
Story
4
Bed
4.5
Bath
5
Car
View All

Other Plans By This Designer

Plan Collection
Plan Collection
Plan Collection
Plan#108-1923
Starting at$1150
2928
Sq Ft
1
Story
4
Bed
3
Bath
2
Car
Plan Collection
Plan Collection
Plan Collection
Plan#108-1538
Starting at$725
1216
Sq Ft
2
Story
2
Bed
2
Bath
0
Car
Plan Collection
Plan Collection
Plan Collection
Plan#108-2031
Starting at$450
1808
Sq Ft
2
Story
2
Bed
1
Bath
2
Car