5-Bedroom, 2380 Sq Ft Vacation Homes Plan with Covered Rear Porch

Main image for house plan # 3542

Images/Plans copyrighted by designer. Photos may reflect homeowner modifications.

About House Plan #126-1299

Sq Ft
2380
Sq Ft
Bedrooms
5
Bedrooms
Bathroom
3
Baths
Half Baths
1
Half Baths
Bedrooms
0
Cars
Bedrooms
3
Stories
Bedrooms
39' 8'
Width
Bedrooms
36
Depth
Starting at$1715.00What's included
STEP 1Bedrooms
STEP 2Bedrooms
STEP 3Bedrooms

Subtotal:$0
Plan Collection

How much will it cost to build?

Estimate your costs based on your location and materials.

Free Cost Instant Estimator

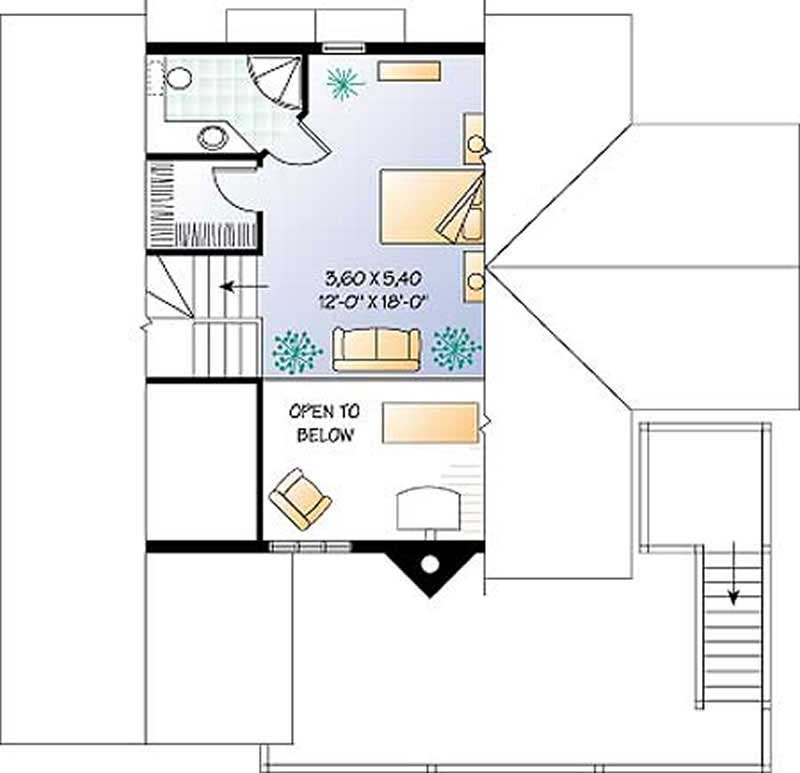
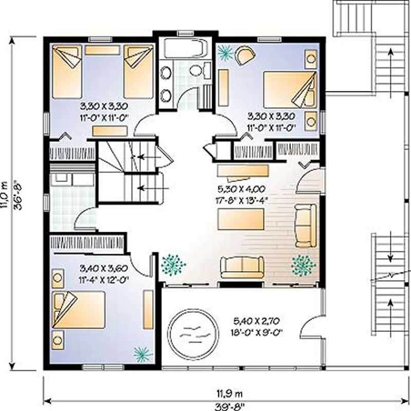
Floor Plans

Main Floor Plan
Main Floor Plan
Upper Floor Plan
Upper Floor Plan
Loft
Loft
Plan Collection

Can I modify this plan?

Yes! This plan can be customized—contact us for a free quote.

Additional Notes from Designer

Please Note that the designer's office will be closed for the summer holidays from July 20th to August 2024. This designer's plans take 7-10 additional business days regardless of the type of delivery (express, email, etc). Please keep this in mind when ordering. BCIN is available for this designer - please submit a modification request for cost and time frame. PLEASE NOTE! This designer's plans do NOT come with an electrical layout. They will provide an electrical layout for an additional fee.

House Plan Description

Some key features of this plan are a master suite, great/gathering room, guest room, kitchen island, snack-bar in kitchen, laundry area, and fireplace. Other features include front porch, deck/patio, special ceiling treatments, observatory, and balcony.

Home Details

Summary
Plan #:126-1299
Starting at:$1715.00
Floors:3
Bedrooms:5
Full Baths:3
Half Baths:1
Garage:
Square Footage
Heated Area:2380 Sq. Ft.
First Floor:962 Sq. Ft.
Second Floor:1076 Sq. Ft.
Third Floor:342 Sq. Ft.
Unheated Area:
Dimensions
Width:39' 8''
Depth:36' 8''
Ridge Height:41'-1' 0''
Architectural Styles
Roof Pitch
10/12
Ceiling Height
8 Foot Ceiling
Special Feature
FireplaceGuest Room
Exterior Wall Framing
2x6
Building Lot Type
Narrow Lot Design
Kitchen Features
Kitchen Island

What’s Included

Most plan sets include the following:

icon text-secondary-400 includedExterior elevations

icon text-secondary-400 includedFoundation plan

icon text-secondary-400 includedMain floor plan

icon text-secondary-400 includedUpper floor plan (if applicable)

icon text-secondary-400 includedRoof plan

icon text-secondary-400 includedTruss diagrams & building sections

icon text-secondary-400 includedConstruction details

icon text-secondary-400 includedTypical wall section

What’s Not Included

These items are  NOT included:

icon text-secondary-400 includedArchitectural or Engineering Stamp - handled locally if required.

icon text-secondary-400 includedSite Plan - handled locally when required.

icon text-secondary-400 includedNo Electrical

icon text-secondary-400 includedMechanical Drawings (location of heating and air equipment and ductwork) - your subcontractors handle this.

icon text-secondary-400 includedPlumbing Drawings (drawings showing the actual plumbing pipe sizes and locations) - your subcontractors handle this.

icon text-secondary-400 includedEnergy calculations - handled locally when required.

Other Plans By This Designer

Plan Collection
Plan Collection
Plan Collection
Plan#126-1856
Starting at$1180
943
Sq Ft
2
Story
3
Bed
2
Bath
0
Car
Plan Collection
Plan Collection
Plan Collection
Plan#126-1325
Starting at$3065
7624
Sq Ft
3
Story
16
Bed
8
Bath
0
Car
Plan Collection
Plan Collection
Plan Collection
Plan#126-1855
Starting at$1125
700
Sq Ft
1
Story
2
Bed
1
Bath
0
Car

By Architectural Style