4-Bedroom, 2260 Sq Ft Southern Plan with Covered Rear Porch

Main image for house plan # 3696

Images/Plans copyrighted by designer. Photos may reflect homeowner modifications.

About House Plan #153-1168

Sq Ft
2260
Sq Ft
Bedrooms
4
Bedrooms
Bathroom
2
Baths
Half Baths
0
Half Baths
Bedrooms
2
Cars
Bedrooms
2
Stories
Bedrooms
39' 4'
Width
Bedrooms
70
Depth
Starting at$1000.00What's included
STEP 1Bedrooms
STEP 2Bedrooms
STEP 3Bedrooms

Subtotal:$0
Plan Collection

How much will it cost to build?

Estimate your costs based on your location and materials.

Free Cost Instant Estimator

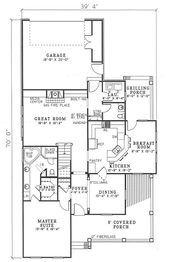
Floor Plans

First Story
First Story
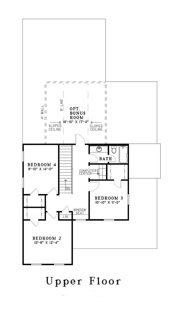
Floor Plan Second Story
Floor Plan Second Story
Plan Collection

Can I modify this plan?

Yes! This plan can be customized—contact us for a free quote.

Additional Notes from Designer

Plans by this designer do NOT usually come with FRAMING - some plans may have framing available for an extra fee - please contact us to find out about a specific plan & we will check with the designer!! Additionally: For this designer, if you choose optional features such as but not limited to: 2x6 framing, reverse or optional basement, the designer will need an additional 2-5 business days to adjust the plan accordingly. Please keep this in mind when choosing your shipping option. If you would like Express or Priority shipping, the designer will ship the plan to you using the method you choose but you will still have the 2-5 business day waiting period BEFORE they ship! Please feel free to contact us with any questions! PLEASE NOTE: Multi-licenses are available. The plans do not come with ICF specifications. If ICF construction method is desired, the CAD plan can be purchased and then forwarded to the ICF dealer and they’ll do a takeoff to assist with that specific projec

House Plan Description

Do you ever long for the quiet, peaceful days of yesterday? This home makes the dream a reality. Forget the hustle and bustle with a traditional wrap around porch designed with 12 inch columns. As the sun begins to fade, travel to the dining room, conveniently accessible to a spacious kitchen by clever swinging doors. Sip hot chocolate in front of a romantic fire or retreat to a private master suite complete with double vanity, corner whirlpool tub and corner glass shower. Adjacent to a bright breakfast nook just off the kitchen is a marvelous grilling porch- perfect for the aspiring grill...

Home Details

Summary
Plan #:153-1168
Starting at:$1000.00
Floors:2
Bedrooms:4
Full Baths:2
Half Baths:0
Garage:
Square Footage
Heated Area:2260 Sq. Ft.
First Floor:1419 Sq. Ft.
Second Floor:841 Sq. Ft.
Unheated Area:
Dimensions
Width:39' 4''
Ridge Height:28-6' 0''
Architectural Styles
Exterior Wall Material
Wood Siding
Roofing Type
Gable
Ceiling Height
9 Foot Ceiling
Special Feature
Dining RoomColor PhotosInterior Photos
Garage Type
Attached Garage
Fireplaces
One Fireplace
Building Lot Type
Narrow Lot Design
Porches and Exterior Features
Wrap Around Porch

What’s Included

Most plan sets include the following:

icon text-secondary-400 included floorplan

icon text-secondary-400 included 4 side exterior elevations,

icon text-secondary-400 included electrical plan,

icon text-secondary-400 included birds-eye view of the roof,

icon text-secondary-400 included foundation plan,

icon text-secondary-400 included and some miscellaneous details. Please Note We do not offer plumbing, HVAC, or window scheduling. This will have to be done on a local level, probably by your building team!

What’s Not Included

These items are  NOT included:

icon text-secondary-400 includedArchitectural or Engineering Stamp - handled locally if required.

icon text-secondary-400 includedSite Plan - handled locally when required.

icon text-secondary-400 includedMechanical Drawings (location of heating and air equipment and ductwork) - your subcontractors handle this.

icon text-secondary-400 includedPlumbing Drawings (drawings showing the actual plumbing pipe sizes and locations) - your subcontractors handle this.

icon text-secondary-400 includedEnergy calculations - handled locally when required.

Related House Plans

Plan Collection
Plan Collection
Plan Collection
Plan#163-1001
Starting at$1230
2757
Sq Ft
2
Story
4
Bed
2.5
Bath
2
Car
Plan Collection
Plan Collection
Plan Collection
Plan#178-1080
Starting at$1005
1980
Sq Ft
2
Story
4
Bed
2.5
Bath
2
Car
Plan Collection
Plan Collection
Plan Collection
Plan#173-1015
Starting at$1150
1840
Sq Ft
2
Story
4
Bed
2.5
Bath
2
Car
View All

Other Plans By This Designer

Plan Collection
Plan Collection
Plan Collection
Plan#153-1432
Starting at$1200
2096
Sq Ft
1
Story
3
Bed
2.5
Bath
3
Car
Plan Collection
Plan Collection
Plan Collection
Plan#153-1744
Starting at$800
1800
Sq Ft
1
Story
3
Bed
2
Bath
2
Car
Plan Collection
Plan Collection
Plan Collection
Plan#153-1608
Starting at$700
1382
Sq Ft
1
Story
3
Bed
2
Bath
2
Car