Estimate your costs based on your location and materials.
Yes! This plan can be customized—contact us for a free quote.
Yes! This plan can be customized—contact us for a free quote.
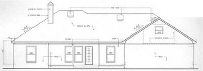
This traditional single story floor plan has a southern-style exterior entrance leading in to living room with fireplace and large rear porch, and two bedrooms on the right. Rear side entry attached two-car garage has storage room and utility. Master bedroom with walk-in closet and bathroom. Study, kitchen, dining room.
Estimate your costs based on your location and materials.
All sales of house plans, modifications, and other products found on this site are final. No refunds or exchanges can be given once your order has begun the fulfillment process. Please see our Policies for additional information.
All plans offered on ThePlanCollection.com are designed to conform to the local building codes when and where the original plan was drawn.
The homes as shown in photographs and renderings may differ from the actual blueprints. For more detailed information, please review the floor plan images herein carefully.
Estimate your costs based on your location and materials.