4-Bedroom, 2812 Sq Ft French Plan with Covered Front Porch

Main image for house plan # 6020

Images/Plans copyrighted by designer. Photos may reflect homeowner modifications.

About House Plan #113-1076

Sq Ft
2812
Sq Ft
Bedrooms
4
Bedrooms
Bathroom
4
Baths
Half Baths
0
Half Baths
Bedrooms
3
Cars
Bedrooms
2
Stories
Bedrooms
59' 0'
Width
Bedrooms
98
Depth
Starting at$625.00What's included
STEP 1Bedrooms
STEP 2Bedrooms
STEP 3Bedrooms

Subtotal:$0
Plan Collection

How much will it cost to build?

Estimate your costs based on your location and materials.

Free Cost Instant Estimator

Floor Plans

Floor Plans
Floor Plans
Plan Collection

Can I modify this plan?

Yes! This plan can be customized—contact us for a free quote.

House Plan Description

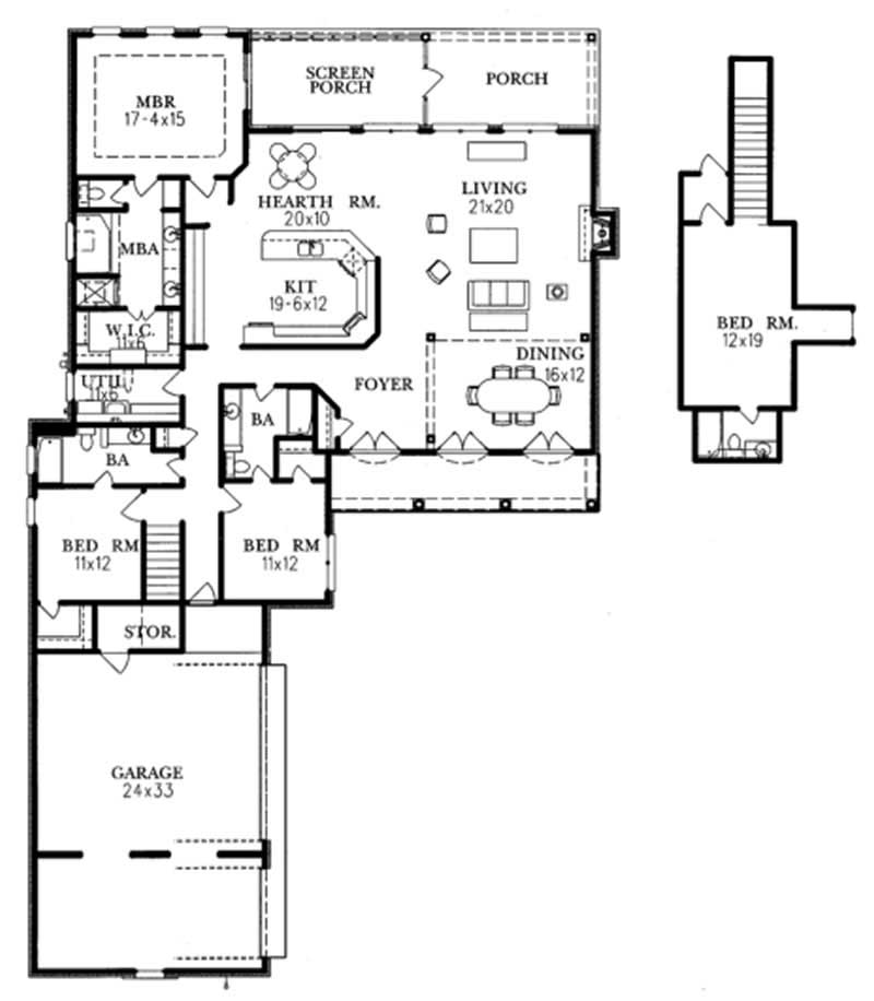
This great French country home has one level with four bedrooms, four bathrooms, and a three-car garage. Porch leads to foyer with hallway access to every room. Kitchen with island separation from living room near hearth. Formal dining room. Two bedrooms, master suite, and utility on main level. Upper Level bedroom and bath access near garage.

Home Details

Summary
Plan #:113-1076
Starting at:$625.00
Floors:2
Bedrooms:4
Full Baths:4
Half Baths:0
Garage:
Square Footage
Heated Area:2812 Sq. Ft.
First Floor:2484 Sq. Ft.
Second Floor:328 Sq. Ft.
Unheated Area:
Dimensions
Ridge Height:28' 0''
Architectural Styles
Exterior Wall Material
BrickStucco
Roofing Type
Hip
Roofing Material
Wood Shakes
Roof Pitch
10/12
Ceiling Height
10 Foot Ceiling
Special Feature
Dining Room
Garage Type
Attached Garage
Fireplaces
One Fireplace
Exterior Wall Framing
2x4

What’s Included

Most plan sets include the following:

icon text-secondary-400 includedInformation Cover Sheet

icon text-secondary-400 includedFoundation Plan

icon text-secondary-400 includedDetailed Floor Plans

icon text-secondary-400 includedWindow & Door Schedules

icon text-secondary-400 includedElectrical Layout

icon text-secondary-400 includedExterior Elevations

icon text-secondary-400 includedBuilding Sections

icon text-secondary-400 includedComplete Construction Details

What’s Not Included

These items are  NOT included:

icon text-secondary-400 includedArchitectural or Engineering Stamp - handled locally if required.

icon text-secondary-400 includedSite Plan - handled locally when required.

icon text-secondary-400 includedMechanical Drawings (location of heating and air equipment and ductwork) - your subcontractors handle this.

icon text-secondary-400 includedPlumbing Drawings (drawings showing the actual plumbing pipe sizes and locations) - your subcontractors handle this.

icon text-secondary-400 includedEnergy calculations - handled locally when required.

Related House Plans

Plan Collection
Plan Collection
Plan Collection
Plan#142-1140
Starting at$1545
3360
Sq Ft
2
Story
4
Bed
4.5
Bath
3
Car
Plan Collection
Plan Collection
Plan Collection
Plan#106-1292
Starting at$1695
3302
Sq Ft
2
Story
4
Bed
4.5
Bath
5
Car
Plan Collection
Plan Collection
Plan Collection
Plan#108-1708
Starting at$1050
2686
Sq Ft
2
Story
4
Bed
4
Bath
2
Car
View All

Other Plans By This Designer

Plan Collection
Plan Collection
Plan Collection
Plan#113-1060
Starting at$325
1719
Sq Ft
1
Story
3
Bed
2
Bath
2
Car
Plan Collection
Plan Collection
Plan Collection
Plan#113-1083
Starting at$400
3450
Sq Ft
2
Story
4
Bed
3
Bath
3
Car
Plan Collection
Plan Collection
Plan Collection
Plan#113-1063
Starting at$350
1835
Sq Ft
1
Story
3
Bed
2
Bath
2
Car