3-Bedroom, 1254 Sq Ft Small House Plans Plan with Covered Rear Porch

Front elevation of Small House Plans home (ThePlanCollection: House Plan #167-1090)

Images/Plans copyrighted by designer. Photos may reflect homeowner modifications.

About House Plan #167-1090

Sq Ft
1254
Sq Ft
Bedrooms
3
Bedrooms
Bathroom
1
Baths
Half Baths
1
Half Baths
Bedrooms
1
Cars
Bedrooms
2
Stories
Bedrooms
53' 0'
Width
Bedrooms
30
Depth
Starting at$700.00What's included
STEP 1Bedrooms
STEP 2Bedrooms
STEP 3Bedrooms

Subtotal:$0
Plan Collection

How much will it cost to build?

Estimate your costs based on your location and materials.

Free Cost Instant Estimator

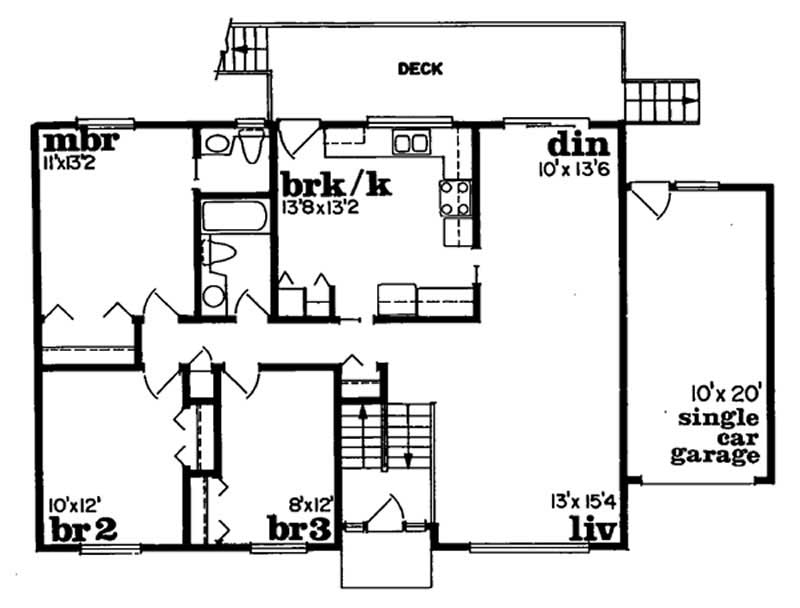
Floor Plans

Main Floor Plan
Main Floor Plan
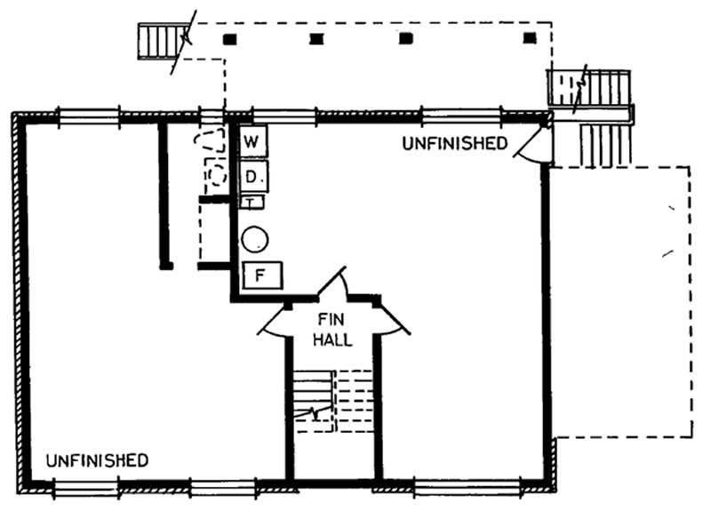
Lower Level Floor Plan
Lower Level Floor Plan
Plan Collection

Can I modify this plan?

Yes! This plan can be customized—contact us for a free quote.

Additional Notes from Designer

For this designer, if you are ordering a CAD, the wait time could be 2-3 weeks, depending on the plan. If you need it sooner, please contact us to find out the wait time. Thank you! PLEASE NOTE! Plans from this designer could take up to 14 days to fulfill, regardless of the plan package that was ordered.

House Plan Description

Commodious And Expandable:Try on this brick-and-wood sided split-level for size. The floor plan is commodious and expandable on the lower level to include a family room, extra bedrooms or an in-law suite.

Home Details

Summary
Plan #:167-1090
Starting at:$700.00
Floors:2
Bedrooms:3
Full Baths:1
Half Baths:1
Garage:
Square Footage
Heated Area:1254 Sq. Ft.
First Floor:1254 Sq. Ft.
Unheated Area:
Dimensions
Ridge Height:21' 0''
Architectural Styles
Exterior Wall Material
Vinyl Siding
Roofing Type
Gable
Roof Pitch
5/12
Ceiling Height
8 Foot Ceiling
Special Feature
Family RoomMain Level Laundry
Garage Type
Attached Garage
Exterior Wall Framing
2x6

What’s Included

Most plan sets include the following:

icon text-secondary-400 includedFLOOR PLAN: Showing all dimensions, window and door locations, laminated beams, columns, floor materials, ceiling heights, fireplace size, and specifications.

icon text-secondary-400 includedFOUNDATION PLAN: Dimensioned plan detailing the location and size of footings, slabs, reinforcing steel, and other structural elements that are required to support the load of the upper floors.

icon text-secondary-400 includedROOF PLAN: Dimensioned plan showing the elements that make up the roof, including notation of spacing and schematics of peaks and valleys.

icon text-secondary-400 includedELECTRICAL PLAN:Specifications, notes, schedules, and plan defining the location of panels, service, lighting fixtures, switches, outlets, fans, etc. NOTE – PLEASE VERIFY

icon text-secondary-400 includedFRONT, REAR, AND SIDE ELEVATIONS:The front, rear, and side elevations of the house as drawn. Shows placement of doors & windows on exterior of house, as well as roof pitches, ridge heights, and locations of chimney, exterior vents, etc. The elevations show the positioning of the final grade of the lot, exterior finishes, and other details that are necessary to give the home exterior architectural styling.

icon text-secondary-400 includedCROSS SECTIONS AND INTERIOR DETAILS:Explain certain special conditions more appropriately. A cross section is basically a view of the home (or parts of the home) if it were sliced down the center. These details can be helpful for the contractor.

icon text-secondary-400 includedFRONT PERSPECTIVE: Artist’s sketch to provide an idea of what the house would look like once built and landscaped.

What’s Not Included

These items are  NOT included:

icon text-secondary-400 includedArchitectural or Engineering Stamp - handled locally if required.

icon text-secondary-400 includedSite Plan - handled locally when required.

icon text-secondary-400 includedMechanical Drawings (location of heating and air equipment and duct work) - your subcontractors handle this.

icon text-secondary-400 includedPlumbing Drawings (drawings showing the actual plumbing pipe sizes and locations) - your subcontractors handle this.

icon text-secondary-400 includedEnergy calculations - handled locally when required.

Related House Plans

Plan Collection
Plan Collection
Plan Collection
Plan#158-1280
Starting at$995
1536
Sq Ft
2
Story
3
Bed
1.5
Bath
1
Car
Plan Collection
Plan Collection
Plan Collection
Plan#157-1096
Starting at$920
1444
Sq Ft
2
Story
3
Bed
1
Bath
0
Car
Plan Collection
Plan Collection
Plan Collection
Plan#158-1288
Starting at$755
1480
Sq Ft
2
Story
3
Bed
1.5
Bath
1
Car
View All

Other Plans By This Designer

Plan Collection
Plan Collection
Plan Collection
Plan#167-1384
Starting at$840
1543
Sq Ft
2
Story
3
Bed
2
Bath
0
Car
Plan Collection
Plan Collection
Plan Collection
Plan#167-1395
Starting at$650
773
Sq Ft
2
Story
1
Bed
1
Bath
2
Car
Plan Collection
Plan Collection
Plan Collection
Plan#167-1433
Starting at$840
1659
Sq Ft
2
Story
3
Bed
2
Bath
0
Car