4-Bedroom, 2484 Sq Ft Country Plan with Kitchen Island

Country home (ThePlanCollection: Plan #139-1076)

Images/Plans copyrighted by designer. Photos may reflect homeowner modifications.

About House Plan #139-1076

Sq Ft
2484
Sq Ft
Bedrooms
4
Bedrooms
Bathroom
2
Baths
Half Baths
1
Half Baths
Bedrooms
2
Cars
Bedrooms
2
Stories
Bedrooms
86' 10'
Width
Bedrooms
53
Depth
Starting at$665.00What's included
STEP 1Bedrooms
STEP 2Bedrooms
STEP 3Bedrooms

Subtotal:$0
Plan Collection

How much will it cost to build?

Estimate your costs based on your location and materials.

Free Cost Instant Estimator

Floor Plans

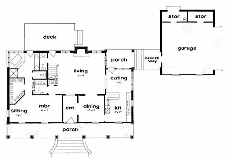
Main Floor Plan
Main Floor Plan
Upper Level Floor Plan
Upper Level Floor Plan
Plan Collection

Can I modify this plan?

Yes! This plan can be customized—contact us for a free quote.

House Plan Description

This lovely country style home design has 2,484 square feet of living space. The two-story floor plan includes 4 bedrooms and 2.5 bathrooms.

Home Details

Summary
Plan #:139-1076
Starting at:$665.00
Floors:2
Bedrooms:4
Full Baths:2
Half Baths:1
Garage:
Square Footage
Heated Area:2484 Sq. Ft.
First Floor:1483 Sq. Ft.
Second Floor:1001 Sq. Ft.
Unheated Area:
Garage:594 Sq. Ft.
Dimensions
Width:86' 10''
Depth:53' 5''
Architectural Styles
Exterior Wall Material
Vinyl SidingBrick
Roofing Type
Gable
Roof Pitch
12/12
Ceiling Height
9 Foot Ceiling
Fireplaces
One Fireplace

What’s Included

Most plan sets include the following:

icon text-secondary-400 includedFoundation Plan

icon text-secondary-400 includedFloor Plan

icon text-secondary-400 includedWindow Listing

icon text-secondary-400 includedSquare Footage Breakdown

icon text-secondary-400 includedElectrical Layout

icon text-secondary-400 includedElevations

icon text-secondary-400 includedBuilding/Cross Sections

icon text-secondary-400 includedRoof Layout (Birdseye View)

What’s Not Included

These items are  NOT included:

icon text-secondary-400 includedArchitectural or Engineering Stamp - handled locally if required.

icon text-secondary-400 includedSite Plan - handled locally when required.

icon text-secondary-400 includedMechanical Drawings (location of heating and air equipment and ductwork) - your subcontractors handle this.

icon text-secondary-400 includedPlumbing Drawings (drawings showing the actual plumbing pipe sizes and locations) - your subcontractors handle this.

icon text-secondary-400 includedEnergy calculations - handled locally when required.

Related House Plans

Plan Collection
Plan Collection
Plan Collection
Plan#169-1035
Starting at$720
2482
Sq Ft
2
Story
4
Bed
2.5
Bath
3
Car
Plan Collection
Plan Collection
Plan Collection
Plan#163-1001
Starting at$1230
2757
Sq Ft
2
Story
4
Bed
2.5
Bath
2
Car
Plan Collection
Plan Collection
Plan Collection
Plan#178-1080
Starting at$1005
1980
Sq Ft
2
Story
4
Bed
2.5
Bath
2
Car
View All

Other Plans By This Designer

Plan Collection
Plan Collection
Plan Collection
Plan#139-1033
Starting at$665
2183
Sq Ft
1
Story
3
Bed
2.5
Bath
2
Car
Plan Collection
Plan Collection
Plan Collection
Plan#139-1206
Starting at$485
1320
Sq Ft
1
Story
3
Bed
2
Bath
2
Car
Plan Collection
Plan Collection
Plan Collection
Plan#139-1089
Starting at$755
3388
Sq Ft
1
Story
4
Bed
4
Bath
3
Car