3-Bedroom, 2450 Sq Ft Country Plan with Master Bathroom

Country home (ThePlanCollection: Plan #139-1155)

Images/Plans copyrighted by designer. Photos may reflect homeowner modifications.

About House Plan #139-1155

Sq Ft
2450
Sq Ft
Bedrooms
3
Bedrooms
Bathroom
2
Baths
Half Baths
1
Half Baths
Bedrooms
2
Cars
Bedrooms
1
Stories
Bedrooms
83' 10'
Width
Bedrooms
62
Depth
Starting at$665.00What's included
STEP 1Bedrooms
STEP 2Bedrooms
STEP 3Bedrooms

Subtotal:$0
Plan Collection

How much will it cost to build?

Estimate your costs based on your location and materials.

Free Cost Instant Estimator

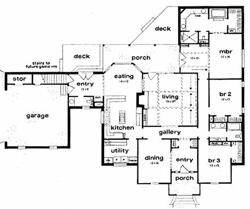
Floor Plans

Main Floor Plan
Main Floor Plan
Plan Collection

Can I modify this plan?

Yes! This plan can be customized—contact us for a free quote.

House Plan Description

This lovely country style home design has 2,450 square feet of living space. The two-story floor plan includes 3 bedrooms and 2.5 bathrooms.

Home Details

Summary
Plan #:139-1155
Starting at:$665.00
Floors:1
Bedrooms:3
Full Baths:2
Half Baths:1
Garage:
Square Footage
Heated Area:2450 Sq. Ft.
First Floor:2450 Sq. Ft.
Unheated Area:
Garage:572 Sq. Ft.
Dimensions
Width:83' 10''
Depth:62' 5''
Architectural Styles
Exterior Wall Material
Vinyl Siding
Roofing Type
Gable
Roof Pitch
8/12
Ceiling Height
8 Foot Ceiling
Garage Type
Attached Garage

What’s Included

Most plan sets include the following:

icon text-secondary-400 includedFoundation Plan

icon text-secondary-400 includedFloor Plan

icon text-secondary-400 includedWindow Listing

icon text-secondary-400 includedSquare Footage Breakdown

icon text-secondary-400 includedElectrical Layout

icon text-secondary-400 includedElevations

icon text-secondary-400 includedBuilding/Cross Sections

icon text-secondary-400 includedRoof Layout (Birdseye View)

What’s Not Included

These items are  NOT included:

icon text-secondary-400 includedArchitectural or Engineering Stamp - handled locally if required.

icon text-secondary-400 includedSite Plan - handled locally when required.

icon text-secondary-400 includedMechanical Drawings (location of heating and air equipment and ductwork) - your subcontractors handle this.

icon text-secondary-400 includedPlumbing Drawings (drawings showing the actual plumbing pipe sizes and locations) - your subcontractors handle this.

icon text-secondary-400 includedEnergy calculations - handled locally when required.

Related House Plans

Plan Collection
Plan Collection
Plan Collection
Plan#142-1168
Starting at$1395
2597
Sq Ft
1
Story
3
Bed
2.5
Bath
2
Car
Plan Collection
Plan Collection
Plan Collection
Plan#117-1092
Starting at$1095
2091
Sq Ft
1
Story
3
Bed
2.5
Bath
2
Car
Plan Collection
Plan Collection
Plan Collection
Plan#142-1158
Starting at$1345
2004
Sq Ft
1
Story
3
Bed
2.5
Bath
2
Car
View All

Other Plans By This Designer

Plan Collection
Plan Collection
Plan Collection
Plan#139-1033
Starting at$665
2183
Sq Ft
1
Story
3
Bed
2.5
Bath
2
Car
Plan Collection
Plan Collection
Plan Collection
Plan#139-1206
Starting at$485
1320
Sq Ft
1
Story
3
Bed
2
Bath
2
Car
Plan Collection
Plan Collection
Plan Collection
Plan#139-1089
Starting at$755
3388
Sq Ft
1
Story
4
Bed
4
Bath
3
Car