3-Bedroom, 1624 Sq Ft European Plan with Covered Front Porch

Main image for house plan # 9374

Images/Plans copyrighted by designer. Photos may reflect homeowner modifications.

About House Plan #158-1232

Sq Ft
1624
Sq Ft
Bedrooms
3
Bedrooms
Bathroom
1
Baths
Half Baths
0
Half Baths
Bedrooms
1
Cars
Bedrooms
2
Stories
Bedrooms
30' 0'
Width
Bedrooms
39
Depth
Starting at$1135.00What's included
STEP 1Bedrooms
STEP 2Bedrooms
STEP 3Bedrooms

Subtotal:$0
Plan Collection

How much will it cost to build?

Estimate your costs based on your location and materials.

Free Cost Instant Estimator

Floor Plans

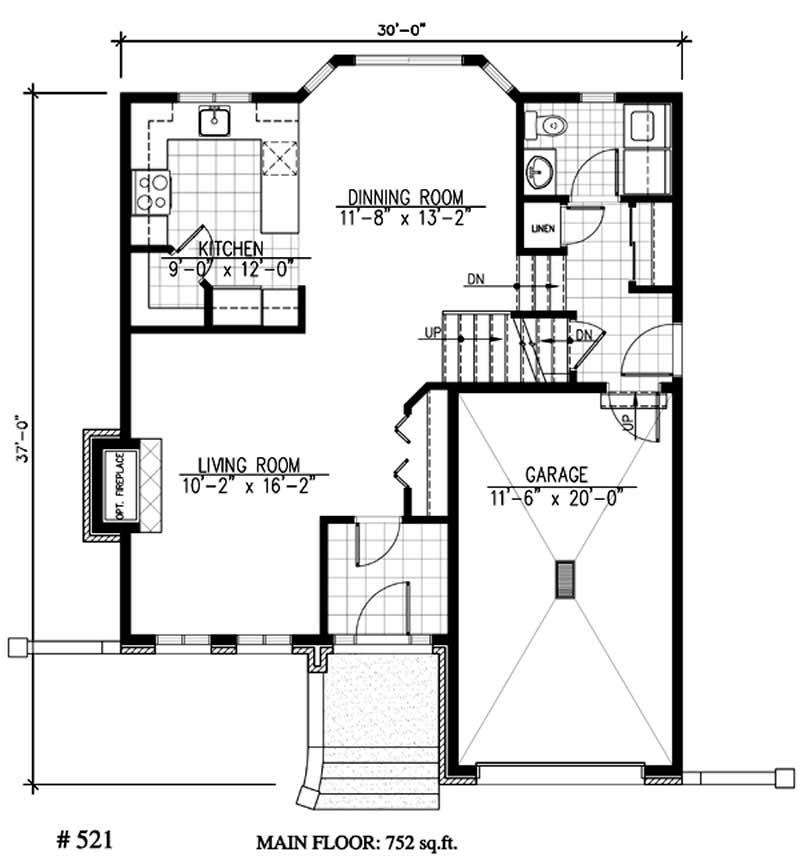
FIRST LEVEL FLOOR PLAN
FIRST LEVEL FLOOR PLAN
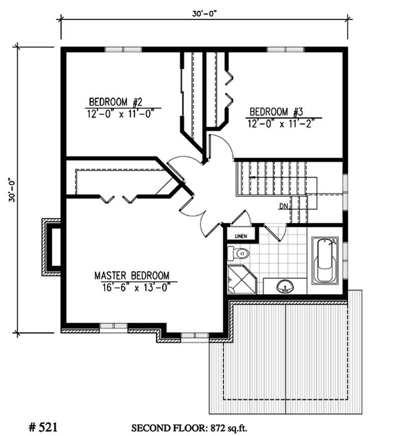
SECOND LEVEL FLOOR PLAN
SECOND LEVEL FLOOR PLAN
Plan Collection

Can I modify this plan?

Yes! This plan can be customized—contact us for a free quote.

Additional Notes from Designer

PLEASE NOTE: Not ALL plans from this designer have a materials list available for purchase as an add-on. Please contact us to verify that it is available BEFORE ordering! This designer does not offer framing or an electrical layout with their plans.

House Plan Description

An open floor plan and second level bedrooms take advantage of every inch of space on a smaller lot.

Home Details

Summary
Plan #:158-1232
Starting at:$1135.00
Floors:2
Bedrooms:3
Full Baths:1
Half Baths:0
Garage:
Square Footage
Heated Area:1624 Sq. Ft.
First Floor:752 Sq. Ft.
Second Floor:872 Sq. Ft.
Unheated Area:
Basement:752 Sq. Ft.
Garage:252 Sq. Ft.
Dimensions
Ridge Height:34' 0''
Architectural Styles
Exterior Wall Material
Rock/Stone
Roofing Type
Hip
Roof Pitch
10/12Other
Ceiling Height
8 Foot Ceiling
Special Feature
FireplaceDining Room
Garage Type
Front Entry
Fireplaces
Optional Fireplace
Exterior Wall Framing
2x6
Building Lot Type
Flat SiteNarrow Lot Design
Master Suite Features
Walk In ClosetSecond Floor Master

What’s Included

Most plan sets include the following:

icon text-secondary-400 includedExterior Elevations

icon text-secondary-400 includedFoundations

icon text-secondary-400 includedMain floor plans

icon text-secondary-400 includedUpper floor plan if applicable

icon text-secondary-400 includedRoof Sections

icon text-secondary-400 includedMiscellaneous

What’s Not Included

These items are  NOT included:

icon text-secondary-400 includedArchitectural or Engineering Stamp - handled locally if required.

icon text-secondary-400 includedNO FRAMING

icon text-secondary-400 includedNO ELECTRICAL

icon text-secondary-400 includedSite Plan - handled locally when required.

icon text-secondary-400 includedMechanical Drawings (location of heating and air equipment and ductwork) - your subcontractors handle this.

icon text-secondary-400 includedPlumbing Drawings (drawings showing the actual plumbing pipe sizes and locations) - your subcontractors handle this.

icon text-secondary-400 includedEnergy calculations - handled locally when required.

Related House Plans

Plan Collection
Plan Collection
Plan Collection
Plan#158-1063
Starting at$995
1689
Sq Ft
2
Story
3
Bed
1.5
Bath
1
Car
Plan Collection
Plan Collection
Plan Collection
Plan#157-1485
Starting at$920
1472
Sq Ft
2
Story
3
Bed
1.5
Bath
1
Car
Plan Collection
Plan Collection
Plan Collection
Plan#158-1044
Starting at$755
1226
Sq Ft
2
Story
3
Bed
1.5
Bath
1
Car
View All

Other Plans By This Designer

Plan Collection
Plan Collection
Plan Collection
Plan#158-1303
Starting at$755
1421
Sq Ft
1
Story
3
Bed
2
Bath
1
Car
Plan Collection
Plan Collection
Plan Collection
Plan#158-1273
Starting at$1255
2130
Sq Ft
2
Story
5
Bed
2.5
Bath
0
Car
Plan Collection
Plan Collection
Plan Collection
Plan#158-1296
Starting at$1455
8277
Sq Ft
2
Story
6
Bed
5.5
Bath
3
Car