1-Bedroom, 3577 Sq Ft Plan with Screened Porch/Sunroom

Front Elevation of this Ranch House (#132-1188) at The Plan Collection.

Images/Plans copyrighted by designer. Photos may reflect homeowner modifications.

About House Plan #132-1188

Sq Ft
3577
Sq Ft
Bedrooms
1
Bedrooms
Bathroom
2
Baths
Half Baths
0
Half Baths
Bedrooms
3
Cars
Bedrooms
1
Stories
Bedrooms
92' 0'
Width
Bedrooms
55
Depth
Starting at$1795.00What's included
STEP 1Bedrooms
STEP 2Bedrooms
STEP 3Bedrooms

Subtotal:$0
Plan Collection

How much will it cost to build?

Estimate your costs based on your location and materials.

Free Cost Instant Estimator

Floor Plans

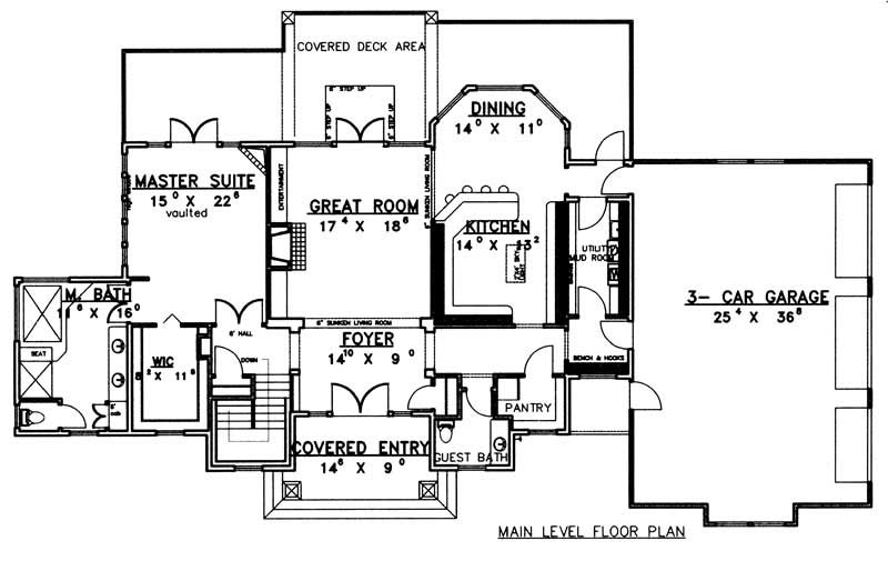
MAIN LEVEL FLOOR PLAN
MAIN LEVEL FLOOR PLAN
BASEMENT FLOOR PLAN
BASEMENT FLOOR PLAN
Plan Collection

Can I modify this plan?

Yes! This plan can be customized—contact us for a free quote.

Additional Notes from Designer

PLEASE NOTE! The CAD - Unlimited package is NOT an unlimited license - it is a license to build up to 5 homes.

House Plan Description

*Standard Frame Construction *3-Car Garage *Unfinished Basement *Storage *Vaulted Master Suite *Eating Bar In Kitchen *Utility/Mud Room *Fireplace In Great Room *Master Bathroom With Double Sinks *Walk-In Kitchen Pantry *Sunken Living Room

Home Details

Summary
Plan #:132-1188
Starting at:$1795.00
Floors:1
Bedrooms:1
Full Baths:2
Half Baths:0
Garage:
Square Footage
Heated Area:3577 Sq. Ft.
Basement:1593 Sq. Ft.
First Floor:1964 Sq. Ft.
Garage:964 Sq. Ft.
Unheated Area:
Dimensions
Depth:55' 5''
Ridge Height:29'6' 0''
Architectural Styles
Exterior Wall Material
Shakes
Roof Pitch
7/12
Ceiling Height
10 Foot Ceiling9 Foot Ceiling
Special Feature
FireplaceMud Room
Garage Type
Attached Garage
Fireplaces
One Fireplace
Exterior Wall Framing
2x6

What’s Included

Most plan sets include the following:

icon text-secondary-400 includedExterior elevations: shows the home on all four sides, calls out exterior finishes, rooflines, window and door locations.

icon text-secondary-400 includedFloor plans: includes interior and exterior dimensions, window/door schedule, wall framing details.

icon text-secondary-400 includedFoundation plan: shows footing, stem wall, and slab placement, including all connection details.

icon text-secondary-400 includedFloor and roof framing plans show truss/rafter placements, including all beams/connection details.

icon text-secondary-400 includedCross-sections: cut-through view of the structure from roof to foundation, shows framing, plate heights, insulation, etc.

icon text-secondary-400 includedElectrical layout

icon text-secondary-400 includedGeneral notes/details to cover the entirety of the project

What’s Not Included

These items are  NOT included:

icon text-secondary-400 includedArchitectural or Engineering Stamp - handled locally if required.

icon text-secondary-400 includedSite Plan - handled locally when required.

icon text-secondary-400 includedMechanical Drawings (location of heating and air equipment and ductwork) - your subcontractors handle this.

icon text-secondary-400 includedPlumbing Drawings (drawings showing the actual plumbing pipe sizes and locations) - your subcontractors handle this.

icon text-secondary-400 includedEnergy calculations - handled locally when required.

Other Plans By This Designer

Plan Collection
Plan Collection
Plan Collection
Plan#132-1697
Starting at$1145
1176
Sq Ft
1
Story
2
Bed
2
Bath
0
Car
Plan Collection
Plan Collection
Plan Collection
Plan#132-1313
Starting at$1245
2281
Sq Ft
2
Story
3
Bed
2.5
Bath
0
Car
Plan Collection
Plan Collection
Plan Collection
Plan#132-1107
Starting at$995
689
Sq Ft
1
Story
1
Bed
1
Bath
0
Car