3-Bedroom, 1816 Sq Ft European Plan with Peninsula/Eating Bar

Main image for house plan # 9828

Images/Plans copyrighted by designer. Photos may reflect homeowner modifications.

About House Plan #105-1100

Sq Ft
1816
Sq Ft
Bedrooms
3
Bedrooms
Bathroom
2
Baths
Half Baths
0
Half Baths
Bedrooms
2
Cars
Bedrooms
1
Stories
Bedrooms
65' 0'
Width
Bedrooms
51
Depth
Starting at$530.00What's included
STEP 1Bedrooms
STEP 2Bedrooms
STEP 3Bedrooms

Subtotal:$0
Plan Collection

How much will it cost to build?

Estimate your costs based on your location and materials.

Free Cost Instant Estimator

Floor Plans

FLOOR PLAN
FLOOR PLAN
Plan Collection

Can I modify this plan?

Yes! This plan can be customized—contact us for a free quote.

House Plan Description

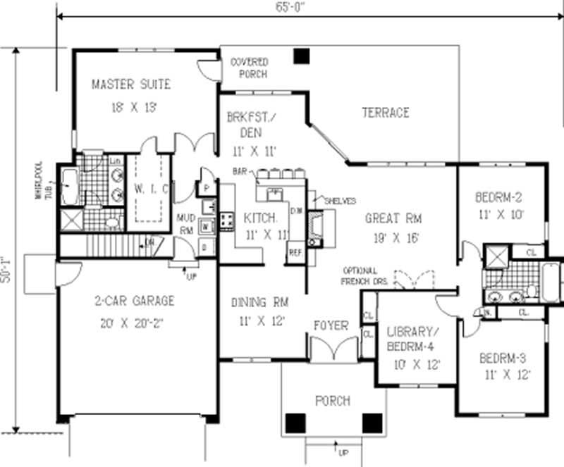
Large, arched windows and a magnificent entry catch the eye, while the floorplan of this attractive single-story home wins the heart. The central Great Room looks onto the rear terrace before unfolding into the sunny breakfast room, where casual meals can be enjoyed at the kitchen's eating bar. A formal dining room hosts more elegant occasions, and the nearby library with optional French doors is the perfect place for after-dinner drinks. The secluded master suite offers private access to a covered porch, a large walk-in closet and a pampering bath with whirlpool tub, while across the home a...

Home Details

Summary
Plan #:105-1100
Starting at:$530.00
Floors:1
Bedrooms:3
Full Baths:2
Half Baths:0
Garage:
Square Footage
Heated Area:1816 Sq. Ft.
First Floor:1816 Sq. Ft.
Unheated Area:
Dimensions
Architectural Styles
Exterior Wall Material
Stucco
Special Feature
Dining RoomLibrary
Garage Type
Attached Garage
Exterior Wall Framing
2x4

What’s Included

Most plan sets include the following:

icon text-secondary-400 includedElevations

icon text-secondary-400 includedSections - Include structural design & specifications

icon text-secondary-400 includedKitchen cabinet elevations

icon text-secondary-400 includedFloor Plan

icon text-secondary-400 includedRoof Plan

icon text-secondary-400 includedTypical wall section

icon text-secondary-400 includedConstruction & Specification notes

icon text-secondary-400 includedSpecial detail sections

icon text-secondary-400 includedPlumbing riser diagram

icon text-secondary-400 includedWindow and door sizes

icon text-secondary-400 includedStructural design joists and beams

icon text-secondary-400 includedElectrical Layout

icon text-secondary-400 includedSpecial Notes

What’s Not Included

These items are  NOT included:

icon text-secondary-400 includedArchitectural or Engineering Stamp - handled locally if required.

icon text-secondary-400 includedSite Plan - handled locally when required.

icon text-secondary-400 includedMechanical Drawings (location of heating and air equipment and ductwork) - your subcontractors handle this.

icon text-secondary-400 includedPlumbing Drawings (drawings showing the actual plumbing pipe sizes and locations) - your subcontractors handle this.

icon text-secondary-400 includedFraming layouts with beam sizes and location

icon text-secondary-400 includedEnergy calculations - handled locally when required.

Related House Plans

Plan Collection
Plan Collection
Plan Collection
Plan#142-1009
Starting at$1295
1500
Sq Ft
1
Story
3
Bed
2
Bath
2
Car
Plan Collection
Plan Collection
Plan Collection
Plan#142-1163
Starting at$1295
1900
Sq Ft
1
Story
3
Bed
2
Bath
2
Car
Plan Collection
Plan Collection
Plan Collection
Plan#141-1259
Starting at$1485
1641
Sq Ft
1
Story
3
Bed
2
Bath
2
Car
View All

Other Plans By This Designer

Plan Collection
Plan Collection
Plan Collection
Plan#105-1052
Starting at$680
2791
Sq Ft
2
Story
4
Bed
2
Bath
3
Car
Plan Collection
Plan Collection
Plan Collection
Plan#105-1043
Starting at$485
1306
Sq Ft
2
Story
3
Bed
2
Bath
1
Car
Plan Collection
Plan Collection
Plan Collection
Plan#105-1009
Starting at$575
2317
Sq Ft
2
Story
5
Bed
2
Bath
0
Car