2-Bedroom, 3860 Sq Ft Ranch Plan with Peninsula/Eating Bar

Front elevation of Ranch home (ThePlanCollection: House Plan #116-1041)

Images/Plans copyrighted by designer. Photos may reflect homeowner modifications.

About House Plan #116-1041

Sq Ft
3860
Sq Ft
Bedrooms
2
Bedrooms
Bathroom
2
Baths
Half Baths
0
Half Baths
Bedrooms
2
Cars
Bedrooms
2
Stories
Bedrooms
89' 0'
Width
Bedrooms
64
Depth
Starting at$3204.33What's included
STEP 1Bedrooms
STEP 2Bedrooms
STEP 3Bedrooms

Subtotal:$0
Plan Collection

How much will it cost to build?

Estimate your costs based on your location and materials.

Free Cost Instant Estimator

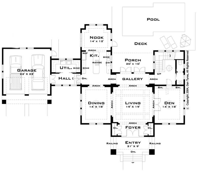
Floor Plans

FIRST FLOOR PLANS
FIRST FLOOR PLANS
SECOND FLOOR PLANS
SECOND FLOOR PLANS
Plan Collection

Can I modify this plan?

Yes! This plan can be customized—contact us for a free quote.

Additional Notes from Designer

CAD files for this plan will be delivered in both DXF (AutoCad readable) and Sketchup Pro formats.

House Plan Description

 This lavish, custom home incorporates the luxury features of todays home with the timeless elegance of the early-twentieth-century Arts & Crafts style. The downstairs features large living, dining, and den. The grand staircase leads to the upstairs family room, and 2 grand bedroom suites.

Home Details

Summary
Plan #:116-1041
Starting at:$3204.33
Floors:2
Bedrooms:2
Full Baths:2
Half Baths:0
Garage:
Square Footage
Heated Area:3860 Sq. Ft.
First Floor:2123 Sq. Ft.
Second Floor:1737 Sq. Ft.
Unheated Area:
Garage:551 Sq. Ft.
Dimensions
Ridge Height:30' 0''
Architectural Styles
Roofing Material
Metal
Roof Pitch
3/12
Ceiling Height
10 Foot Ceiling
Special Feature
Family RoomMain Level Laundry
Exterior Wall Framing
2x4
Porches and Exterior Features
Covered Front Porch

What’s Included

Most plan sets include the following:

icon text-secondary-400 includedFloor plans

icon text-secondary-400 includedExterior elevations

icon text-secondary-400 includedBuilding sections

icon text-secondary-400 includedFoundation plan

icon text-secondary-400 includedFloor & Roof structure layouts

icon text-secondary-400 includedWall section

icon text-secondary-400 includedNotes

icon text-secondary-400 includedElectrical layout (switches, outlets)

icon text-secondary-400 includedUnlimited license

What’s Not Included

These items are  NOT included:

icon text-secondary-400 includedArchitectural or Engineering Stamp - handled locally if required.

icon text-secondary-400 includedSite Plan - handled locally when required.

icon text-secondary-400 includedMechanical Drawings (location of heating and air equipment and ductwork) - your subcontractors handle this.

icon text-secondary-400 includedPlumbing Drawings (drawings showing the actual plumbing pipe sizes and locations) - your subcontractors handle this.

icon text-secondary-400 includedEnergy calculations - handled locally when required.

Related House Plans

Plan Collection
Plan Collection
Plan Collection
Plan#165-1091
Starting at$2050
3006
Sq Ft
2
Story
2
Bed
2
Bath
0
Car
View All

Other Plans By This Designer

Plan Collection
Plan Collection
Plan Collection
Plan#116-1106
Starting at$0
5165
Sq Ft
2
Story
5
Bed
5.5
Bath
3
Car
Plan Collection
Plan Collection
Plan Collection
Plan#116-1086
Starting at$0
2616
Sq Ft
2
Story
2
Bed
2.5
Bath
0
Car
Plan Collection
Plan Collection
Plan Collection
Plan#116-1126
Starting at$0
750
Sq Ft
1
Story
2
Bed
1
Bath
0
Car