1-Bedroom, 1008 Sq Ft Cottage Plan with Open Floor Plan

Front elevation of Cottage home (ThePlanCollection: House Plan #193-1218)

Images/Plans copyrighted by designer. Photos may reflect homeowner modifications.

About House Plan #193-1218

Sq Ft
1008
Sq Ft
Bedrooms
1
Bedrooms
Bathroom
1
Baths
Half Baths
1
Half Baths
Bedrooms
0
Cars
Bedrooms
1
Stories
Bedrooms
60' 3'
Width
Bedrooms
25
Depth
Starting at$1100.00What's included
STEP 1Bedrooms
STEP 2Bedrooms
STEP 3Bedrooms

Subtotal:$0
Plan Collection

How much will it cost to build?

Estimate your costs based on your location and materials.

Free Cost Instant Estimator

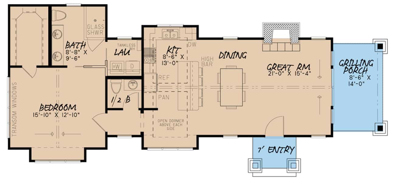
Floor Plans

Main Level
Main Level
Plan Collection

Can I modify this plan?

Yes! This plan can be customized—contact us for a free quote.

Additional Notes from Designer

For this designer, if you choose optional features such as but not limited to: 2x6 exterior walls, reverse or optional basement, the designer will need an additional 2-5 business days to adjust the plan accordingly. Please keep this in mind when choosing your shipping option. if you would like Express or Priority shipping, the designer will ship the plan to you using the method you choose but you will still have the 2-5 business day waiting period BEFORE they ship! This designer does not offer Framing. Please feel free to contact us with any questions!

House Plan Description

WIth 1008 living sq ft, one bedroom, and 1.5 baths, this Craftsman-inspired cottage makes an ideal empty-nester or vacation home. A vaulted ceiling in the Great Room, dining area, kitchen, and nook creates a spacious feel throughout. Open dormers provide for additional light. The kitchen includes an oversized island with seating. The primary bedroom is also vaulted and includes a huge walk-in closet and its own private bath with his-and-her vanities. 

Home Details

Summary
Plan #:193-1218
Starting at:$1100.00
Floors:1
Bedrooms:1
Full Baths:1
Half Baths:1
Garage:
Square Footage
Heated Area:1008 Sq. Ft.
First Floor:1008 Sq. Ft.
Unheated Area:
Porch:147 Sq. Ft.
Dimensions
Width:60' 3''
Depth:25' 4''
Architectural Styles
Exterior Wall Material
Vinyl SidingRock/StoneWood Siding
Roofing Type
Gable/Dormer
Roofing Material
Metal
Roof Pitch
12/122/12
Ceiling Height
9 Foot Ceiling
Special Feature
FireplaceMain Level LaundryColor PhotosOpen Floor PlanInterior Photos
Fireplaces
One Fireplace
Exterior Wall Framing
2x4
Kitchen Features
Kitchen IslandPeninsula/Eating Bar
Porches and Exterior Features
Portico

What’s Included

Most plan sets include the following:

icon text-secondary-400 included Each plan set includes the following:

icon text-secondary-400 included floorplan

icon text-secondary-400 included 4 side exterior elevations,

icon text-secondary-400 included electrical plan,

icon text-secondary-400 included birds-eye view of the roof,

icon text-secondary-400 included foundation plan,

icon text-secondary-400 included and some miscellaneous details. Please Note We do not offer framing, plumbing, HVAC, or window scheduling. This will have to be done on a local level, probably by your building team!

What’s Not Included

These items are  NOT included:

icon text-secondary-400 includedArchitectural or Engineering Stamp - handled locally if required.

icon text-secondary-400 includedSite Plan - handled locally when required.

icon text-secondary-400 includedMechanical Drawings (location of heating and air equipment and ductwork) - your subcontractors handle this.

icon text-secondary-400 includedPlumbing Drawings (drawings showing the actual plumbing pipe sizes and locations) - your subcontractors handle this.

icon text-secondary-400 includedEnergy calculations - handled locally when required.

icon text-secondary-400 includedNo Framing

Related House Plans

Plan Collection
Plan Collection
Plan Collection
Plan#141-1324
Starting at$1205
872
Sq Ft
1
Story
1
Bed
1.5
Bath
0
Car
Plan Collection
Plan Collection
Plan Collection
Plan#126-1554
Starting at$1125
784
Sq Ft
1
Story
1
Bed
1
Bath
0
Car
Plan Collection
Plan Collection
Plan Collection
Plan#141-1313
Starting at$1205
915
Sq Ft
1
Story
1
Bed
1.5
Bath
1
Car
View All

Other Plans By This Designer

Plan Collection
Plan Collection
Plan Collection
Plan#193-1108
Starting at$1350
1905
Sq Ft
1.5
Story
3
Bed
2
Bath
0
Car
Plan Collection
Plan Collection
Plan Collection
Plan#193-1179
Starting at$1000
2006
Sq Ft
1.5
Story
3
Bed
2.5
Bath
2
Car
Plan Collection
Plan Collection
Plan Collection
Plan#193-1145
Starting at$1200
1897
Sq Ft
1
Story
4
Bed
2.5
Bath
3
Car