2-Bedroom, 1024 Sq Ft Country Plan with Main Floor Master

Color Rendering of this house plan

Images/Plans copyrighted by designer. Photos may reflect homeowner modifications.

About House Plan #158-1212

Sq Ft
1024
Sq Ft
Bedrooms
2
Bedrooms
Bathroom
1
Baths
Half Baths
1
Half Baths
Bedrooms
1
Cars
Bedrooms
1
Stories
Bedrooms
34' 0'
Width
Bedrooms
34
Depth
Starting at$895.00What's included
STEP 1Bedrooms
STEP 2Bedrooms
STEP 3Bedrooms

Subtotal:$0
Plan Collection

How much will it cost to build?

Estimate your costs based on your location and materials.

Free Cost Instant Estimator

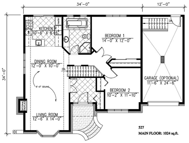
Floor Plans

Floor Plan First Story
Floor Plan First Story
Plan Collection

Can I modify this plan?

Yes! This plan can be customized—contact us for a free quote.

Additional Notes from Designer

PLEASE NOTE: Not ALL plans from this designer have a materials list available for purchase as an add-on. Please contact us to verify that it is available BEFORE ordering! This designer does not offer framing or an electrical layout with their plans.

House Plan Description

This one story home features two bedrooms. The living room and dining room are adjoint and have a long space to spend most of the day. The garage of this home features basement access.

Home Details

Summary
Plan #:158-1212
Starting at:$895.00
Floors:1
Bedrooms:2
Full Baths:1
Half Baths:1
Garage:
Square Footage
Heated Area:1024 Sq. Ft.
First Floor:1024 Sq. Ft.
Unheated Area:
Basement:1024 Sq. Ft.
Garage:282 Sq. Ft.
Dimensions
Ridge Height:24'10"' 0''
Architectural Styles
Exterior Wall Material
Brick
Roofing Type
Hip
Roof Pitch
10/12
Ceiling Height
8 Foot Ceiling
Special Feature
FireplaceDining Room
Garage Type
Front Entry
Fireplaces
Optional Fireplace
Exterior Wall Framing
2x6
Building Lot Type
Flat SiteNarrow Lot Design
Master Suite Features
Main Floor Master

What’s Included

Most plan sets include the following:

icon text-secondary-400 includedExterior Elevations

icon text-secondary-400 includedFoundations

icon text-secondary-400 includedMain floor plans

icon text-secondary-400 includedUpper floor plan if applicable

icon text-secondary-400 includedRoof Sections

icon text-secondary-400 includedMiscellaneous

What’s Not Included

These items are  NOT included:

icon text-secondary-400 includedArchitectural or Engineering Stamp - handled locally if required.

icon text-secondary-400 includedNO FRAMING

icon text-secondary-400 includedNO ELECTRICAL

icon text-secondary-400 includedSite Plan - handled locally when required.

icon text-secondary-400 includedMechanical Drawings (location of heating and air equipment and ductwork) - your subcontractors handle this.

icon text-secondary-400 includedPlumbing Drawings (drawings showing the actual plumbing pipe sizes and locations) - your subcontractors handle this.

icon text-secondary-400 includedEnergy calculations - handled locally when required.

Related House Plans

Plan Collection
Plan Collection
Plan Collection
Plan#141-1184
Starting at$1205
800
Sq Ft
1
Story
2
Bed
1
Bath
0
Car
Plan Collection
Plan Collection
Plan Collection
Plan#109-1010
Starting at$1045
953
Sq Ft
1
Story
2
Bed
1.5
Bath
0
Car
Plan Collection
Plan Collection
Plan Collection
Plan#123-1042
Starting at$850
992
Sq Ft
1
Story
2
Bed
1
Bath
0
Car
View All

Other Plans By This Designer

Plan Collection
Plan Collection
Plan Collection
Plan#158-1303
Starting at$755
1421
Sq Ft
1
Story
3
Bed
2
Bath
1
Car
Plan Collection
Plan Collection
Plan Collection
Plan#158-1273
Starting at$1255
2130
Sq Ft
2
Story
5
Bed
2.5
Bath
0
Car
Plan Collection
Plan Collection
Plan Collection
Plan#158-1296
Starting at$1455
8277
Sq Ft
2
Story
6
Bed
5.5
Bath
3
Car