2-Bedroom, 1064 Sq Ft Compact Farmhouse Plan with a Guest Room and Home Office

Front elevation of Farmhouse home (ThePlanCollection: House Plan #177-1059)

Images/Plans copyrighted by designer. Photos may reflect homeowner modifications.

About House Plan #177-1059

Sq Ft
1064
Sq Ft
Bedrooms
2
Bedrooms
Bathroom
2
Baths
Half Baths
0
Half Baths
Bedrooms
1
Cars
Bedrooms
1
Stories
Bedrooms
52' 0'
Width
Bedrooms
36
Depth
Starting at$1090.00What's included
STEP 1Bedrooms
STEP 2Bedrooms
STEP 3Bedrooms

Subtotal:$0
Plan Collection

How much will it cost to build?

Estimate your costs based on your location and materials.

Free Cost Instant Estimator

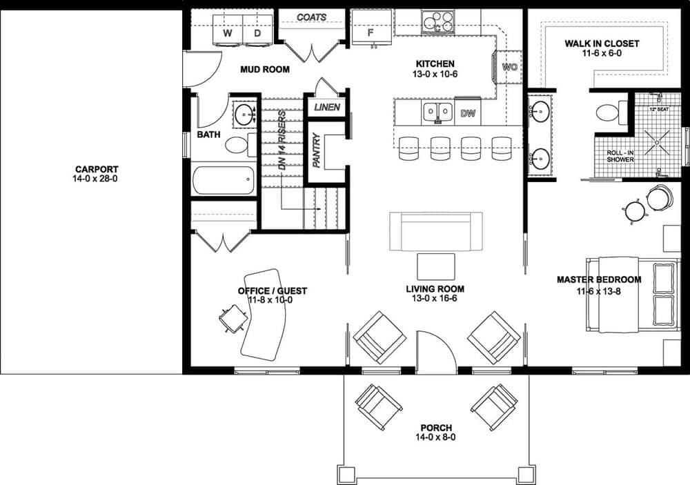
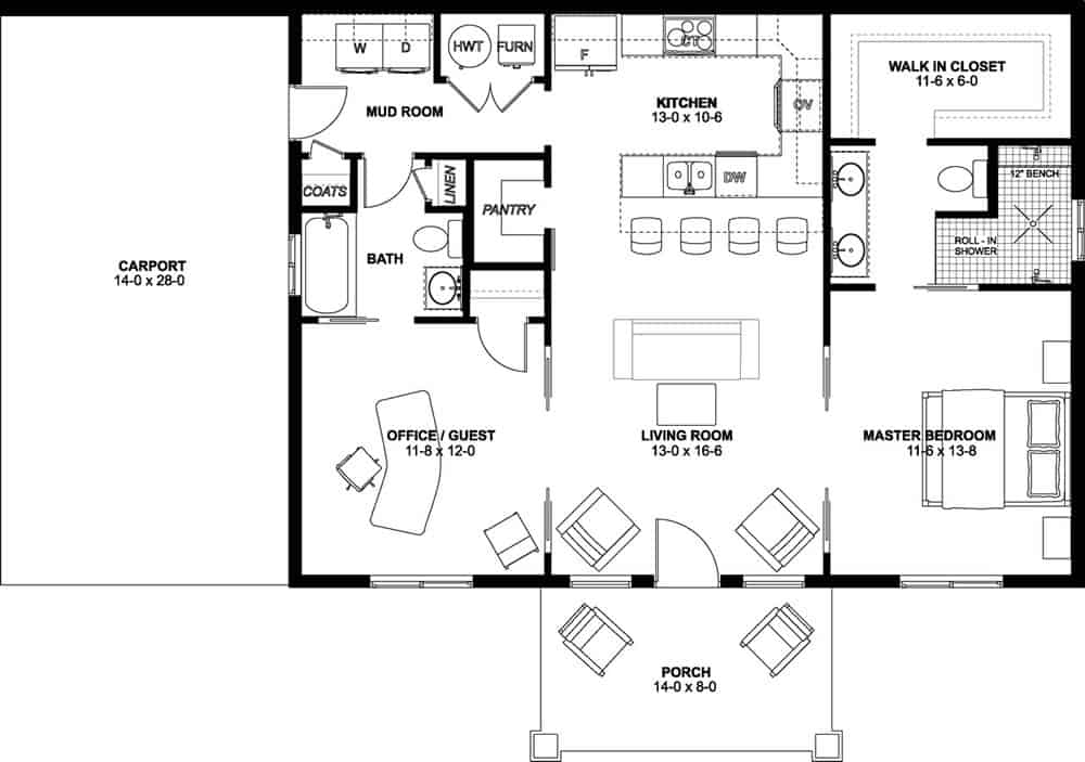
Floor Plans

Floor Plan First Story
Floor Plan First Story
Basement Option Stair Location
Basement Option Stair Location
Plan Collection

Can I modify this plan?

Yes! This plan can be customized—contact us for a free quote.

Additional Notes from Designer

No BCIN available. We advise you purchase a CAD and use a local engineer for BCIN Additional Use Licenses and Unlimited Use Licenses are available. After purchasing the plan, the designer will charge you separately for the additional licenses.

House Plan Description

This compact farmhouse plan with a guest room and home office is perfect for those who want plenty of space. Nine-foot ceilings and pocket doors create an open and airy feel, while the walk-in shower in the master suite is sure to impress. The master suite ensures that there's plenty of room for everyone to get ready in the morning. Looking for a roomy and efficient home plan with plenty of features? Check out this 2-bedroom, 1064 sq ft Farmhouse Plan with Guest Room and Home Office. You'll appreciate the well-designed kitchen with walk-in pantry and peninsula seating for four, as...

Home Details

Summary
Plan #:177-1059
Starting at:$1090.00
Floors:1
Bedrooms:2
Full Baths:2
Half Baths:0
Garage:
Square Footage
Heated Area:1064 Sq. Ft.
First Floor:1064 Sq. Ft.
Unheated Area:
Garage:392 Sq. Ft.
Dimensions
Ridge Height:20' 0''
Architectural Styles
Exterior Wall Material
Wood Siding
Roofing Type
Gable
Roofing Material
Asphalt Shingles
Roof Pitch
8/12
Ceiling Height
9 Foot Ceiling
Special Feature
Guest RoomHome OfficeColor PhotosInterior Photos
Garage Type
Carport
Construction Methods
Structural Insulated
Exterior Wall Framing
2x62x4
Building Lot Type
Flat SiteView Lot
Kitchen Features
Walk-in PantryPeninsula/Eating Bar
Porches and Exterior Features
Covered Front Porch
Master Suite Features
Main Floor MasterMaster BathroomWalk In Closet

What’s Included

Most plan sets include the following:

icon text-secondary-400 includedElectrical Layout

icon text-secondary-400 includedElevations

icon text-secondary-400 includedFoundation

icon text-secondary-400 includedTypically Roof Trusses, a few A-Frames might have the Stick Frame, but mostly roof trusses

icon text-secondary-400 includedWall Section

icon text-secondary-400 includedBuilding Sections

icon text-secondary-400 includedMaterial list available for purchase

icon text-secondary-400 includedCabinet elevations will vary depending on the plan (plans with inside modeling will typically have the cabinet elevations)

What’s Not Included

These items are  NOT included:

icon text-secondary-400 includedArchitectural or Engineering Stamp - handled locally if required.

icon text-secondary-400 includedSite Plan - handled locally when required.

icon text-secondary-400 includedMechanical Drawings (location of heating and air equipment and duct work) - your subcontractors handle this.

icon text-secondary-400 includedPlumbing Drawings (drawings showing the actual plumbing pipe sizes and locations) - your subcontractors handle this.

icon text-secondary-400 includedEnergy calculations - handled locally when required.

Related House Plans

Plan Collection
Plan Collection
Plan Collection
Plan#142-1032
Starting at$1245
900
Sq Ft
1
Story
2
Bed
2
Bath
0
Car
Plan Collection
Plan Collection
Plan Collection
Plan#142-1036
Starting at$1245
900
Sq Ft
1
Story
2
Bed
2
Bath
1
Car
Plan Collection
Plan Collection
Plan Collection
Plan#123-1071
Starting at$850
1292
Sq Ft
1
Story
2
Bed
2
Bath
0
Car
View All

Other Plans By This Designer

Plan Collection
Plan Collection
Plan Collection
Plan#177-1054
Starting at$1040
624
Sq Ft
1
Story
1
Bed
1
Bath
0
Car
Plan Collection
Plan Collection
Plan Collection
Plan#177-1057
Starting at$1040
928
Sq Ft
1
Story
2
Bed
2
Bath
2
Car
Plan Collection
Plan Collection
Plan Collection
Plan#177-1055
Starting at$1090
1244
Sq Ft
1
Story
3
Bed
2
Bath
1
Car