2-Bedroom, 1068 Sq Ft Ranch Plan with Nook/Breakfast Area

Front view of Ranch home (ThePlanCollection: House Plan #146-2372)

Images/Plans copyrighted by designer. Photos may reflect homeowner modifications.

About House Plan #146-2372

Sq Ft
1068
Sq Ft
Bedrooms
2
Bedrooms
Bathroom
1
Baths
Half Baths
1
Half Baths
Bedrooms
2
Cars
Bedrooms
1
Stories
Bedrooms
40' 0'
Width
Bedrooms
52
Depth
Starting at$885.00What's included
STEP 1Bedrooms
STEP 2Bedrooms
STEP 3Bedrooms

Subtotal:$0
Plan Collection

How much will it cost to build?

Estimate your costs based on your location and materials.

Free Cost Instant Estimator

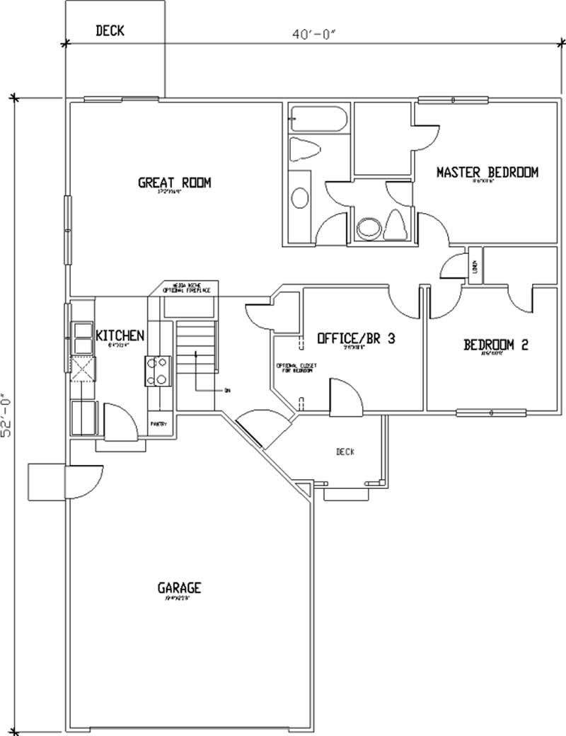
Floor Plans

Main Level
Main Level
Plan Collection

Can I modify this plan?

Yes! This plan can be customized—contact us for a free quote.

House Plan Description

The simple construction of this classic design makes it affordable to build. The fantastic Great Room has an optional fireplace to add warmth to this space, while the deck access brings the outdoors in. The galley kitchen has a handy pantry and access to the garage. The master suite has a large walk-in closet and a private bath. The third bedroom may be used as a home office.

Home Details

Summary
Plan #:146-2372
Starting at:$885.00
Floors:1
Bedrooms:2
Full Baths:1
Half Baths:1
Garage:
Square Footage
Heated Area:1068 Sq. Ft.
First Floor:1068 Sq. Ft.
Unheated Area:
Basement:1040 Sq. Ft.
Garage:482 Sq. Ft.
Dimensions
Ridge Height:16-0' 0''
Architectural Styles
Exterior Wall Material
StuccoWood Siding
Roofing Type
Gable
Roof Pitch
6/12
Special Feature
FireplaceHome Office
Garage Type
Attached GarageFront Entry
Exterior Wall Framing
2x4
Building Lot Type
Narrow Lot Design

What’s Included

Most plan sets include the following:

What’s Not Included

These items are  NOT included:

icon text-secondary-400 includedArchitectural or Engineering Stamp - handled locally if required.

icon text-secondary-400 includedSite Plan - handled locally when required.

icon text-secondary-400 includedMechanical Drawings (location of heating and air equipment and ductwork) - your subcontractors handle this.

icon text-secondary-400 includedPlumbing Drawings (drawings showing the actual plumbing pipe sizes and locations) - your subcontractors handle this.

icon text-secondary-400 includedEnergy calculations - handled locally when required.

Related House Plans

Plan Collection
Plan Collection
Plan Collection
Plan#109-1010
Starting at$1045
953
Sq Ft
1
Story
2
Bed
1.5
Bath
0
Car
Plan Collection
Plan Collection
Plan Collection
Plan#123-1042
Starting at$850
992
Sq Ft
1
Story
2
Bed
1
Bath
0
Car
Plan Collection
Plan Collection
Plan Collection
Plan#142-1031
Starting at$1245
850
Sq Ft
1
Story
2
Bed
1
Bath
0
Car
View All

Other Plans By This Designer

Plan Collection
Plan Collection
Plan Collection
Plan#146-2806
Starting at$980
1933
Sq Ft
2
Story
3
Bed
2
Bath
0
Car
Plan Collection
Plan Collection
Plan Collection
Plan#146-2810
Starting at$1285
3594
Sq Ft
2
Story
4
Bed
3.5
Bath
2
Car
Plan Collection
Plan Collection
Plan Collection
Plan#146-1917
Starting at$1120
2525
Sq Ft
2
Story
4
Bed
2.5
Bath
3
Car

By Architectural Style

By Feature

By Region