Front view of Duplex/Multi-Unit home (ThePlanCollection: House Plan #146-2743)

Images/Plans copyrighted by designer. Photos may reflect homeowner modifications.

About House Plan #146-2743

Sq Ft
1135
Sq Ft
Bedrooms
1
Bedrooms
Bathroom
1
Baths
Half Baths
1
Half Baths
Bedrooms
1
Cars
Bedrooms
2
Stories
Bedrooms
117' 0'
Width
Bedrooms
48
Depth
Starting at$1645.00What's included
STEP 1Bedrooms
STEP 2Bedrooms
STEP 3Bedrooms

Subtotal:$0
Plan Collection

How much will it cost to build?

Estimate your costs based on your location and materials.

Free Cost Instant Estimator

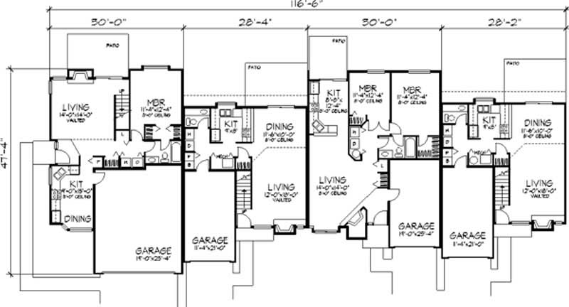
Floor Plans

Main Level
Main Level
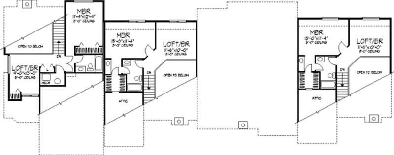
Upper Level
Upper Level
Plan Collection

Can I modify this plan?

Yes! This plan can be customized—contact us for a free quote.

House Plan Description

This flexible plan offers three different design possibilities to better meet any special requirements. Unit C is a ranch unit with a one-car garage; Unit B is a two-story with a one-car garage; Unit A is a two-story with a two-car garage. Each design features an efficient use of space. Each unit contains its own laundry facility, and each living room features its own cozy fireplace. Units A and B have vaulted living rooms.

Home Details

Summary
Plan #:146-2743
Starting at:$1645.00
Floors:2
Bedrooms:1
Full Baths:1
Half Baths:1
Garage:
Square Footage
Heated Area:1135 Sq. Ft.
First Floor:642 Sq. Ft.
Second Floor:493 Sq. Ft.
Unheated Area:
Dimensions
Ridge Height:25-0' 0''
Architectural Styles
Exterior Wall Material
Rock/StoneWood Siding
Roofing Type
Gable
Special Feature
Fireplace
Garage Type
Attached GarageFront Entry
Fireplaces
One Fireplace
Exterior Wall Framing
2x4

What’s Included

Most plan sets include the following:

What’s Not Included

These items are  NOT included:

icon text-secondary-400 includedArchitectural or Engineering Stamp - handled locally if required.

icon text-secondary-400 includedSite Plan - handled locally when required.

icon text-secondary-400 includedMechanical Drawings (location of heating and air equipment and ductwork) - your subcontractors handle this.

icon text-secondary-400 includedPlumbing Drawings (drawings showing the actual plumbing pipe sizes and locations) - your subcontractors handle this.

icon text-secondary-400 includedEnergy calculations - handled locally when required.

Related House Plans

Plan Collection
Plan Collection
Plan Collection
Plan#146-2116
Starting at$1645
900
Sq Ft
2
Story
1
Bed
1
Bath
0
Car
Plan Collection
Plan Collection
Plan Collection
Plan#146-1458
Starting at$885
960
Sq Ft
2
Story
1
Bed
1
Bath
0
Car
Plan Collection
Plan Collection
Plan Collection
Plan#146-2118
Starting at$1645
950
Sq Ft
2
Story
1
Bed
1.5
Bath
1
Car
View All

Other Plans By This Designer

Plan Collection
Plan Collection
Plan Collection
Plan#146-2806
Starting at$980
1933
Sq Ft
2
Story
3
Bed
2
Bath
0
Car
Plan Collection
Plan Collection
Plan Collection
Plan#146-2810
Starting at$1285
3594
Sq Ft
2
Story
4
Bed
3.5
Bath
2
Car
Plan Collection
Plan Collection
Plan Collection
Plan#146-1917
Starting at$1120
2525
Sq Ft
2
Story
4
Bed
2.5
Bath
3
Car