3-Bedroom, 1141 Sq Ft Ranch Plan with Covered Front Porch

Front elevation of Ranch home (ThePlanCollection: House Plan #124-1061)

Images/Plans copyrighted by designer. Photos may reflect homeowner modifications.

About House Plan #124-1061

Sq Ft
1141
Sq Ft
Bedrooms
3
Bedrooms
Bathroom
2
Baths
Half Baths
0
Half Baths
Bedrooms
1
Cars
Bedrooms
1
Stories
Bedrooms
54' 0'
Width
Bedrooms
29
Depth
Starting at$645.00What's included
STEP 1Bedrooms
STEP 2Bedrooms
STEP 3Bedrooms

Subtotal:$0
Plan Collection

How much will it cost to build?

Estimate your costs based on your location and materials.

Free Cost Instant Estimator

Floor Plans

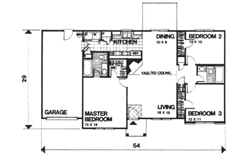
Main Floor Plan
Main Floor Plan
Plan Collection

Can I modify this plan?

Yes! This plan can be customized—contact us for a free quote.

House Plan Description

This lovely small ranch style home (House Plan #124-1061) has 1141 square feet of living space. The 1 story floor plan includes 3 bedrooms. Fireplace, Separate Pantry or Kirchen, Garden Tub, Laundry Room, Vaulted ceilings.

Home Details

Summary
Plan #:124-1061
Starting at:$645.00
Floors:1
Bedrooms:3
Full Baths:2
Half Baths:0
Garage:
Square Footage
Heated Area:1141 Sq. Ft.
First Floor:1141 Sq. Ft.
Unheated Area:
Dimensions
Architectural Styles
Roofing Type
Gable
Roof Pitch
7/12
Ceiling Height
8 Foot Ceiling
Special Feature
FireplaceMain Level LaundryColor PhotosVaulted CeilingsOpen Floor Plan
Garage Type
Attached GarageFront Entry
Fireplaces
One Fireplace
Exterior Wall Framing
2x4
Building Lot Type
Flat Site
Master Suite Features
Main Floor MasterMaster BathroomWalk In Closet

What’s Included

Most plan sets include the following:

icon text-secondary-400 includedCover sheet

icon text-secondary-400 includedFoundation plan

icon text-secondary-400 includedFloor plans

icon text-secondary-400 includedExterior elevations

icon text-secondary-400 includedBuilding cross-sections

icon text-secondary-400 includedTypical wall section

icon text-secondary-400 includedBasic details

icon text-secondary-400 includedSpecification notes

What’s Not Included

These items are  NOT included:

icon text-secondary-400 includedArchitectural or Engineering Stamp - handled locally if required.

icon text-secondary-400 includedSite Plan - handled locally when required.

icon text-secondary-400 includedMechanical Drawings (location of heating and air equipment and ductwork) - your subcontractors handle this.

icon text-secondary-400 includedPlumbing Drawings (drawings showing the actual plumbing pipe sizes and locations) - your subcontractors handle this.

icon text-secondary-400 includedEnergy calculations - handled locally when required.

Related House Plans

Plan Collection
Plan Collection
Plan Collection
Plan#142-1041
Starting at$1245
1300
Sq Ft
1
Story
3
Bed
2
Bath
2
Car
Plan Collection
Plan Collection
Plan Collection
Plan#176-1012
Starting at$600
1412
Sq Ft
1
Story
3
Bed
2
Bath
0
Car
Plan Collection
Plan Collection
Plan Collection
Plan#142-1046
Starting at$1245
1300
Sq Ft
1
Story
3
Bed
2
Bath
2
Car
View All

Other Plans By This Designer

Plan Collection
Plan Collection
Plan Collection
Plan#124-1092
Starting at$645
1488
Sq Ft
1
Story
3
Bed
2
Bath
2
Car
Plan Collection
Plan Collection
Plan Collection
Plan#124-1063
Starting at$645
1265
Sq Ft
2
Story
2
Bed
2
Bath
1
Car
Plan Collection
Plan Collection
Plan Collection
Plan#124-1082
Starting at$645
988
Sq Ft
1
Story
2
Bed
2
Bath
0
Car