Estimate your costs based on your location and materials.
Yes! This plan can be customized—contact us for a free quote.
Yes! This plan can be customized—contact us for a free quote.
For our Ontario customers - BCIN is available for this designer's plans. Please submit a modification request to receive a free quote.
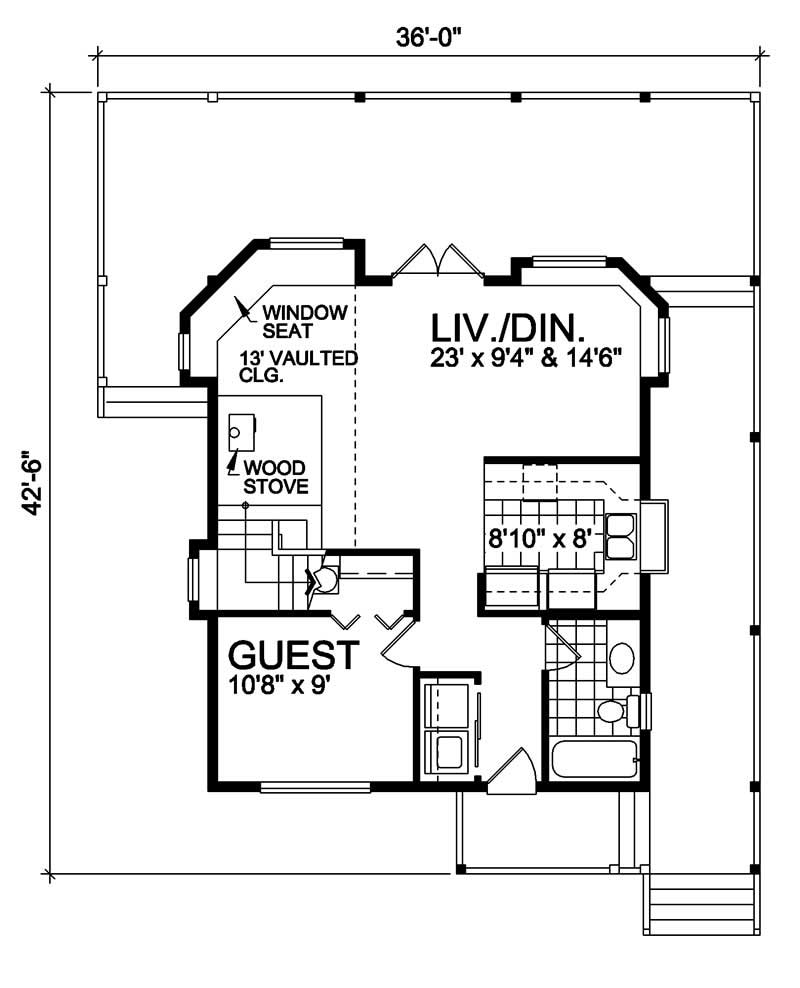
This country lake home has 1154 square feet of living space. The 2-story floor plan includes 2 bedrooms and 2 bathrooms.
The economical 24' wide by 28' deep footprint is further enhanced with an expansive 10' deep partially covered sundeck, promoting many outdoor activities and capturing the rear view. Window seats in the sitting/dining areas are warmed by the wood stove, encouraging cozy indoor moments. The U-shaped kitchen is brightened with a greenhouse window, perfect for plant enthusiasts. The second-story art studio boasts a voluminous 13' high sloped...
Estimate your costs based on your location and materials.
All sales of house plans, modifications, and other products found on this site are final. No refunds or exchanges can be given once your order has begun the fulfillment process. Please see our Policies for additional information.
All plans offered on ThePlanCollection.com are designed to conform to the local building codes when and where the original plan was drawn.
The homes as shown in photographs and renderings may differ from the actual blueprints. For more detailed information, please review the floor plan images herein carefully.
Estimate your costs based on your location and materials.