2-Bedroom, 1164 Sq Ft Craftsman Plan with Open Floor Plan

Front elevation of Craftsman home (ThePlanCollection: House Plan #205-1228)

Images/Plans copyrighted by designer. Photos may reflect homeowner modifications.

About House Plan #205-1228

Sq Ft
1164
Sq Ft
Bedrooms
2
Bedrooms
Bathroom
2
Baths
Half Baths
0
Half Baths
Bedrooms
2
Cars
Bedrooms
1
Stories
Bedrooms
47' 0'
Width
Bedrooms
79
Depth
Starting at$1775.00What's included
STEP 1Bedrooms
STEP 2Bedrooms
STEP 3Bedrooms

Subtotal:$0
Plan Collection

How much will it cost to build?

Estimate your costs based on your location and materials.

Free Cost Instant Estimator

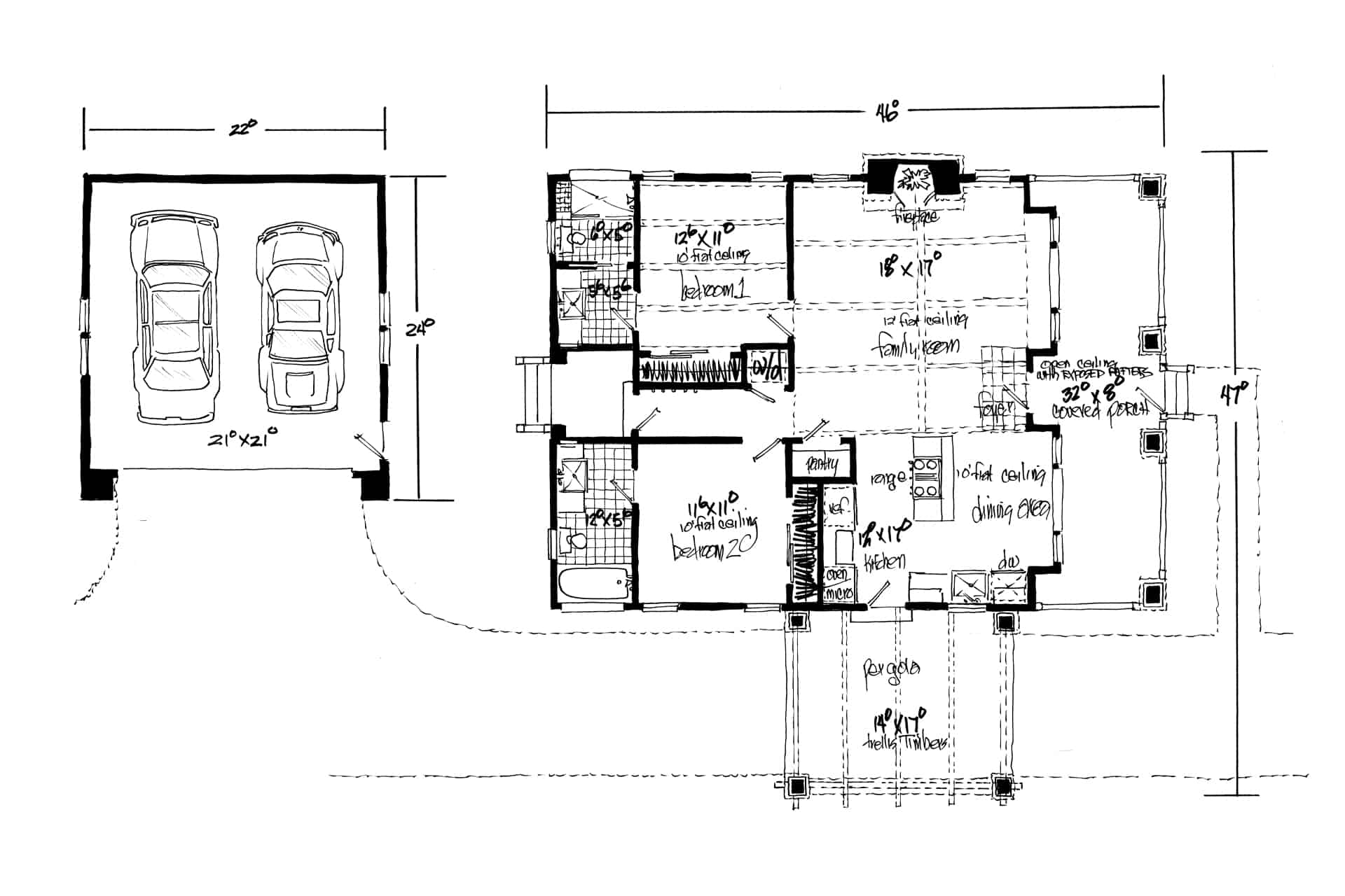
Floor Plans

Floor Plan First Story
Floor Plan First Story
Plan Collection

Can I modify this plan?

Yes! This plan can be customized—contact us for a free quote.

Additional Notes from Designer

All plans come with a standard 2x6framing, Designer does not do 2x4 - have the builder do it on site. MEP (Mechanical, Plumbing, and Electrical) is not included

House Plan Description

This wonderful Craftsman home features beautiful cottage- and bungalow-inspired details, including a wide front porch with tapered columns. Inside, enjoy the spacious family room with a fireplace and box window and an open-concept kitchen looking out over the dining area. While at the rear of the home are two bedrooms, each with its own full bath. Plus, there's plenty of room for your vehicles with a detached 2-car garage.

Home Details

Summary
Plan #:205-1228
Starting at:$1775.00
Floors:1
Bedrooms:2
Full Baths:2
Half Baths:0
Garage:
Square Footage
Heated Area:1164 Sq. Ft.
First Floor:1164 Sq. Ft.
Unheated Area:
Garage:444 Sq. Ft.
Dimensions
Depth:79' 6''
Architectural Styles
Exterior Wall Material
Vinyl SidingRock/StoneWood Siding
Roofing Material
Asphalt Shingles
Roof Pitch
8/12
Ceiling Height
10 Foot Ceiling9 Foot Ceiling
Special Feature
FireplaceFamily RoomOpen Floor Plan
Garage Type
Detached Garage
Fireplaces
One Fireplace
Exterior Wall Framing
2x6
Kitchen Features
Kitchen Island
Porches and Exterior Features
Covered Front PorchPorte-Cochere
Master Suite Features
Main Floor MasterMaster Bathroom

What’s Included

Most plan sets include the following:

icon text-secondary-400 includedAll exterior elevations at 1/4” scale

icon text-secondary-400 includedAll Floor plans at 1/4” scale

icon text-secondary-400 includedInterior sections at 1/4” scale (Amount of sections differ per plan)

icon text-secondary-400 includedRoof and floor framing layout at 1/4” scale (Not to Structural Specifications as each location demands specified details)

icon text-secondary-400 includedElectrical layouts at 1/4” scale

icon text-secondary-400 includedWall sections and framing details at scale

icon text-secondary-400 includedSimpson connection chart

icon text-secondary-400 includedFoundation layouts at 1/4” scale (Not to Structural Specifications as each location demands specified details)

icon text-secondary-400 includedConstruction details per plan

icon text-secondary-400 includedConstruction notes per plan

icon text-secondary-400 includedWindow and door schedules

icon text-secondary-400 includedIllustrative Rendering on cover

What’s Not Included

These items are  NOT included:

icon text-secondary-400 includedArchitectural or Engineering Stamp - handled locally if required.

icon text-secondary-400 includedSite Plan - handled locally when required.

icon text-secondary-400 includedMechanical Drawings (location of heating and air equipment and ductwork) - your subcontractors handle this.

icon text-secondary-400 includedPlumbing Drawings (drawings showing the actual plumbing pipe sizes and locations) - your subcontractors handle this.

icon text-secondary-400 includedEnergy calculations - handled locally when required.

Related House Plans

Plan Collection
Plan Collection
Plan Collection
Plan#142-1036
Starting at$1245
900
Sq Ft
1
Story
2
Bed
2
Bath
1
Car
Plan Collection
Plan Collection
Plan Collection
Plan#123-1071
Starting at$850
1292
Sq Ft
1
Story
2
Bed
2
Bath
0
Car
Plan Collection
Plan Collection
Plan Collection
Plan#132-1697
Starting at$1145
1176
Sq Ft
1
Story
2
Bed
2
Bath
0
Car
View All

Other Plans By This Designer

Plan Collection
Plan Collection
Plan Collection
Plan#205-1003
Starting at$1375
681
Sq Ft
1
Story
2
Bed
2
Bath
0
Car
Plan Collection
Plan Collection
Plan Collection
Plan#205-1009
Starting at$1775
1416
Sq Ft
1
Story
3
Bed
2
Bath
0
Car
Plan Collection
Plan Collection
Plan Collection
Plan#205-1020
Starting at$750
1825
Sq Ft
2
Story
3
Bed
3
Bath
2
Car