Front view of Duplex/Multi-Unit home (ThePlanCollection: House Plan #146-1216)

Images/Plans copyrighted by designer. Photos may reflect homeowner modifications.

About House Plan #146-1216

Sq Ft
1194
Sq Ft
Bedrooms
2
Bedrooms
Bathroom
2
Baths
Half Baths
0
Half Baths
Bedrooms
0
Cars
Bedrooms
2
Stories
Bedrooms
117' 0'
Width
Bedrooms
73
Depth
Starting at$885.00What's included
STEP 1Bedrooms
STEP 2Bedrooms
STEP 3Bedrooms

Subtotal:$0
Plan Collection

How much will it cost to build?

Estimate your costs based on your location and materials.

Free Cost Instant Estimator

Floor Plans

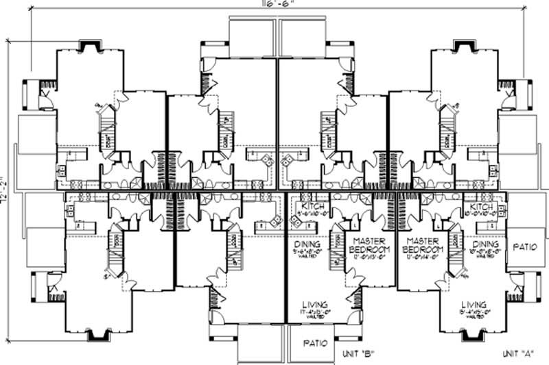
Floor Plan First Story
Floor Plan First Story
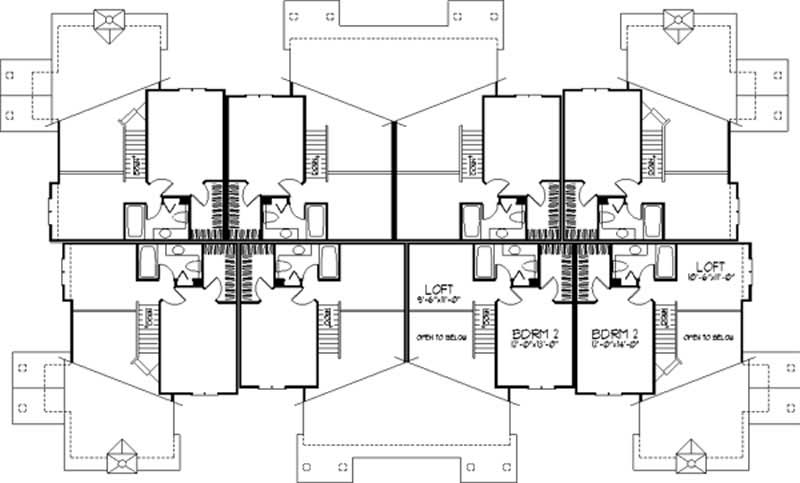
Floor Plan Second Story
Floor Plan Second Story
Plan Collection

Can I modify this plan?

Yes! This plan can be customized—contact us for a free quote.

House Plan Description

This amazing eightplex strikes a nice balance between ease of construction, and exciting features to entice residents. Unit A is a corner design with two bedrooms, a loft, a fireplace, two baths and a private patio. Unit B is an interior plan with vaulted ceilings in the living and dining rooms, a two-bedroom option, two baths, a loft, a corner fireplace and a private patio.

Home Details

Summary
Plan #:146-1216
Starting at:$885.00
Floors:2
Bedrooms:2
Full Baths:2
Half Baths:0
Garage:
Square Footage
Heated Area:1194 Sq. Ft.
First Floor:760 Sq. Ft.
Second Floor:434 Sq. Ft.
Unheated Area:
Dimensions
Ridge Height:27' 0''
Architectural Styles
Exterior Wall Material
BrickWood Siding
Roofing Type
Gable
Roofing Material
Asphalt Shingles
Special Feature
FireplaceDining Room
Fireplaces
One Fireplace
Exterior Wall Framing
2x4
Building Lot Type
Flat Site
Porches and Exterior Features
Courtyard
Master Suite Features
Main Floor Master

What’s Included

Most plan sets include the following:

What’s Not Included

These items are  NOT included:

icon text-secondary-400 includedArchitectural or Engineering Stamp - handled locally if required.

icon text-secondary-400 includedSite Plan - handled locally when required.

icon text-secondary-400 includedMechanical Drawings (location of heating and air equipment and ductwork) - your subcontractors handle this.

icon text-secondary-400 includedPlumbing Drawings (drawings showing the actual plumbing pipe sizes and locations) - your subcontractors handle this.

icon text-secondary-400 includedEnergy calculations - handled locally when required.

Related House Plans

Plan Collection
Plan Collection
Plan Collection
Plan#124-1158
Starting at$645
1223
Sq Ft
2
Story
2
Bed
2.5
Bath
0
Car
Plan Collection
Plan Collection
Plan Collection
Plan#153-1253
Starting at$2050
980
Sq Ft
2
Story
2
Bed
2.5
Bath
0
Car
Plan Collection
Plan Collection
Plan Collection
Plan#153-1100
Starting at$2250
1053
Sq Ft
2
Story
2
Bed
2
Bath
0
Car
View All

Other Plans By This Designer

Plan Collection
Plan Collection
Plan Collection
Plan#146-2806
Starting at$980
1933
Sq Ft
2
Story
3
Bed
2
Bath
0
Car
Plan Collection
Plan Collection
Plan Collection
Plan#146-2810
Starting at$1285
3594
Sq Ft
2
Story
4
Bed
3.5
Bath
2
Car
Plan Collection
Plan Collection
Plan Collection
Plan#146-1917
Starting at$1120
2525
Sq Ft
2
Story
4
Bed
2.5
Bath
3
Car