2-Bedroom, 1200 Sq Ft Ranch Plan

Front elevation of Ranch home (ThePlanCollection: House Plan #196-1120)

Images/Plans copyrighted by designer. Photos may reflect homeowner modifications.

About House Plan #196-1120

Sq Ft
1200
Sq Ft
Bedrooms
2
Bedrooms
Bathroom
1
Baths
Half Baths
0
Half Baths
Bedrooms
0
Cars
Bedrooms
1
Stories
Bedrooms
48' 0'
Width
Bedrooms
25
Depth
Starting at$1025.00What's included
STEP 1Bedrooms
STEP 2Bedrooms
STEP 3Bedrooms

Subtotal:$0
Plan Collection

How much will it cost to build?

Estimate your costs based on your location and materials.

Free Cost Instant Estimator

Floor Plans

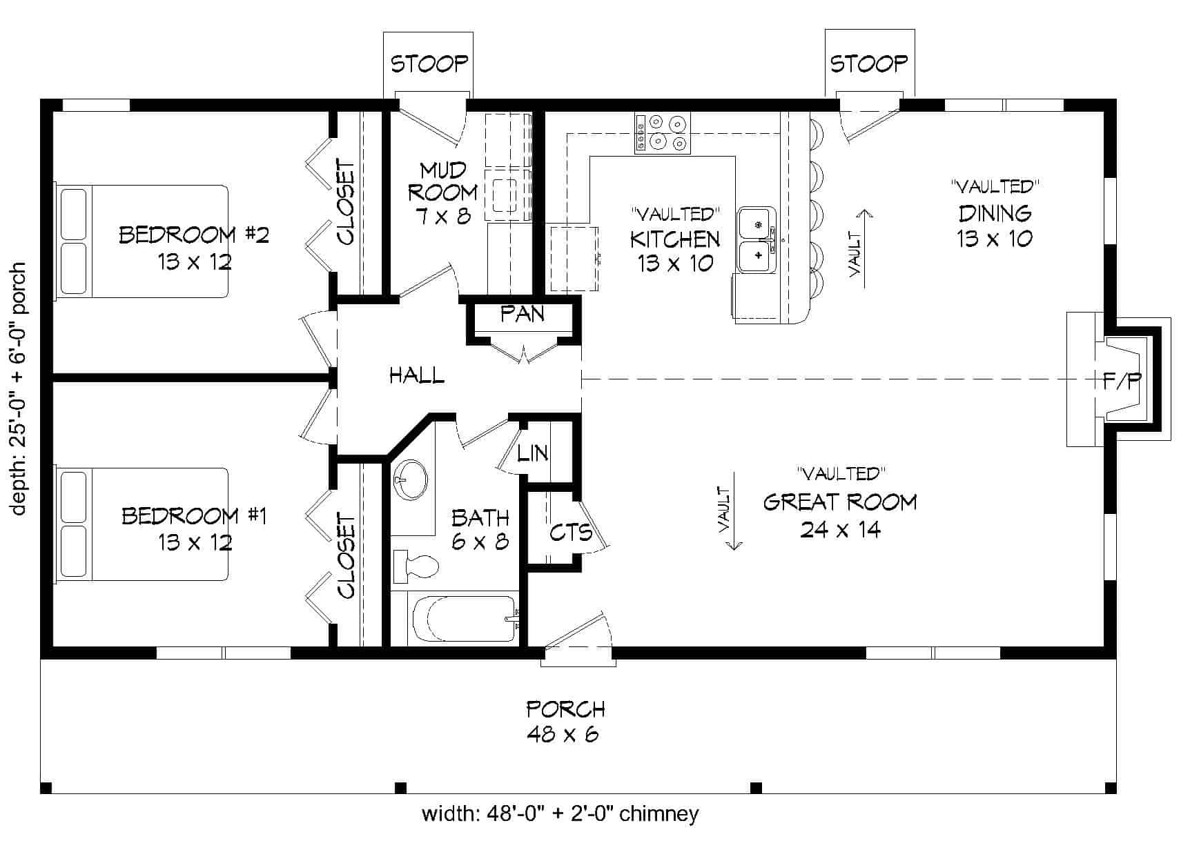
Floor Plan Main Level
Floor Plan Main Level
Plan Collection

Can I modify this plan?

Yes! This plan can be customized—contact us for a free quote.

Additional Notes from Designer

NOTE FROM DESIGNER REGARDING PLAN PURCHASES: 80% of a 5 set purchase price can be applied to any PDF or CAD license upgrade. Additionally, 80% of PDF Study purchase price can be applied to any CAD or PDF license upgrade.

House Plan Description

This lovely Ranch style home with Country influences (House Plan #196-1120) has 1200 square feet of living space. The 1 story floor plan includes 2 bedrooms.

Home Details

Summary
Plan #:196-1120
Starting at:$1025.00
Floors:1
Bedrooms:2
Full Baths:1
Half Baths:0
Garage:
Square Footage
Heated Area:1200 Sq. Ft.
First Floor:1200 Sq. Ft.
Unheated Area:
Porch:288 Sq. Ft.
Dimensions
Architectural Styles
Exterior Wall Material
Vinyl SidingRock/StoneWood Siding
Roofing Type
Gable
Roofing Material
Asphalt Shingles
Roof Pitch
6/12
Ceiling Height
8 Foot Ceiling
Special Feature
FireplaceMud RoomFamily RoomVaulted CeilingsOpen Floor Plan
Fireplaces
One Fireplace
Exterior Wall Framing
2x6
Kitchen Features
Peninsula/Eating BarEat-In Kitchen
Porches and Exterior Features
Wrap Around Porch

What’s Included

Most plan sets include the following:

What’s Not Included

These items are  NOT included:

Related House Plans

Plan Collection
Plan Collection
Plan Collection
Plan#109-1010
Starting at$1045
953
Sq Ft
1
Story
2
Bed
1.5
Bath
0
Car
Plan Collection
Plan Collection
Plan Collection
Plan#123-1042
Starting at$850
992
Sq Ft
1
Story
2
Bed
1
Bath
0
Car
Plan Collection
Plan Collection
Plan Collection
Plan#126-1300
Starting at$1180
920
Sq Ft
1
Story
2
Bed
1
Bath
0
Car
View All

Other Plans By This Designer

Plan Collection
Plan Collection
Plan Collection
Plan#196-1211
Starting at$695
650
Sq Ft
2
Story
1
Bed
1
Bath
2
Car
Plan Collection
Plan Collection
Plan Collection
Plan#196-1196
Starting at$810
1500
Sq Ft
1
Story
2
Bed
2
Bath
3
Car
Plan Collection
Plan Collection
Plan Collection
Plan#196-1216
Starting at$845
1727
Sq Ft
2
Story
2
Bed
2
Bath
2
Car