3-Bedroom, 1292 Sq Ft Country Plan with Private Deck

Front view of Country home (ThePlanCollection: House Plan #146-2233)

Images/Plans copyrighted by designer. Photos may reflect homeowner modifications.

About House Plan #146-2233

Sq Ft
1292
Sq Ft
Bedrooms
3
Bedrooms
Bathroom
2
Baths
Half Baths
1
Half Baths
Bedrooms
1
Cars
Bedrooms
2
Stories
Bedrooms
28' 0'
Width
Bedrooms
24
Depth
Starting at$1015.00What's included
STEP 1Bedrooms
STEP 2Bedrooms
STEP 3Bedrooms

Subtotal:$0
Plan Collection

How much will it cost to build?

Estimate your costs based on your location and materials.

Free Cost Instant Estimator

Floor Plans

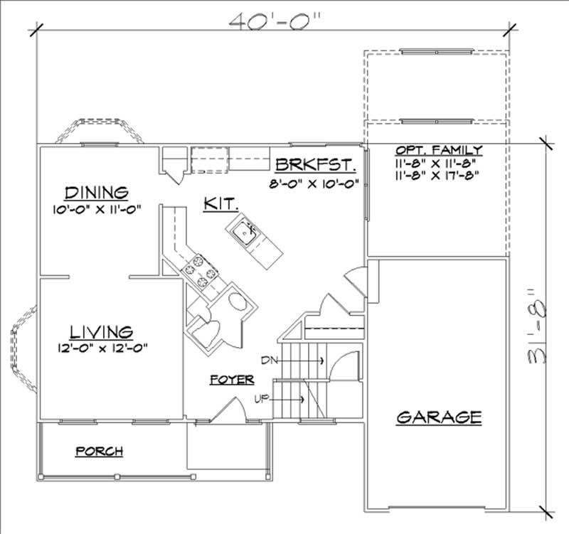
Main Level
Main Level
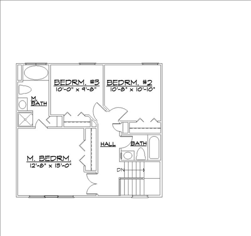
Upper Level
Upper Level
Plan Collection

Can I modify this plan?

Yes! This plan can be customized—contact us for a free quote.

House Plan Description

This country-style design boasts a wonderfully open kitchen that includes a fabulous work island and a cheery breakfast area well-suited for informal family dining. The roomy formal living and dining areas offer optional bay windows that provide fantastic natural light. Upstairs, the master suite flaunts a deluxe private bath.

Home Details

Summary
Plan #:146-2233
Starting at:$1015.00
Floors:2
Bedrooms:3
Full Baths:2
Half Baths:1
Garage:
Square Footage
Heated Area:1292 Sq. Ft.
First Floor:668 Sq. Ft.
Second Floor:624 Sq. Ft.
Unheated Area:
Dimensions
Ridge Height:25-0' 0''
Architectural Styles
Exterior Wall Material
Wood Siding
Roofing Type
Gable
Garage Type
Attached GarageFront Entry
Exterior Wall Framing
2x4
Building Lot Type
Narrow Lot Design

What’s Included

Most plan sets include the following:

What’s Not Included

These items are  NOT included:

icon text-secondary-400 includedArchitectural or Engineering Stamp - handled locally if required.

icon text-secondary-400 includedSite Plan - handled locally when required.

icon text-secondary-400 includedMechanical Drawings (location of heating and air equipment and ductwork) - your subcontractors handle this.

icon text-secondary-400 includedPlumbing Drawings (drawings showing the actual plumbing pipe sizes and locations) - your subcontractors handle this.

icon text-secondary-400 includedEnergy calculations - handled locally when required.

Related House Plans

Plan Collection
Plan Collection
Plan Collection
Plan#160-1009
Starting at$945
1235
Sq Ft
2
Story
3
Bed
2
Bath
0
Car
Plan Collection
Plan Collection
Plan Collection
Plan#117-1104
Starting at$895
1421
Sq Ft
2
Story
3
Bed
2
Bath
2
Car
Plan Collection
Plan Collection
Plan Collection
Plan#109-1029
Starting at$1195
1334
Sq Ft
2
Story
3
Bed
2.5
Bath
0
Car
View All

Other Plans By This Designer

Plan Collection
Plan Collection
Plan Collection
Plan#146-2806
Starting at$980
1933
Sq Ft
2
Story
3
Bed
2
Bath
0
Car
Plan Collection
Plan Collection
Plan Collection
Plan#146-2810
Starting at$1285
3594
Sq Ft
2
Story
4
Bed
3.5
Bath
2
Car
Plan Collection
Plan Collection
Plan Collection
Plan#146-1917
Starting at$1120
2525
Sq Ft
2
Story
4
Bed
2.5
Bath
3
Car