3-Bedroom, 1328 Sq Ft Country Plan with Nook/Breakfast Area

This image shows the Country Style for this set of house plans.

Images/Plans copyrighted by designer. Photos may reflect homeowner modifications.

About House Plan #108-1176

Sq Ft
1328
Sq Ft
Bedrooms
3
Bedrooms
Bathroom
2
Baths
Half Baths
0
Half Baths
Bedrooms
2
Cars
Bedrooms
1
Stories
Bedrooms
46' 0'
Width
Bedrooms
32
Depth
Starting at$1325.00What's included
STEP 1Bedrooms
STEP 2Bedrooms
STEP 3Bedrooms

Subtotal:$0
Plan Collection

How much will it cost to build?

Estimate your costs based on your location and materials.

Free Cost Instant Estimator

Floor Plans

Floor Plans
Floor Plans
Plan Collection

Can I modify this plan?

Yes! This plan can be customized—contact us for a free quote.

Additional Notes from Designer

PLEASE NOTE!! For this designer, The PDF that comes with the PRINT Packages (5 set+PDF and 8 set+PDF) is NOT Modifiable - it is for printing ONLY! PLEASE NOTE!! Optional Foundations (foundations that cost extra money) will take 5-10 business days to complete.

House Plan Description

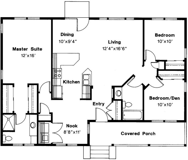
The #108-1176 home plan is a great single story, country style house plan with 1328 total living square feet. The clean, simple lines of this country home plan are accented by false beam gables and craftsman windows. The window-bright living/dining rooms are fully open to the roomy kitchen. The master suite has two closets and a private bathroom.

Home Details

Summary
Plan #:108-1176
Starting at:$1325.00
Floors:1
Bedrooms:3
Full Baths:2
Half Baths:0
Garage:
Square Footage
Heated Area:1328 Sq. Ft.
First Floor:1328 Sq. Ft.
Unheated Area:
Dimensions
Ridge Height:20.6' 0''
Architectural Styles
Exterior Wall Material
Vinyl Siding
Roof Pitch
8/12
Ceiling Height
9 Foot Ceiling
Special Feature
Dining RoomHome OfficeFamily RoomMain Level Laundry
Garage Type
Detached Garage
Exterior Wall Framing
2x6
Kitchen Features
Kitchen IslandPeninsula/Eating Bar
Porches and Exterior Features
Covered Front Porch
Master Suite Features
Main Floor Master

What’s Included

Most plan sets include the following:

icon text-secondary-400 included Artist’s rendering of the home,

icon text-secondary-400 included Front/Rear/Left and Right Elevations,

icon text-secondary-400 included Main floor plan, Second or Basement floor plans (if applicable),

icon text-secondary-400 included Foundation plan and detail,

icon text-secondary-400 included Floor framing plan,

icon text-secondary-400 included Roof framing plan, supporting details and

icon text-secondary-400 included Electric layout.

What’s Not Included

These items are  NOT included:

icon text-secondary-400 includedArchitectural or Engineering Stamp - handled locally if required.

icon text-secondary-400 includedSite Plan - handled locally when required.

icon text-secondary-400 includedMechanical Drawings (location of heating and air equipment and ductwork) - your subcontractors handle this.

icon text-secondary-400 includedPlumbing Drawings (drawings showing the actual plumbing pipe sizes and locations) - your subcontractors handle this.

icon text-secondary-400 includedEnergy calculations - handled locally when required.

Related House Plans

Plan Collection
Plan Collection
Plan Collection
Plan#142-1041
Starting at$1245
1300
Sq Ft
1
Story
3
Bed
2
Bath
2
Car
Plan Collection
Plan Collection
Plan Collection
Plan#141-1243
Starting at$1485
1640
Sq Ft
1
Story
3
Bed
2
Bath
2
Car
Plan Collection
Plan Collection
Plan Collection
Plan#176-1012
Starting at$600
1412
Sq Ft
1
Story
3
Bed
2
Bath
0
Car
View All

Other Plans By This Designer

Plan Collection
Plan Collection
Plan Collection
Plan#108-1923
Starting at$1150
2928
Sq Ft
1
Story
4
Bed
3
Bath
2
Car
Plan Collection
Plan Collection
Plan Collection
Plan#108-1538
Starting at$725
1216
Sq Ft
2
Story
2
Bed
2
Bath
0
Car
Plan Collection
Plan Collection
Plan Collection
Plan#108-2031
Starting at$450
1808
Sq Ft
2
Story
2
Bed
1
Bath
2
Car