Estimate your costs based on your location and materials.
Yes! This plan can be customized—contact us for a free quote.
Yes! This plan can be customized—contact us for a free quote.
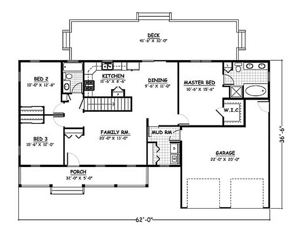
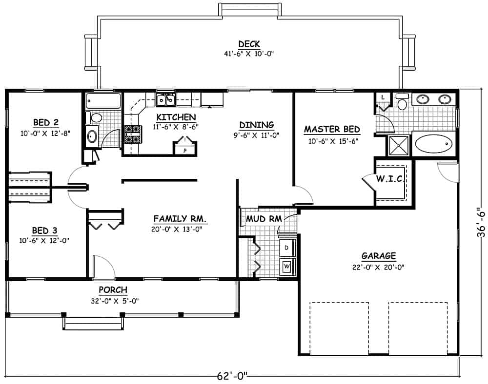
Stepping up to the front of the house, you'll appreciate this Countrty Ranch style home, with its wide entry porch basically turned into a grand portal with "of-a-piece-wth-the-house" roofing above. The house features a deck in the rear where you can enjoy the sun and the surrounding landscape. The lovely 1-story floor plan has 1360 square feet of heated-cooled living space and includes 3 bedrooms and 2 bathrooms.
Estimate your costs based on your location and materials.
All sales of house plans, modifications, and other products found on this site are final. No refunds or exchanges can be given once your order has begun the fulfillment process. Please see our Policies for additional information.
All plans offered on ThePlanCollection.com are designed to conform to the local building codes when and where the original plan was drawn.
The homes as shown in photographs and renderings may differ from the actual blueprints. For more detailed information, please review the floor plan images herein carefully.
Estimate your costs based on your location and materials.