3-Bedroom, 1456 Sq Ft Ranch Plan with Dining Area

Front elevation of Ranch home (ThePlanCollection: House Plan #131-1203)

Images/Plans copyrighted by designer. Photos may reflect homeowner modifications.

About House Plan #131-1203

Sq Ft
1456
Sq Ft
Bedrooms
3
Bedrooms
Bathroom
2
Baths
Half Baths
0
Half Baths
Bedrooms
0
Cars
Bedrooms
1
Stories
Bedrooms
50' 0'
Width
Bedrooms
45
Depth
Starting at$750.00What's included
STEP 1Bedrooms
STEP 2Bedrooms
STEP 3Bedrooms

Subtotal:$0
Plan Collection

How much will it cost to build?

Estimate your costs based on your location and materials.

Free Cost Instant Estimator

Floor Plans

Main Level
Main Level
Alternative Main Level Layout
Alternative Main Level Layout
Plan Collection

Can I modify this plan?

Yes! This plan can be customized—contact us for a free quote.

House Plan Description

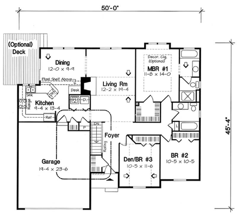
This big-hearted home of 1,456 sq. ft. delivers all the necessities, plus some! The entry foyer leads to a big, bright living room with fireplace. The close-at-hand kitchen is loaded with wholesome ingredients: lunch counter, recipe desk, shelving, storage, laundry and open access to the dining room. Sleeping quarters are nestled on the opposite side of the home. The master suite with walk-in closet and wonderful windowing has a private bath with a tub tucked beneath a window. Bedrooms #2 and #3 sleep beneath their own front windows. The shared bath is ideally situated. The roomy garage...

Home Details

Summary
Plan #:131-1203
Starting at:$750.00
Floors:1
Bedrooms:3
Full Baths:2
Half Baths:0
Garage:
Square Footage
Heated Area:1456 Sq. Ft.
First Floor:1456 Sq. Ft.
Unheated Area:
Garage:452 Sq. Ft.
Dimensions
Depth:45' 5''
Ridge Height:19' 0''
Architectural Styles
Roofing Type
Gable
Roof Pitch
6/12
Ceiling Height
8 Foot Ceiling
Special Feature
FireplaceDining RoomMain Level Laundry
Garage Type
Attached Garage
Fireplaces
One Fireplace
Exterior Wall Framing
2x6
Kitchen Features
Peninsula/Eating Bar
Porches and Exterior Features
Covered Front PorchSundeck
Master Suite Features
Main Floor MasterMaster BathroomWalk In Closet

What’s Included

Most plan sets include the following:

icon text-secondary-400 includedExterior elevations

icon text-secondary-400 includedFoundation plans

icon text-secondary-400 includedInterior elevations

icon text-secondary-400 includedElectrical layout

icon text-secondary-400 includedDetailed house floor plans

What’s Not Included

These items are  NOT included:

icon text-secondary-400 includedArchitectural or Engineering Stamp - handled locally if required.

icon text-secondary-400 includedSite Plan - handled locally when required.

icon text-secondary-400 includedMechanical Drawings (location of heating and air equipment and ductwork) - your subcontractors handle this.

icon text-secondary-400 includedPlumbing Drawings (drawings showing the actual plumbing pipe sizes and locations) - your subcontractors handle this.

icon text-secondary-400 includedEnergy calculations - handled locally when required.

Related House Plans

Plan Collection
Plan Collection
Plan Collection
Plan#142-1041
Starting at$1245
1300
Sq Ft
1
Story
3
Bed
2
Bath
2
Car
Plan Collection
Plan Collection
Plan Collection
Plan#141-1243
Starting at$1485
1640
Sq Ft
1
Story
3
Bed
2
Bath
2
Car
Plan Collection
Plan Collection
Plan Collection
Plan#176-1012
Starting at$600
1412
Sq Ft
1
Story
3
Bed
2
Bath
0
Car
View All

Other Plans By This Designer

Plan Collection
Plan Collection
Plan Collection
Plan#131-1013
Starting at$900
2083
Sq Ft
2
Story
3
Bed
2.5
Bath
2
Car
Plan Collection
Plan Collection
Plan Collection
Plan#131-1047
Starting at$800
1792
Sq Ft
1
Story
3
Bed
2
Bath
0
Car
Plan Collection
Plan Collection
Plan Collection
Plan#131-1243
Starting at$600
972
Sq Ft
2
Story
3
Bed
1
Bath
0
Car