3-Bedroom, 1462 Sq Ft Ranch Plan with Nook/Breakfast Area

Main image for house plan # 16602

Images/Plans copyrighted by designer. Photos may reflect homeowner modifications.

About House Plan #103-1105

Sq Ft
1462
Sq Ft
Bedrooms
3
Bedrooms
Bathroom
2
Baths
Half Baths
0
Half Baths
Bedrooms
2
Cars
Bedrooms
1
Stories
Bedrooms
52' 0'
Width
Bedrooms
48
Depth
Starting at$895.00What's included
STEP 1Bedrooms
STEP 2Bedrooms
STEP 3Bedrooms

Subtotal:$0
Plan Collection

How much will it cost to build?

Estimate your costs based on your location and materials.

Free Cost Instant Estimator

Floor Plans

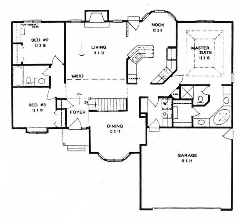
MAIN FLOOR PLAN
MAIN FLOOR PLAN
Plan Collection

Can I modify this plan?

Yes! This plan can be customized—contact us for a free quote.

Additional Notes from Designer

PLEASE NOTE: For this designer, if you choose optional features such as but not limited to: 2x6 framing, reverse or optional basement, the designer will need an additional 2-5 business days to adjust the plan accordingly. Please keep this in mind when choosing your shipping option. If you would like Express or Priority shipping, the designer will ship the plan to you using the method you choose but you will still have the 2-5 business day waiting period BEFORE they ship! Please feel free to contact us with any questions!

House Plan Description

Features of this home include: vaulted ceiling in living, coffered in master bed, plant shelves, bay window, Jacuzzi tub, walk-in closet, raised bar, covered porch, fireplace, and an optional finish basement with rec room, one or 2 beds, and one full bath.

Home Details

Summary
Plan #:103-1105
Starting at:$895.00
Floors:1
Bedrooms:3
Full Baths:2
Half Baths:0
Garage:
Square Footage
Heated Area:1462 Sq. Ft.
First Floor:1462 Sq. Ft.
Unheated Area:
Basement:1340 Sq. Ft.
Garage:484 Sq. Ft.
Dimensions
Ridge Height:18' 0''
Architectural Styles
Exterior Wall Material
Aluminum SidingVinyl SidingBrickRock/StoneWood Siding
Roofing Type
Hip
Roof Pitch
6/12
Ceiling Height
8 Foot Ceiling
Special Feature
Fireplace
Garage Type
Attached Garage

What’s Included

Most plan sets include the following:

icon text-secondary-400 includedFront, Side & Rear Elevations

icon text-secondary-400 includedFloor Plan

icon text-secondary-400 includedFoundation Plan

icon text-secondary-400 includedRoof Plan (Birdseye view)

icon text-secondary-400 includedElectrical Layout (location of outlets, switches - it does not have wiring schematics)

icon text-secondary-400 includedCabinet Details

icon text-secondary-400 includedWall Section

icon text-secondary-400 includedStair Details

icon text-secondary-400 includedBuilding Cross Section

What’s Not Included

These items are  NOT included:

icon text-secondary-400 includedArchitectural or Engineering Stamp - handled locally if required.

icon text-secondary-400 includedSite Plan - handled locally when required.

icon text-secondary-400 includedMechanical Drawings (location of heating and air equipment and ductwork) - your subcontractors handle this.

icon text-secondary-400 includedPlumbing Drawings (drawings showing the actual plumbing pipe sizes and locations) - your subcontractors handle this.

icon text-secondary-400 includedEnergy calculations - handled locally when required.

Related House Plans

Plan Collection
Plan Collection
Plan Collection
Plan#142-1041
Starting at$1245
1300
Sq Ft
1
Story
3
Bed
2
Bath
2
Car
Plan Collection
Plan Collection
Plan Collection
Plan#141-1243
Starting at$1485
1640
Sq Ft
1
Story
3
Bed
2
Bath
2
Car
Plan Collection
Plan Collection
Plan Collection
Plan#176-1012
Starting at$600
1412
Sq Ft
1
Story
3
Bed
2
Bath
0
Car
View All

Other Plans By This Designer

Plan Collection
Plan Collection
Plan Collection
Plan#103-1118
Starting at$870
1039
Sq Ft
1
Story
3
Bed
2
Bath
2
Car
Plan Collection
Plan Collection
Plan Collection
Plan#103-1119
Starting at$870
1108
Sq Ft
1
Story
3
Bed
2
Bath
2
Car
Plan Collection
Plan Collection
Plan Collection
Plan#103-1120
Starting at$870
1158
Sq Ft
1
Story
2
Bed
2
Bath
3
Car