3-Bedroom, 1480 Sq Ft Ranch Plan with Kitchen Island

Front elevation of Ranch home (ThePlanCollection: House Plan #200-1056)

Images/Plans copyrighted by designer. Photos may reflect homeowner modifications.

About House Plan #200-1056

Sq Ft
1480
Sq Ft
Bedrooms
3
Bedrooms
Bathroom
2
Baths
Half Baths
0
Half Baths
Bedrooms
2
Cars
Bedrooms
1
Stories
Bedrooms
60' 8'
Width
Bedrooms
36
Depth
Starting at$1150.00What's included
STEP 1Bedrooms
STEP 2Bedrooms
STEP 3Bedrooms

Subtotal:$0
Plan Collection

How much will it cost to build?

Estimate your costs based on your location and materials.

Free Cost Instant Estimator

Floor Plans

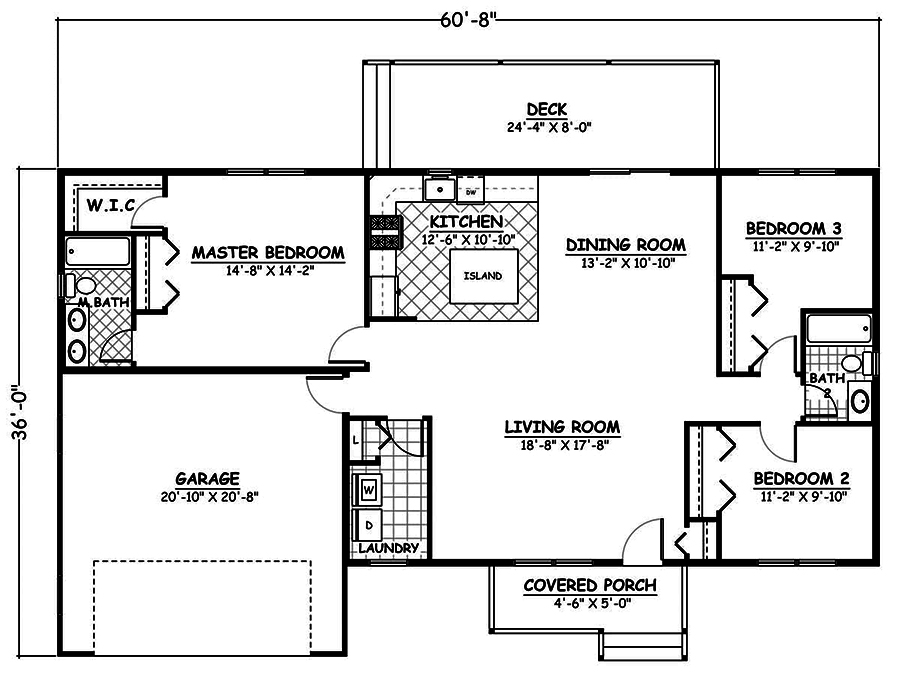
Floor Plan Main Level
Floor Plan Main Level
Plan Collection

Can I modify this plan?

Yes! This plan can be customized—contact us for a free quote.

House Plan Description

This lovely Ranch style home with Farmhouse influences (House Plan #200-1056) has 1480 square feet of living space. The 1 story floor plan includes 3 bedrooms.

Home Details

Summary
Plan #:200-1056
Starting at:$1150.00
Floors:1
Bedrooms:3
Full Baths:2
Half Baths:0
Garage:
Square Footage
Heated Area:1480 Sq. Ft.
First Floor:1480 Sq. Ft.
Unheated Area:
Garage:445 Sq. Ft.
Porch:267 Sq. Ft.
Dimensions
Width:60' 8''
Architectural Styles
Exterior Wall Material
Vinyl SidingBrickWood Siding
Roofing Type
Gable
Roofing Material
Asphalt Shingles
Ceiling Height
8 Foot Ceiling
Special Feature
Dining RoomMain Level LaundryOpen Floor Plan
Garage Type
Attached GarageFront Entry
Exterior Wall Framing
2x6
Kitchen Features
Kitchen IslandPeninsula/Eating Bar
Porches and Exterior Features
Covered Front PorchSundeck
Master Suite Features
Main Floor MasterMaster BathroomWalk In ClosetSplit Master Bedroom

What’s Included

Most plan sets include the following:

icon text-secondary-400 includedColor Cover

icon text-secondary-400 includedFoundation Plan

icon text-secondary-400 includedMain Level Floor Plan

icon text-secondary-400 includedUpper Level Floor Plan (if applicable)

icon text-secondary-400 includedExterior Elevations

icon text-secondary-400 includedRoof Plan (Birdseye View)

icon text-secondary-400 includedBuilding Sections

icon text-secondary-400 includedConstruction Details

icon text-secondary-400 includedMain Level Structural Framing Plan

icon text-secondary-400 includedUpper Level Structural Framing Plan (if applicable)

icon text-secondary-400 includedCeiling Structural Framing Plan

icon text-secondary-400 includedRoof Structural Framing Plan

icon text-secondary-400 includedLighting Fixture and Outlet Plan

What’s Not Included

These items are  NOT included:

icon text-secondary-400 includedArchitectural or Engineering Stamp - handled locally if required.

icon text-secondary-400 includedSite Plan - handled locally when required.

icon text-secondary-400 includedMechanical Drawings (location of heating and air equipment and ductwork) - your subcontractors handle this.

icon text-secondary-400 includedPlumbing Drawings (drawings showing the actual plumbing pipe sizes and locations) - your subcontractors handle this.

icon text-secondary-400 includedEnergy calculations - handled locally when required.

Related House Plans

Plan Collection
Plan Collection
Plan Collection
Plan#142-1041
Starting at$1245
1300
Sq Ft
1
Story
3
Bed
2
Bath
2
Car
Plan Collection
Plan Collection
Plan Collection
Plan#141-1243
Starting at$1485
1640
Sq Ft
1
Story
3
Bed
2
Bath
2
Car
Plan Collection
Plan Collection
Plan Collection
Plan#176-1012
Starting at$600
1412
Sq Ft
1
Story
3
Bed
2
Bath
0
Car
View All

Other Plans By This Designer

Plan Collection
Plan Collection
Plan Collection
Plan#200-1070
Starting at$1150
1293
Sq Ft
1
Story
3
Bed
2
Bath
0
Car
Plan Collection
Plan Collection
Plan Collection
Plan#200-1057
Starting at$1150
1381
Sq Ft
1
Story
3
Bed
2
Bath
0
Car
Plan Collection
Plan Collection
Plan Collection
Plan#200-1060
Starting at$1150
1400
Sq Ft
1
Story
3
Bed
2
Bath
0
Car