3-Bedroom, 1491 Sq Ft Country Plan with Covered Rear Porch

Main image for house plan # 5976

Images/Plans copyrighted by designer. Photos may reflect homeowner modifications.

About House Plan #113-1015

Sq Ft
1491
Sq Ft
Bedrooms
3
Bedrooms
Bathroom
2
Baths
Half Baths
0
Half Baths
Bedrooms
2
Cars
Bedrooms
1
Stories
Bedrooms
61' 0'
Width
Bedrooms
53
Depth
Starting at$425.00What's included
STEP 1Bedrooms
STEP 2Bedrooms
STEP 3Bedrooms

Subtotal:$0
Plan Collection

How much will it cost to build?

Estimate your costs based on your location and materials.

Free Cost Instant Estimator

Floor Plans

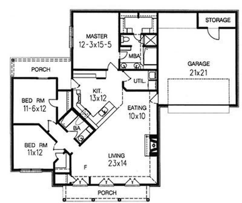
Main Floor Plan
Main Floor Plan
Plan Collection

Can I modify this plan?

Yes! This plan can be customized—contact us for a free quote.

House Plan Description

This single story home includes 3 bedrooms, 2 baths, spacious living room and eating area with fireplace, country-style running front porch, two-car garage with storage area, rear porch, large master bedroom with walk-in closet, shower, and whirlpool area.

Home Details

Summary
Plan #:113-1015
Starting at:$425.00
Floors:1
Bedrooms:3
Full Baths:2
Half Baths:0
Garage:
Square Footage
Heated Area:1491 Sq. Ft.
First Floor:1491 Sq. Ft.
Unheated Area:
Dimensions
Ridge Height:20' 0''
Architectural Styles
Exterior Wall Material
Vinyl SidingBrick
Roofing Type
Hip
Ceiling Height
8 Foot Ceiling
Special Feature
Fireplace
Garage Type
Attached Garage
Fireplaces
One Fireplace
Exterior Wall Framing
2x6

What’s Included

Most plan sets include the following:

icon text-secondary-400 includedInformation Cover Sheet

icon text-secondary-400 includedFoundation Plan

icon text-secondary-400 includedDetailed Floor Plans

icon text-secondary-400 includedWindow & Door Schedules

icon text-secondary-400 includedElectrical Layout

icon text-secondary-400 includedExterior Elevations

icon text-secondary-400 includedBuilding Sections

icon text-secondary-400 includedComplete Construction Details

What’s Not Included

These items are  NOT included:

icon text-secondary-400 includedArchitectural or Engineering Stamp - handled locally if required.

icon text-secondary-400 includedSite Plan - handled locally when required.

icon text-secondary-400 includedMechanical Drawings (location of heating and air equipment and ductwork) - your subcontractors handle this.

icon text-secondary-400 includedPlumbing Drawings (drawings showing the actual plumbing pipe sizes and locations) - your subcontractors handle this.

icon text-secondary-400 includedEnergy calculations - handled locally when required.

Related House Plans

Plan Collection
Plan Collection
Plan Collection
Plan#142-1041
Starting at$1245
1300
Sq Ft
1
Story
3
Bed
2
Bath
2
Car
Plan Collection
Plan Collection
Plan Collection
Plan#141-1243
Starting at$1485
1640
Sq Ft
1
Story
3
Bed
2
Bath
2
Car
Plan Collection
Plan Collection
Plan Collection
Plan#176-1012
Starting at$600
1412
Sq Ft
1
Story
3
Bed
2
Bath
0
Car
View All

Other Plans By This Designer

Plan Collection
Plan Collection
Plan Collection
Plan#113-1060
Starting at$325
1719
Sq Ft
1
Story
3
Bed
2
Bath
2
Car
Plan Collection
Plan Collection
Plan Collection
Plan#113-1083
Starting at$400
3450
Sq Ft
2
Story
4
Bed
3
Bath
3
Car
Plan Collection
Plan Collection
Plan Collection
Plan#113-1063
Starting at$350
1835
Sq Ft
1
Story
3
Bed
2
Bath
2
Car