3-Bed, 1493 Sq Ft Contemporary Ranch Plan Boasting Living Room with Decorative Beams

Contemporary Ranch style house (ThePlanCollection: Plan #142-1264)

Images/Plans copyrighted by designer. Photos may reflect homeowner modifications.

About House Plan #142-1264

Sq Ft
1493
Sq Ft
Bedrooms
3
Bedrooms
Bathroom
2
Baths
Half Baths
0
Half Baths
Bedrooms
2
Cars
Bedrooms
1
Stories
Bedrooms
50' 0'
Width
Bedrooms
53
Depth
Starting at$1245.00What's included
STEP 1Bedrooms
STEP 2Bedrooms
STEP 3Bedrooms

Subtotal:$0
Plan Collection

How much will it cost to build?

Estimate your costs based on your location and materials.

Free Cost Instant Estimator

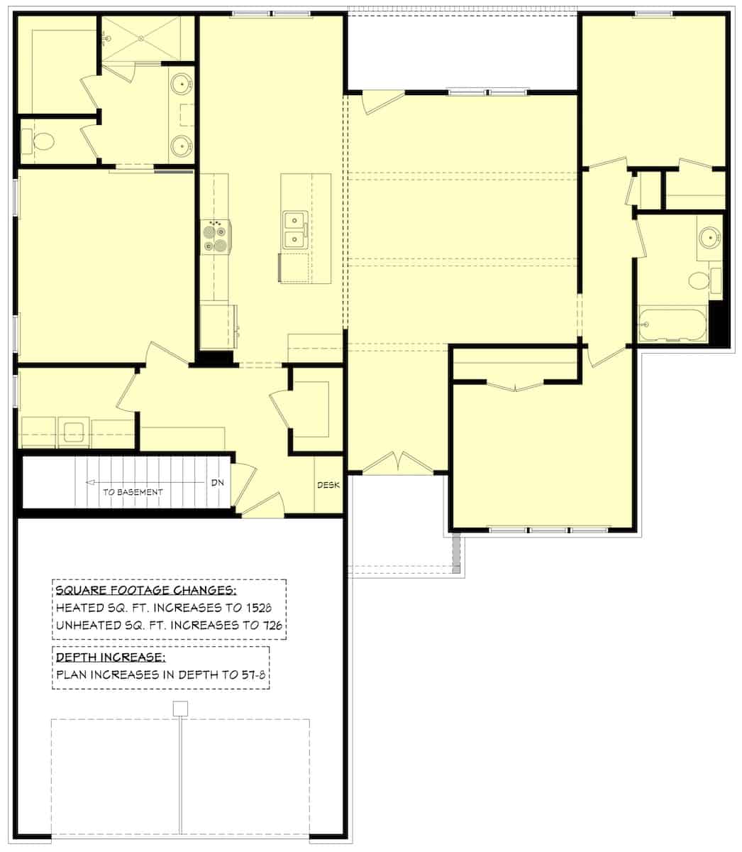
Floor Plans

Main Level
Main Level
Basement Option Stair Location
Basement Option Stair Location
Plan Collection

Can I modify this plan?

Yes! This plan can be customized—contact us for a free quote.

Additional Notes from Designer

On some plans, Basement Foundations, Walkout Basement Foundations & 2x6 Conversions could take up to ONE WEEK to produce. Materials Lists could take up to FOUR WEEKS to produce and they will be for the ORIGINAL plan! Any modifications will NOT be reflected on the Materials List. NOTE FROM DESIGNER: If you purchase a CAD, you will automatically receive the unlimited build license - no need to purchase separately!

House Plan Description

If you have an eye for great design, you'll adore this Contemporary Ranch style home with white vertical siding. You’ll also love the open and airy feel of the house with its tall multi-pane windows, making the rooms brilliant and bright. This well-done 1-story home's floor plan has 1493 square feet of heated and cooled living space and includes
• An open floor plan, great for entertaining
• Split master bedroom design
• Mud room with lockers
• Walk-in kitchen pantry
•...

Home Details

Summary
Plan #:142-1264
Starting at:$1245.00
Floors:1
Bedrooms:3
Full Baths:2
Half Baths:0
Garage:
Square Footage
Heated Area:1493 Sq. Ft.
First Floor:1493 Sq. Ft.
Unheated Area:
Garage:521 Sq. Ft.
Porch:138 Sq. Ft.
Dimensions
Depth:53' 4''
Architectural Styles
Exterior Wall Material
Vinyl SidingBrickWood Siding
Roofing Type
Gable/Dormer
Roofing Material
Asphalt Shingles
Roof Pitch
3/128/12
Ceiling Height
10 Foot Ceiling9 Foot Ceiling
Special Feature
Mud RoomFamily RoomMain Level LaundrySplit BathroomStorageOpen Floor Plan
Garage Type
Attached GarageFront Entry
Exterior Wall Framing
2x4
Kitchen Features
Kitchen IslandWalk-in PantryPeninsula/Eating Bar
Porches and Exterior Features
Covered Front PorchCovered Rear Porch
Master Suite Features
Main Floor MasterMaster BathroomWalk In ClosetSplit Master Bedroom

What’s Included

Most plan sets include the following:

icon text-secondary-400 includedCover sheet

icon text-secondary-400 includedFoundation plan

icon text-secondary-400 includedDimensional floor plan

icon text-secondary-400 includedExterior views

icon text-secondary-400 includedRoof plan

icon text-secondary-400 includedElectrical layout

icon text-secondary-400 includedWall section(s)

icon text-secondary-400 includedBuilding section(s)

icon text-secondary-400 includedCabinet elevations

What’s Not Included

These items are  NOT included:

icon text-secondary-400 includedArchitectural or Engineering Stamp - handled locally if required.

icon text-secondary-400 includedSite Plan - handled locally when required.

icon text-secondary-400 includedMechanical Drawings (location of heating and air equipment and ductwork) - your subcontractors handle this.

icon text-secondary-400 includedPlumbing Drawings (drawings showing the actual plumbing pipe sizes and locations) - your subcontractors handle this.

icon text-secondary-400 includedEnergy calculations - handled locally when required.

icon text-secondary-400 includedNo Framing

Related House Plans

Plan Collection
Plan Collection
Plan Collection
Plan#142-1041
Starting at$1245
1300
Sq Ft
1
Story
3
Bed
2
Bath
2
Car
Plan Collection
Plan Collection
Plan Collection
Plan#141-1243
Starting at$1485
1640
Sq Ft
1
Story
3
Bed
2
Bath
2
Car
Plan Collection
Plan Collection
Plan Collection
Plan#176-1012
Starting at$600
1412
Sq Ft
1
Story
3
Bed
2
Bath
0
Car
View All

Other Plans By This Designer

Plan Collection
Plan Collection
Plan Collection
Plan#142-1244
Starting at$1545
3086
Sq Ft
1
Story
4
Bed
3.5
Bath
3
Car
Plan Collection
Plan Collection
Plan Collection
Plan#142-1256
Starting at$1295
1599
Sq Ft
1
Story
3
Bed
2.5
Bath
2
Car
Plan Collection
Plan Collection
Plan Collection
Plan#142-1265
Starting at$1245
1448
Sq Ft
1
Story
2
Bed
2
Bath
1
Car