3-Bedroom, 1515 Sq Ft Cottage Plan with Split Master Bedroom

Cottage home (ThePlanCollection: Plan #198-1120)

Images/Plans copyrighted by designer. Photos may reflect homeowner modifications.

About House Plan #198-1120

Sq Ft
1515
Sq Ft
Bedrooms
3
Bedrooms
Bathroom
2
Baths
Half Baths
0
Half Baths
Bedrooms
2
Cars
Bedrooms
1
Stories
Bedrooms
72' 2'
Width
Bedrooms
67
Depth
Starting at$1795.00What's included
STEP 1Bedrooms
STEP 2Bedrooms
STEP 3Bedrooms

Subtotal:$0
Plan Collection

How much will it cost to build?

Estimate your costs based on your location and materials.

Free Cost Instant Estimator

Floor Plans

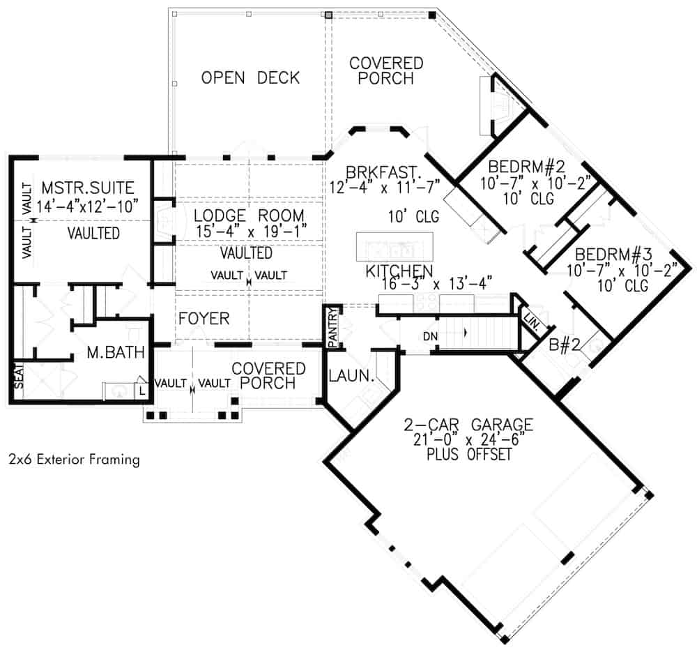
Floor Plan Main Level
Floor Plan Main Level
Plan Collection

Can I modify this plan?

Yes! This plan can be customized—contact us for a free quote.

Additional Notes from Designer

NO Material lists.

House Plan Description

You’ll love the simple and sleek design of this Cottage style Ranch home with a vaulted ceilings, open concept floor plan, and covered front porch. The house's covered porches and deck will allow you to enjoy outdoor activities and observe nature while being protected from the discomfort due to inclement weather outside. This 1-story floor plan has 1515 square feet of heated-cooled living space and includes 3 bedrooms and 2 full bathrooms.

Home Details

Summary
Plan #:198-1120
Starting at:$1795.00
Floors:1
Bedrooms:3
Full Baths:2
Half Baths:0
Garage:
Square Footage
Heated Area:1515 Sq. Ft.
First Floor:1515 Sq. Ft.
Unheated Area:
Garage:600 Sq. Ft.
Dimensions
Width:72' 2''
Depth:67' 4''
Architectural Styles
Exterior Wall Material
Rock/StoneShakes
Roofing Type
Gable
Roofing Material
Asphalt Shingles
Ceiling Height
10 Foot Ceiling
Special Feature
FireplaceMud RoomFamily RoomMain Level LaundryVaulted CeilingsOpen Floor Plan
Garage Type
Attached GarageSide Entry
Fireplaces
Two Fireplaces
Exterior Wall Framing
2x6
Building Lot Type
Corner Lot
Kitchen Features
Kitchen IslandNook/Breakfast AreaWalk-in PantryPeninsula/Eating BarEat-In Kitchen
Porches and Exterior Features
Covered Front PorchCovered Rear PorchSundeck
Master Suite Features
Main Floor MasterMaster BathroomWalk In ClosetSplit Master Bedroom

What’s Included

Most plan sets include the following:

icon text-secondary-400 includedExterior elevations

icon text-secondary-400 includedFoundation plan

icon text-secondary-400 includedDetailed floor plans

icon text-secondary-400 includedInterior details

icon text-secondary-400 includedRoof plan

icon text-secondary-400 includedCross-section details

icon text-secondary-400 includedElectrical layout

What’s Not Included

These items are  NOT included:

icon text-secondary-400 includedArchitectural or Engineering Stamp - handled locally if required.

icon text-secondary-400 includedSite Plan - handled locally when required.

icon text-secondary-400 includedMechanical Drawings (location of heating and air equipment and ductwork) - your subcontractors handle this.

icon text-secondary-400 includedPlumbing Drawings (drawings showing the actual plumbing pipe sizes and locations) - your subcontractors handle this.

icon text-secondary-400 includedEnergy calculations - handled locally when required.

Related House Plans

Plan Collection
Plan Collection
Plan Collection
Plan#142-1041
Starting at$1245
1300
Sq Ft
1
Story
3
Bed
2
Bath
2
Car
Plan Collection
Plan Collection
Plan Collection
Plan#141-1243
Starting at$1485
1640
Sq Ft
1
Story
3
Bed
2
Bath
2
Car
Plan Collection
Plan Collection
Plan Collection
Plan#176-1012
Starting at$600
1412
Sq Ft
1
Story
3
Bed
2
Bath
0
Car
View All

Other Plans By This Designer

Plan Collection
Plan Collection
Plan Collection
Plan#198-1053
Starting at$2195
2498
Sq Ft
1.5
Story
3
Bed
3
Bath
3
Car
Plan Collection
Plan Collection
Plan Collection
Plan#198-1054
Starting at$2630
4376
Sq Ft
2
Story
4
Bed
4.5
Bath
3
Car
Plan Collection
Plan Collection
Plan Collection
Plan#198-1060
Starting at$1985
3970
Sq Ft
2
Story
5
Bed
4.5
Bath
2
Car