3-Bedroom, 1530 Sq Ft Country Plan with Master Bathroom

Front view of Country home (ThePlanCollection: House Plan #146-2893)

Images/Plans copyrighted by designer. Photos may reflect homeowner modifications.

About House Plan #146-2893

Sq Ft
1530
Sq Ft
Bedrooms
3
Bedrooms
Bathroom
2
Baths
Half Baths
0
Half Baths
Bedrooms
2
Cars
Bedrooms
1
Stories
Bedrooms
35' 0'
Width
Bedrooms
69
Depth
Starting at$980.00What's included
STEP 1Bedrooms
STEP 2Bedrooms
STEP 3Bedrooms

Subtotal:$0
Plan Collection

How much will it cost to build?

Estimate your costs based on your location and materials.

Free Cost Instant Estimator

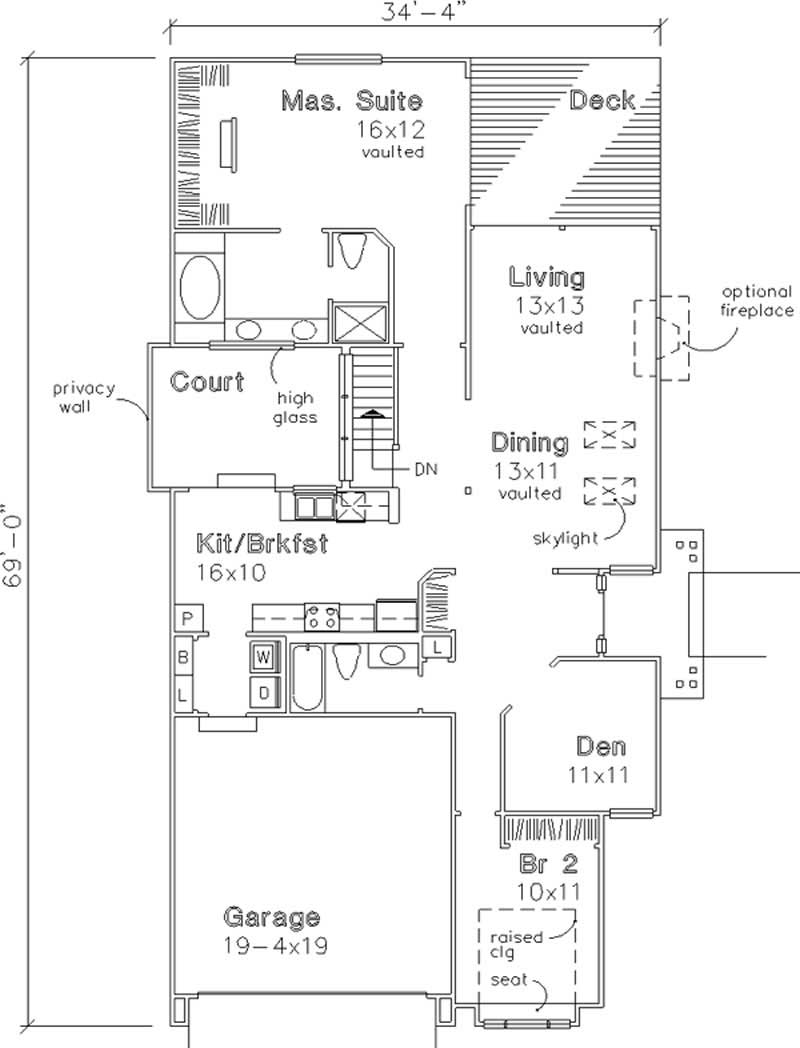
Floor Plans

Floor Plan First Story
Floor Plan First Story
Plan Collection

Can I modify this plan?

Yes! This plan can be customized—contact us for a free quote.

House Plan Description

This widely appealing country design is well-suited for narrow lots. The entry is flanked by a den and a skylighted formal dining area, which unfolds into a large living area offering access to a lovely deck. A convenient galley kitchen opens to a fantastic informal eating area which boasts views of a secluded private courtyard. The master suite flaunts a vaulted ceiling, a private deluxe bath and ample closet space.

Home Details

Summary
Plan #:146-2893
Starting at:$980.00
Floors:1
Bedrooms:3
Full Baths:2
Half Baths:0
Garage:
Square Footage
Heated Area:1530 Sq. Ft.
First Floor:1530 Sq. Ft.
Unheated Area:
Dimensions
Ridge Height:24' 0''
Architectural Styles
Exterior Wall Material
Rock/StoneWood Siding
Roofing Type
Gable
Roofing Material
Asphalt Shingles
Special Feature
FireplaceDining RoomMud RoomMain Level LaundryDenVaulted Ceilings
Garage Type
Attached GarageSide Entry
Fireplaces
Optional FireplaceOne Fireplace
Exterior Wall Framing
2x4
Building Lot Type
Flat SiteNarrow Lot Design
Kitchen Features
Nook/Breakfast AreaWalk-in PantryEat-In Kitchen
Porches and Exterior Features
CourtyardCovered Front PorchSundeck
Master Suite Features
Main Floor MasterMaster BathroomWalk In Closet

What’s Included

Most plan sets include the following:

What’s Not Included

These items are  NOT included:

icon text-secondary-400 includedArchitectural or Engineering Stamp - handled locally if required.

icon text-secondary-400 includedSite Plan - handled locally when required.

icon text-secondary-400 includedMechanical Drawings (location of heating and air equipment and ductwork) - your subcontractors handle this.

icon text-secondary-400 includedPlumbing Drawings (drawings showing the actual plumbing pipe sizes and locations) - your subcontractors handle this.

icon text-secondary-400 includedEnergy calculations - handled locally when required.

Related House Plans

Plan Collection
Plan Collection
Plan Collection
Plan#142-1041
Starting at$1245
1300
Sq Ft
1
Story
3
Bed
2
Bath
2
Car
Plan Collection
Plan Collection
Plan Collection
Plan#141-1243
Starting at$1485
1640
Sq Ft
1
Story
3
Bed
2
Bath
2
Car
Plan Collection
Plan Collection
Plan Collection
Plan#176-1012
Starting at$600
1412
Sq Ft
1
Story
3
Bed
2
Bath
0
Car
View All

Other Plans By This Designer

Plan Collection
Plan Collection
Plan Collection
Plan#146-2806
Starting at$980
1933
Sq Ft
2
Story
3
Bed
2
Bath
0
Car
Plan Collection
Plan Collection
Plan Collection
Plan#146-2810
Starting at$1285
3594
Sq Ft
2
Story
4
Bed
3.5
Bath
2
Car
Plan Collection
Plan Collection
Plan Collection
Plan#146-1917
Starting at$1120
2525
Sq Ft
2
Story
4
Bed
2.5
Bath
3
Car