2-Bedroom, 1544 Sq Ft Per Unit Modern Duplex Plan

Front view of Duplex/Multi-Unit home (ThePlanCollection: House Plan #146-2119)

Images/Plans copyrighted by designer. Photos may reflect homeowner modifications.

About House Plan #146-2119

Sq Ft
1544
Sq Ft
Bedrooms
2
Bedrooms
Bathroom
1
Baths
Half Baths
1
Half Baths
Bedrooms
1
Cars
Bedrooms
2
Stories
Bedrooms
58' 0'
Width
Bedrooms
47
Depth
Starting at$1645.00What's included
STEP 1Bedrooms
STEP 2Bedrooms
STEP 3Bedrooms

Subtotal:$0
Plan Collection

How much will it cost to build?

Estimate your costs based on your location and materials.

Free Cost Instant Estimator

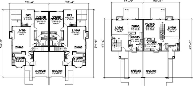
Floor Plans

Main Level
Main Level
Upper Level
Upper Level
Plan Collection

Can I modify this plan?

Yes! This plan can be customized—contact us for a free quote.

House Plan Description

This design offers three possible designs, allowing you to mix and match as desired. Unit A is a one-story design with 1,098 sq. ft. and two bedrooms and one plus baths; Unit B is a two-story design with two bedrooms and one-and-a-half baths and a total of 1,276 sq.ft. of living area; Unit C has 1,544 sq. ft., featuring two bedrooms, a loft and two-and-a-half baths.

Home Details

Summary
Plan #:146-2119
Starting at:$1645.00
Floors:2
Bedrooms:2
Full Baths:1
Half Baths:1
Garage:
Square Footage
Heated Area:1544 Sq. Ft.
First Floor:766 Sq. Ft.
Second Floor:778 Sq. Ft.
Unheated Area:
Dimensions
Ridge Height:26-0' 0''
Architectural Styles
Exterior Wall Material
Wood Siding
Roofing Type
Gable
Garage Type
Attached GarageFront Entry
Fireplaces
One Fireplace
Exterior Wall Framing
2x4

What’s Included

Most plan sets include the following:

What’s Not Included

These items are  NOT included:

icon text-secondary-400 includedArchitectural or Engineering Stamp - handled locally if required.

icon text-secondary-400 includedSite Plan - handled locally when required.

icon text-secondary-400 includedMechanical Drawings (location of heating and air equipment and ductwork) - your subcontractors handle this.

icon text-secondary-400 includedPlumbing Drawings (drawings showing the actual plumbing pipe sizes and locations) - your subcontractors handle this.

icon text-secondary-400 includedEnergy calculations - handled locally when required.

Related House Plans

Plan Collection
Plan Collection
Plan Collection
Plan#146-2041
Starting at$1425
1176
Sq Ft
2
Story
2
Bed
1.5
Bath
2
Car
Plan Collection
Plan Collection
Plan Collection
Plan#145-1936
Starting at$800
1892
Sq Ft
2
Story
2
Bed
1
Bath
1
Car
Plan Collection
Plan Collection
Plan Collection
Plan#146-2708
Starting at$1425
1617
Sq Ft
2
Story
2
Bed
1.5
Bath
2
Car
View All

Other Plans By This Designer

Plan Collection
Plan Collection
Plan Collection
Plan#146-2806
Starting at$980
1933
Sq Ft
2
Story
3
Bed
2
Bath
0
Car
Plan Collection
Plan Collection
Plan Collection
Plan#146-2810
Starting at$1285
3594
Sq Ft
2
Story
4
Bed
3.5
Bath
2
Car
Plan Collection
Plan Collection
Plan Collection
Plan#146-1917
Starting at$1120
2525
Sq Ft
2
Story
4
Bed
2.5
Bath
3
Car