3-Bedroom, 1583 Sq Ft Country Plan with Covered Rear Porch

Main image for house plan # 20151

Images/Plans copyrighted by designer. Photos may reflect homeowner modifications.

About House Plan #131-1145

Sq Ft
1583
Sq Ft
Bedrooms
3
Bedrooms
Bathroom
2
Baths
Half Baths
0
Half Baths
Bedrooms
2
Cars
Bedrooms
1
Stories
Bedrooms
70' 0'
Width
Bedrooms
46
Depth
Starting at$850.00What's included
STEP 1Bedrooms
STEP 2Bedrooms
STEP 3Bedrooms

Subtotal:$0
Plan Collection

How much will it cost to build?

Estimate your costs based on your location and materials.

Free Cost Instant Estimator

Floor Plans

FLOOR PLAN
FLOOR PLAN
FLOOR PLAN OPTION
FLOOR PLAN OPTION
Plan Collection

Can I modify this plan?

Yes! This plan can be customized—contact us for a free quote.

House Plan Description

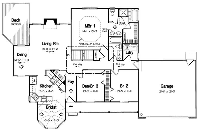
Everyday should begin so beautifullyin your own gazebo-style breakfast room bright with windows and within reach of the kitchen with far-reaching lunch counter. The dining room, on the opposite side of the kitchen, features a large window and sliders to the exterior deck. The flow is optimally smooth as the living room with fireplace is wide open. Bedrooms #2 and #3 have birds-eye-view of the front porch. A full bath with laundry facilities is theirs to share. The rear of the house cuddles the master suite. Ceiling treatment and pretty windowing add character and natural light. The sky-lit...

Home Details

Summary
Plan #:131-1145
Starting at:$850.00
Floors:1
Bedrooms:3
Full Baths:2
Half Baths:0
Garage:
Square Footage
Heated Area:1583 Sq. Ft.
First Floor:1583 Sq. Ft.
Unheated Area:
Garage:484 Sq. Ft.
Dimensions
Ridge Height:20'' 0''
Architectural Styles
Exterior Wall Material
Vinyl SidingBrick
Roofing Type
Hip
Roof Pitch
6/12
Ceiling Height
8 Foot Ceiling
Special Feature
FireplaceDining RoomColor Photos
Garage Type
Attached GarageFront Entry
Fireplaces
One Fireplace
Exterior Wall Framing
2x62x4

What’s Included

Most plan sets include the following:

icon text-secondary-400 includedExterior elevations

icon text-secondary-400 includedFoundation plans

icon text-secondary-400 includedInterior elevations

icon text-secondary-400 includedElectrical layout

icon text-secondary-400 includedDetailed house floor plans

What’s Not Included

These items are  NOT included:

icon text-secondary-400 includedArchitectural or Engineering Stamp - handled locally if required.

icon text-secondary-400 includedSite Plan - handled locally when required.

icon text-secondary-400 includedMechanical Drawings (location of heating and air equipment and ductwork) - your subcontractors handle this.

icon text-secondary-400 includedPlumbing Drawings (drawings showing the actual plumbing pipe sizes and locations) - your subcontractors handle this.

icon text-secondary-400 includedEnergy calculations - handled locally when required.

Related House Plans

Plan Collection
Plan Collection
Plan Collection
Plan#142-1041
Starting at$1245
1300
Sq Ft
1
Story
3
Bed
2
Bath
2
Car
Plan Collection
Plan Collection
Plan Collection
Plan#141-1243
Starting at$1485
1640
Sq Ft
1
Story
3
Bed
2
Bath
2
Car
Plan Collection
Plan Collection
Plan Collection
Plan#176-1012
Starting at$600
1412
Sq Ft
1
Story
3
Bed
2
Bath
0
Car
View All

Other Plans By This Designer

Plan Collection
Plan Collection
Plan Collection
Plan#131-1013
Starting at$900
2083
Sq Ft
2
Story
3
Bed
2.5
Bath
2
Car
Plan Collection
Plan Collection
Plan Collection
Plan#131-1047
Starting at$800
1792
Sq Ft
1
Story
3
Bed
2
Bath
0
Car
Plan Collection
Plan Collection
Plan Collection
Plan#131-1243
Starting at$600
972
Sq Ft
2
Story
3
Bed
1
Bath
0
Car