Farmhouse Multi-Family Plan with 4 Bedrooms, 1595 Sq Ft Per Unit

Farmhouse home (ThePlanCollection: Plan #193-1099)

Images/Plans copyrighted by designer. Photos may reflect homeowner modifications.

About House Plan #193-1099

Sq Ft
1595
Sq Ft
Bedrooms
4
Bedrooms
Bathroom
3
Baths
Half Baths
0
Half Baths
Bedrooms
0
Cars
Bedrooms
1.5
Stories
Bedrooms
69' 4'
Width
Bedrooms
48
Depth
Starting at$2050.00What's included
STEP 1Bedrooms
STEP 2Bedrooms
STEP 3Bedrooms

Subtotal:$0
Plan Collection

How much will it cost to build?

Estimate your costs based on your location and materials.

Free Cost Instant Estimator

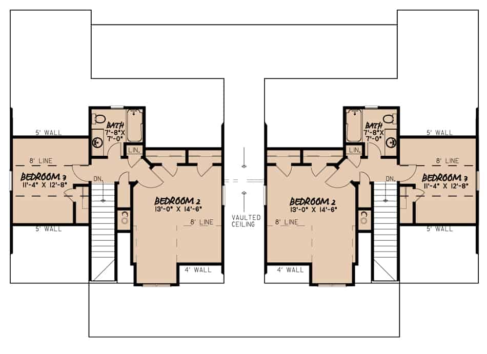
Floor Plans

Floor Plan Main Level
Floor Plan Main Level
Floor Plan Upper Level
Floor Plan Upper Level
Plan Collection

Can I modify this plan?

Yes! This plan can be customized—contact us for a free quote.

Additional Notes from Designer

For this designer, if you choose optional features such as but not limited to: 2x6 exterior walls, reverse or optional basement, the designer will need an additional 2-5 business days to adjust the plan accordingly. Please keep this in mind when choosing your shipping option. if you would like Express or Priority shipping, the designer will ship the plan to you using the method you choose but you will still have the 2-5 business day waiting period BEFORE they ship! This designer does not offer Framing. Please feel free to contact us with any questions!

House Plan Description

This lovely Farmhouse style home with Country influences (Multi-Family Plan #193-1099) has 1595 square feet of living space per unit. The 1.5 story floor plan includes 4 bedrooms per unit.

Home Details

Summary
Plan #:193-1099
Starting at:$2050.00
Floors:1.5
Bedrooms:4
Full Baths:3
Half Baths:0
Garage:
Square Footage
Heated Area:1595 Sq. Ft.
First Floor:1083 Sq. Ft.
Second Floor:512 Sq. Ft.
Unheated Area:
Porch:913 Sq. Ft.
Dimensions
Width:69' 4''
Depth:48' 6''
Architectural Styles
Exterior Wall Material
Vinyl SidingRock/StoneWood SidingShakes
Roofing Type
Dutch Gable
Roofing Material
Metal
Roof Pitch
5/129/12
Ceiling Height
9 Foot Ceiling8 Foot Ceiling
Special Feature
FireplaceFamily RoomDenOpen Floor Plan
Fireplaces
Two Fireplaces
Exterior Wall Framing
2x4
Kitchen Features
Peninsula/Eating Bar
Porches and Exterior Features
Wrap Around Porch
Master Suite Features
Main Floor MasterMaster BathroomWalk In Closet

What’s Included

Most plan sets include the following:

icon text-secondary-400 included Each plan set includes the following:

icon text-secondary-400 included floorplan

icon text-secondary-400 included 4 side exterior elevations,

icon text-secondary-400 included electrical plan,

icon text-secondary-400 included birds-eye view of the roof,

icon text-secondary-400 included foundation plan,

icon text-secondary-400 included and some miscellaneous details. Please Note We do not offer framing, plumbing, HVAC, or window scheduling. This will have to be done on a local level, probably by your building team!

What’s Not Included

These items are  NOT included:

icon text-secondary-400 includedArchitectural or Engineering Stamp - handled locally if required.

icon text-secondary-400 includedSite Plan - handled locally when required.

icon text-secondary-400 includedMechanical Drawings (location of heating and air equipment and ductwork) - your subcontractors handle this.

icon text-secondary-400 includedPlumbing Drawings (drawings showing the actual plumbing pipe sizes and locations) - your subcontractors handle this.

icon text-secondary-400 includedEnergy calculations - handled locally when required.

icon text-secondary-400 includedNo Framing

Other Plans By This Designer

Plan Collection
Plan Collection
Plan Collection
Plan#193-1108
Starting at$1350
1905
Sq Ft
1.5
Story
3
Bed
2
Bath
0
Car
Plan Collection
Plan Collection
Plan Collection
Plan#193-1179
Starting at$1000
2006
Sq Ft
1.5
Story
3
Bed
2.5
Bath
2
Car
Plan Collection
Plan Collection
Plan Collection
Plan#193-1145
Starting at$1200
1897
Sq Ft
1
Story
4
Bed
2.5
Bath
3
Car