4-Bedroom, 1612 Sq Ft Lake Plan with Walk In Closet

Front elevation of Lake home (ThePlanCollection: House Plan #123-1043)

Images/Plans copyrighted by designer. Photos may reflect homeowner modifications.

About House Plan #123-1043

Sq Ft
1612
Sq Ft
Bedrooms
4
Bedrooms
Bathroom
2
Baths
Half Baths
0
Half Baths
Bedrooms
2
Cars
Bedrooms
1
Stories
Bedrooms
46' 0'
Width
Bedrooms
64
Depth
Starting at$980.00What's included
STEP 1Bedrooms
STEP 2Bedrooms
STEP 3Bedrooms

Subtotal:$0
Plan Collection

How much will it cost to build?

Estimate your costs based on your location and materials.

Free Cost Instant Estimator

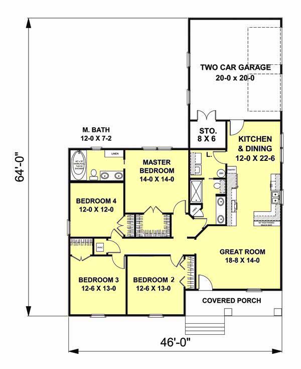
Floor Plans

Floor Plan First Story
Floor Plan First Story
Plan Collection

Can I modify this plan?

Yes! This plan can be customized—contact us for a free quote.

Additional Notes from Designer

PLEASE NOTE! When ordering options such as an optional foundation, RRR or 2x4 or 2x6 conversions, the designer may require an additional 2-5 business days to create it. Please keep this in mind when ordering.

House Plan Description

This charming craftsman inspired design will welcome you with style. Step into this open plan and enjoy all of the room in this small home with no wasted space. A large Great Room shares a snack bar with the Kitchen. Glass front/backed cabinets above the snack bar allow extra light into the Kitchen/Dining Area. A nice sized Laundry Room has easy access, with a pocket door to Bath #2 for laundry day. Bath #2 houses dual sinks, built in linen, and plenty of storage. The Master Bedroom is large and has an equally large walk-in closet. The Master Bath has dual sinks, a custom linen cabinet,...

Home Details

Summary
Plan #:123-1043
Starting at:$980.00
Floors:1
Bedrooms:4
Full Baths:2
Half Baths:0
Garage:
Square Footage
Heated Area:1612 Sq. Ft.
First Floor:1612 Sq. Ft.
Unheated Area:
Dimensions
Architectural Styles
Exterior Wall Material
Wood SidingShakes
Roofing Type
GableHip
Roofing Material
Asphalt Shingles
Special Feature
Dining RoomMain Level LaundrySplit BathroomStorage
Garage Type
Attached GarageSide Entry
Exterior Wall Framing
2x4
Building Lot Type
Flat Site
Kitchen Features
Peninsula/Eating BarEat-In Kitchen
Porches and Exterior Features
Covered Front Porch
Master Suite Features
Main Floor MasterMaster BathroomWalk In Closet

What’s Included

Most plan sets include the following:

icon text-secondary-400 includedFloor plans - Included with your plans will be a detailed floor plan at 1/4" scale with a window and door schedule.

icon text-secondary-400 includedFoundation

icon text-secondary-400 includedElectrical Layout

icon text-secondary-400 includedExterior and Interior Elevations

icon text-secondary-400 includedBuilding Sections

icon text-secondary-400 includedDetails and Typical Specifications

icon text-secondary-400 includedSheet

What’s Not Included

These items are  NOT included:

icon text-secondary-400 includedArchitectural or Engineering Stamp - handled locally if required.

icon text-secondary-400 includedSite Plan - handled locally when required.

icon text-secondary-400 includedMechanical Drawings (location of heating and air equipment and ductwork) - your subcontractors handle this.

icon text-secondary-400 includedPlumbing Drawings (drawings showing the actual plumbing pipe sizes and locations) - your subcontractors handle this.

icon text-secondary-400 includedEnergy calculations - handled locally when required.

Related House Plans

Plan Collection
Plan Collection
Plan Collection
Plan#142-1078
Starting at$1295
1798
Sq Ft
1
Story
4
Bed
2
Bath
2
Car
Plan Collection
Plan Collection
Plan Collection
Plan#153-1440
Starting at$1100
1965
Sq Ft
1
Story
4
Bed
2
Bath
2
Car
Plan Collection
Plan Collection
Plan Collection
Plan#150-1008
Starting at$1345
1938
Sq Ft
1
Story
4
Bed
2
Bath
2
Car
View All

Other Plans By This Designer

Plan Collection
Plan Collection
Plan Collection
Plan#123-1112
Starting at$980
1611
Sq Ft
1
Story
3
Bed
2
Bath
2
Car
Plan Collection
Plan Collection
Plan Collection
Plan#123-1100
Starting at$850
1311
Sq Ft
1
Story
3
Bed
2
Bath
0
Car
Plan Collection
Plan Collection
Plan Collection
Plan#123-1116
Starting at$850
1035
Sq Ft
1
Story
3
Bed
2
Bath
0
Car