2-Bedroom, 1630 Sq Ft Country Plan with Nook/Breakfast Area

Front view of Country home (ThePlanCollection: House Plan #146-1742)

Images/Plans copyrighted by designer. Photos may reflect homeowner modifications.

About House Plan #146-1742

Sq Ft
1630
Sq Ft
Bedrooms
2
Bedrooms
Bathroom
2
Baths
Half Baths
1
Half Baths
Bedrooms
2
Cars
Bedrooms
1
Stories
Bedrooms
52' 0'
Width
Bedrooms
58
Depth
Starting at$980.00What's included
STEP 1Bedrooms
STEP 2Bedrooms
STEP 3Bedrooms

Subtotal:$0
Plan Collection

How much will it cost to build?

Estimate your costs based on your location and materials.

Free Cost Instant Estimator

Floor Plans

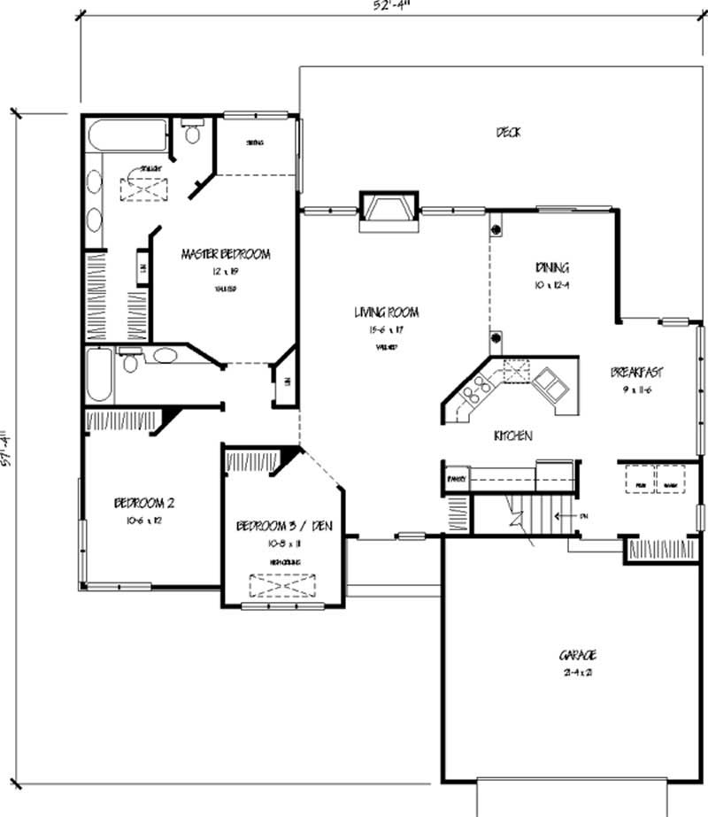
Floor Plan First Story
Floor Plan First Story
Plan Collection

Can I modify this plan?

Yes! This plan can be customized—contact us for a free quote.

House Plan Description

This home embraces easy living with its huge backyard deck, which may be accessed from three areas of the home. The sidelighted entry opens to the spacious vaulted living room, where a fireplace is centered between windows. The adjoining dining room is adorned with decorative columns, and sliding glass doors access the expansive deck. The angled kitchen has a corner sink, plenty of counter space and a sunny breakfast nook that opens to the deck. The vaulted master suite boasts a bright sitting area with private deck access. The skylighted master bath features a large walk-in closet, a...

Home Details

Summary
Plan #:146-1742
Starting at:$980.00
Floors:1
Bedrooms:2
Full Baths:2
Half Baths:1
Garage:
Square Footage
Heated Area:1630 Sq. Ft.
First Floor:1630 Sq. Ft.
Unheated Area:
Dimensions
Architectural Styles
Exterior Wall Material
Wood Siding
Roofing Type
Gable
Roofing Material
Asphalt Shingles
Special Feature
FireplaceDining RoomHome OfficeMain Level Laundry
Garage Type
Attached GarageFront Entry
Fireplaces
One Fireplace
Exterior Wall Framing
2x4
Building Lot Type
Flat Site
Kitchen Features
Nook/Breakfast AreaWalk-in PantryPeninsula/Eating Bar
Porches and Exterior Features
Covered Front PorchSundeck
Master Suite Features
Main Floor Master

What’s Included

Most plan sets include the following:

What’s Not Included

These items are  NOT included:

icon text-secondary-400 includedArchitectural or Engineering Stamp - handled locally if required.

icon text-secondary-400 includedSite Plan - handled locally when required.

icon text-secondary-400 includedMechanical Drawings (location of heating and air equipment and ductwork) - your subcontractors handle this.

icon text-secondary-400 includedPlumbing Drawings (drawings showing the actual plumbing pipe sizes and locations) - your subcontractors handle this.

icon text-secondary-400 includedEnergy calculations - handled locally when required.

Related House Plans

Plan Collection
Plan Collection
Plan Collection
Plan#123-1071
Starting at$850
1292
Sq Ft
1
Story
2
Bed
2
Bath
0
Car
Plan Collection
Plan Collection
Plan Collection
Plan#192-1001
Starting at$500
1270
Sq Ft
1
Story
2
Bed
2
Bath
0
Car
Plan Collection
Plan Collection
Plan Collection
Plan#138-1003
Starting at$1050
1922
Sq Ft
1
Story
2
Bed
2
Bath
1
Car
View All

Other Plans By This Designer

Plan Collection
Plan Collection
Plan Collection
Plan#146-2806
Starting at$980
1933
Sq Ft
2
Story
3
Bed
2
Bath
0
Car
Plan Collection
Plan Collection
Plan Collection
Plan#146-2810
Starting at$1285
3594
Sq Ft
2
Story
4
Bed
3.5
Bath
2
Car
Plan Collection
Plan Collection
Plan Collection
Plan#146-1917
Starting at$1120
2525
Sq Ft
2
Story
4
Bed
2.5
Bath
3
Car