4-Bedroom, 1632 Sq Ft French Plan with Split Master Bedroom

Front elevation of French home (ThePlanCollection: House Plan #140-1122)

Images/Plans copyrighted by designer. Photos may reflect homeowner modifications.

About House Plan #140-1122

Sq Ft
1632
Sq Ft
Bedrooms
4
Bedrooms
Bathroom
2
Baths
Half Baths
0
Half Baths
Bedrooms
2
Cars
Bedrooms
1
Stories
Bedrooms
49' 5'
Width
Bedrooms
62
Depth
Starting at$845.00What's included
STEP 1Bedrooms
STEP 2Bedrooms
STEP 3Bedrooms

Subtotal:$0
Plan Collection

How much will it cost to build?

Estimate your costs based on your location and materials.

Free Cost Instant Estimator

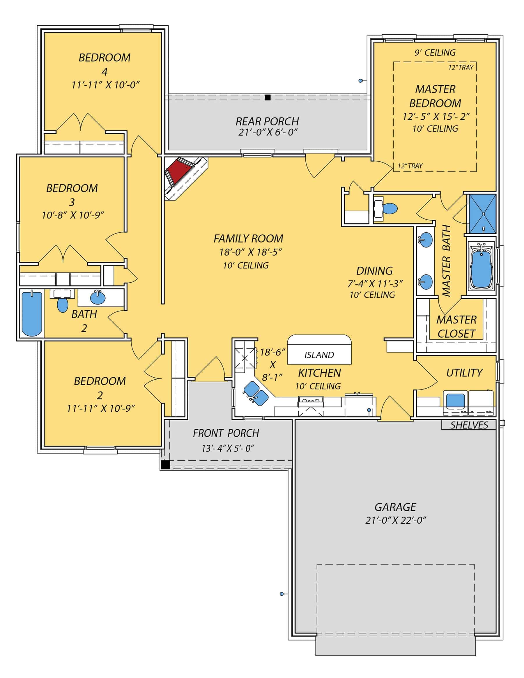
Floor Plans

Main Level
Main Level
Plan Collection

Can I modify this plan?

Yes! This plan can be customized—contact us for a free quote.

Additional Notes from Designer

Please Note that the designer's office will be closed from December 22 to January 3 inclusively. All inquiries and orders will be processed when the designer resumes office hours on January 4th, 2023.

House Plan Description

This warm and welcoming moderate-sized French style home with  Acadian touch is just what you are looking for! The house has a heated area of 1632 square feet that is utilized and maximized in every available square inch of the floor plan.   The multiple roof levels, the ornate carved wooden front door add glamour to this house.  The house also includes these awesome amenities:

• Fireplace in the family room
• Spacious utility room
• Lots of storage space
 

Home Details

Summary
Plan #:140-1122
Starting at:$845.00
Floors:1
Bedrooms:4
Full Baths:2
Half Baths:0
Garage:
Square Footage
Heated Area:1632 Sq. Ft.
First Floor:1632 Sq. Ft.
Unheated Area:
Garage:462 Sq. Ft.
Porch:210 Sq. Ft.
Dimensions
Width:49' 5''
Depth:62' 6''
Architectural Styles
Exterior Wall Material
BrickRock/Stone
Roofing Type
Hip
Roofing Material
Asphalt Shingles
Roof Pitch
12/1210/12
Ceiling Height
10 Foot Ceiling9 Foot Ceiling
Special Feature
FireplaceFamily RoomMain Level LaundrySplit BathroomStorageOpen Floor Plan
Garage Type
Attached GarageFront Entry
Fireplaces
One Fireplace
Exterior Wall Framing
2x4
Kitchen Features
Kitchen IslandPeninsula/Eating Bar
Porches and Exterior Features
Covered Front PorchCovered Rear Porch
Master Suite Features
Main Floor MasterMaster BathroomWalk In ClosetSplit Master Bedroom

What’s Included

Most plan sets include the following:

icon text-secondary-400 includedFLOOR PLAN: Showing all dimensions, window and door locations, laminated beams, columns, floor materials, ceiling heights, fireplace size, and specifications.

icon text-secondary-400 includedGENERAL NOTES

icon text-secondary-400 includedFOUNDATION PLAN: Dimensioned plan detailing the location and size of footings, slabs, reinforcing steel, and other structural elements that are required to support the load of the upper floors.

icon text-secondary-400 includedFRONT, REAR, AND SIDE ELEVATIONS:The front, rear, and side elevations of the house as drawn. Shows placement of doors & windows on exterior of house, as well as roof pitches, ridge heights, and locations of chimney, exterior vents, etc. The elevations show the positioning of the final grade of the lot, exterior finishes, and other details that are necessary to give the home exterior architectural styling.

icon text-secondary-400 includedCROSS SECTIONS AND INTERIOR DETAILS:Explain certain special conditions more appropriately. A cross section is basically a view of the home (or parts of the home) if it were sliced down the center. These details can be helpful for the contractor.

What’s Not Included

These items are  NOT included:

icon text-secondary-400 includedArchitectural or Engineering Stamp - handled locally if required.

icon text-secondary-400 includedSite Plan - handled locally when required.

icon text-secondary-400 includedMechanical Drawings (location of heating and air equipment and ductwork) - your subcontractors handle this.

icon text-secondary-400 includedPlumbing Drawings (drawings showing the actual plumbing pipe sizes and locations) - your subcontractors handle this.

icon text-secondary-400 includedEnergy calculations - handled locally when required.

icon text-secondary-400 includedWindow Specifications to e provided by Manufacturer

Related House Plans

Plan Collection
Plan Collection
Plan Collection
Plan#142-1078
Starting at$1295
1798
Sq Ft
1
Story
4
Bed
2
Bath
2
Car
Plan Collection
Plan Collection
Plan Collection
Plan#153-1440
Starting at$1100
1965
Sq Ft
1
Story
4
Bed
2
Bath
2
Car
Plan Collection
Plan Collection
Plan Collection
Plan#150-1008
Starting at$1345
1938
Sq Ft
1
Story
4
Bed
2
Bath
2
Car
View All

Other Plans By This Designer

Plan Collection
Plan Collection
Plan Collection
Plan#140-1086
Starting at$845
1768
Sq Ft
1
Story
3
Bed
2
Bath
2
Car
Plan Collection
Plan Collection
Plan Collection
Plan#140-1120
Starting at$945
2292
Sq Ft
1
Story
4
Bed
3
Bath
2
Car
Plan Collection
Plan Collection
Plan Collection
Plan#140-1114
Starting at$945
2694
Sq Ft
1
Story
4
Bed
3
Bath
2
Car