2-Bedroom, 1640 Sq Ft Ranch Plan with Covered Rear Porch

Front view of Ranch home (ThePlanCollection: House Plan #146-1489)

Images/Plans copyrighted by designer. Photos may reflect homeowner modifications.

About House Plan #146-1489

Sq Ft
1640
Sq Ft
Bedrooms
2
Bedrooms
Bathroom
2
Baths
Half Baths
0
Half Baths
Bedrooms
2
Cars
Bedrooms
1
Stories
Bedrooms
56' 0'
Width
Bedrooms
53
Depth
Starting at$980.00What's included
STEP 1Bedrooms
STEP 2Bedrooms
STEP 3Bedrooms

Subtotal:$0
Plan Collection

How much will it cost to build?

Estimate your costs based on your location and materials.

Free Cost Instant Estimator

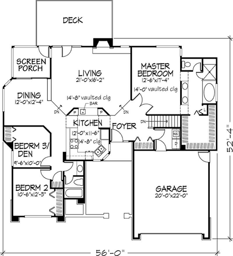
Floor Plans

Floor Plan First Story
Floor Plan First Story
Plan Collection

Can I modify this plan?

Yes! This plan can be customized—contact us for a free quote.

House Plan Description

This ranch home greets guests with an alluring courtyard. A fabulous sunken living room offers a vaulted ceiling, a large fireplace, a wet bar and French doors which open to a lovely rear deck. The secluded master suite flaunts a built-in window seat, a spacious walk-in closet and a luxurious private bath.

Home Details

Summary
Plan #:146-1489
Starting at:$980.00
Floors:1
Bedrooms:2
Full Baths:2
Half Baths:0
Garage:
Square Footage
Heated Area:1640 Sq. Ft.
First Floor:1640 Sq. Ft.
Unheated Area:
Dimensions
Ridge Height:19' 0''
Architectural Styles
Exterior Wall Material
BrickWood Siding
Roofing Type
Gable
Roofing Material
Asphalt Shingles
Special Feature
FireplaceDining RoomHome OfficeMain Level LaundryLibrary
Garage Type
Attached GarageFront Entry
Fireplaces
One Fireplace
Exterior Wall Framing
2x4
Building Lot Type
Flat Site
Kitchen Features
Walk-in PantryPeninsula/Eating Bar
Porches and Exterior Features
CourtyardSundeckScreened Porch/Sunroom
Master Suite Features
Main Floor Master

What’s Included

Most plan sets include the following:

What’s Not Included

These items are  NOT included:

icon text-secondary-400 includedArchitectural or Engineering Stamp - handled locally if required.

icon text-secondary-400 includedSite Plan - handled locally when required.

icon text-secondary-400 includedMechanical Drawings (location of heating and air equipment and ductwork) - your subcontractors handle this.

icon text-secondary-400 includedPlumbing Drawings (drawings showing the actual plumbing pipe sizes and locations) - your subcontractors handle this.

icon text-secondary-400 includedEnergy calculations - handled locally when required.

Related House Plans

Plan Collection
Plan Collection
Plan Collection
Plan#138-1003
Starting at$1050
1922
Sq Ft
1
Story
2
Bed
2
Bath
1
Car
Plan Collection
Plan Collection
Plan Collection
Plan#178-1204
Starting at$945
1274
Sq Ft
1
Story
2
Bed
2
Bath
2
Car
Plan Collection
Plan Collection
Plan Collection
Plan#178-1047
Starting at$945
1394
Sq Ft
1
Story
2
Bed
2
Bath
2
Car
View All

Other Plans By This Designer

Plan Collection
Plan Collection
Plan Collection
Plan#146-2806
Starting at$980
1933
Sq Ft
2
Story
3
Bed
2
Bath
0
Car
Plan Collection
Plan Collection
Plan Collection
Plan#146-2810
Starting at$1285
3594
Sq Ft
2
Story
4
Bed
3.5
Bath
2
Car
Plan Collection
Plan Collection
Plan Collection
Plan#146-1917
Starting at$1120
2525
Sq Ft
2
Story
4
Bed
2.5
Bath
3
Car