Estimate your costs based on your location and materials.
Yes! This plan can be customized—contact us for a free quote.
Yes! This plan can be customized—contact us for a free quote.
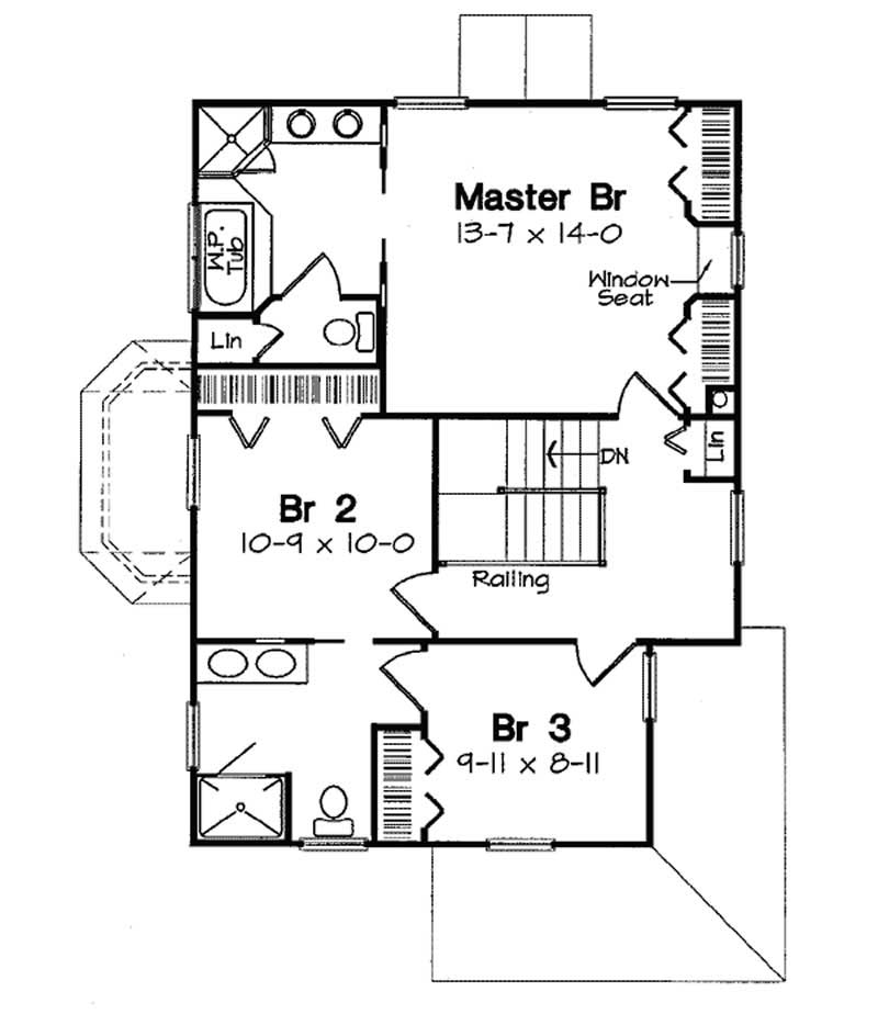
This well-done, two-story, Bungalow Style house plan has 1663 total living square feet. This home plan includes 3 bedrooms and 2.5 baths. Enter from the wraparound porch into the foyer. To your left is the spacious living room. Adjoining the living room is the dining room which is noteworthy with its octagonal shape and trey ceiling. The kitchen includes an island with a breakfast bar and a pantry. A half bath and the laundry space complete the main floor. The upper floor plan has 3 bedrooms and 2 full bathrooms. The second-floor master suite includes its own private master bath with...
Estimate your costs based on your location and materials.
All sales of house plans, modifications, and other products found on this site are final. No refunds or exchanges can be given once your order has begun the fulfillment process. Please see our Policies for additional information.
All plans offered on ThePlanCollection.com are designed to conform to the local building codes when and where the original plan was drawn.
The homes as shown in photographs and renderings may differ from the actual blueprints. For more detailed information, please review the floor plan images herein carefully.
Estimate your costs based on your location and materials.