2-Bedroom, 1680 Sq Ft Modern Plan with Mud Room

Front elevation of Modern home (ThePlanCollection: House Plan #196-1101)

Images/Plans copyrighted by designer. Photos may reflect homeowner modifications.

About House Plan #196-1102

Sq Ft
1680
Sq Ft
Bedrooms
2
Bedrooms
Bathroom
2
Baths
Half Baths
1
Half Baths
Bedrooms
2
Cars
Bedrooms
3
Stories
Bedrooms
25' 0'
Width
Bedrooms
30
Depth
Starting at$1125.00What's included
STEP 1Bedrooms
STEP 2Bedrooms
STEP 3Bedrooms

Subtotal:$0
Plan Collection

How much will it cost to build?

Estimate your costs based on your location and materials.

Free Cost Instant Estimator

Floor Plans

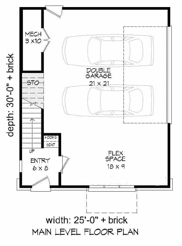
Floor Plan Main Level
Floor Plan Main Level
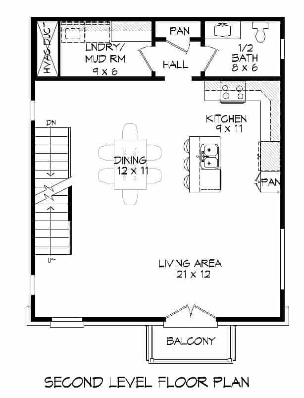
Floor Plan Upper Level
Floor Plan Upper Level
Floor Plan Third Story
Floor Plan Third Story
Floor Plan Fourth Story
Floor Plan Fourth Story
Plan Collection

Can I modify this plan?

Yes! This plan can be customized—contact us for a free quote.

Additional Notes from Designer

NOTE FROM DESIGNER REGARDING PLAN PURCHASES: 80% of a 5 set purchase price can be applied to any PDF or CAD license upgrade. Additionally, 80% of PDF Study purchase price can be applied to any CAD or PDF license upgrade.

House Plan Description

This lovely Modern style home with Contemporary influences (House Plan #196-1101) has 1680 square feet of living space. The 3 story floor plan includes 2 bedrooms.

Home Details

Summary
Plan #:196-1102
Starting at:$1125.00
Floors:3
Bedrooms:2
Full Baths:2
Half Baths:1
Garage:
Square Footage
Heated Area:1680 Sq. Ft.
First Floor:83 Sq. Ft.
Second Floor:762 Sq. Ft.
Third Floor:762 Sq. Ft.
Unheated Area:
Garage:679 Sq. Ft.
Dimensions
Architectural Styles
Exterior Wall Material
Brick
Roofing Type
Flat
Roofing Material
Other Composites
Ceiling Height
9 Foot Ceiling
Special Feature
Mud RoomFamily RoomStorageBalconySecond Level LaundryOpen Floor Plan
Garage Type
Side Entry
Exterior Wall Framing
2x4
Building Lot Type
Corner Lot
Kitchen Features
Kitchen IslandPeninsula/Eating BarEat-In Kitchen
Master Suite Features
Master BathroomWalk In Closet

What’s Included

Most plan sets include the following:

What’s Not Included

These items are  NOT included:

Related House Plans

Plan Collection
Plan Collection
Plan Collection
Plan#196-1113
Starting at$920
1834
Sq Ft
3
Story
2
Bed
2.5
Bath
0
Car
Plan Collection
Plan Collection
Plan Collection
Plan#196-1081
Starting at$810
1457
Sq Ft
3
Story
2
Bed
2.5
Bath
1
Car
Plan Collection
Plan Collection
Plan Collection
Plan#196-1082
Starting at$810
1457
Sq Ft
3
Story
2
Bed
2.5
Bath
1
Car
View All

Other Plans By This Designer

Plan Collection
Plan Collection
Plan Collection
Plan#196-1211
Starting at$695
650
Sq Ft
2
Story
1
Bed
1
Bath
2
Car
Plan Collection
Plan Collection
Plan Collection
Plan#196-1196
Starting at$810
1500
Sq Ft
1
Story
2
Bed
2
Bath
3
Car
Plan Collection
Plan Collection
Plan Collection
Plan#196-1216
Starting at$845
1727
Sq Ft
2
Story
2
Bed
2
Bath
2
Car