1-Bedroom, 1718 Sq Ft Contemporary Plan with Master Bathroom

Main image for house plan # 3066

Images/Plans copyrighted by designer. Photos may reflect homeowner modifications.

About House Plan #108-1442

Sq Ft
1718
Sq Ft
Bedrooms
1
Bedrooms
Bathroom
2
Baths
Half Baths
0
Half Baths
Bedrooms
2
Cars
Bedrooms
2
Stories
Bedrooms
52' 6'
Width
Bedrooms
60
Depth
Starting at$1425.00What's included
STEP 1Bedrooms
STEP 2Bedrooms
STEP 3Bedrooms

Subtotal:$0
Plan Collection

How much will it cost to build?

Estimate your costs based on your location and materials.

Free Cost Instant Estimator

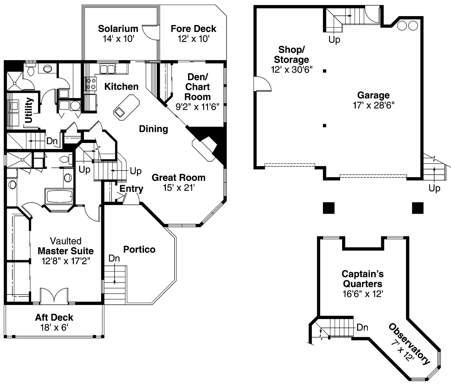
Floor Plans

Floor Plan First Story
Floor Plan First Story
Plan Collection

Can I modify this plan?

Yes! This plan can be customized—contact us for a free quote.

Additional Notes from Designer

PLEASE NOTE!! For this designer, The PDF that comes with the PRINT Packages (5 set+PDF and 8 set+PDF) is NOT Modifiable - it is for printing ONLY! PLEASE NOTE!! Optional Foundations (foundations that cost extra money) will take 5-10 business days to complete.

House Plan Description

The #108-1442 home plan is a two story, contemporary style house plan with 1749 total living square feet. This multilevel, contemporary home plan has a strong focus on exterior vistas. Light from the solarium washes into the open kitchen that includes a work island. A uniquely shaped captain's quarters offers views in three directions.

Home Details

Summary
Plan #:108-1442
Starting at:$1425.00
Floors:2
Bedrooms:1
Full Baths:2
Half Baths:0
Garage:
Square Footage
Heated Area:1718 Sq. Ft.
First Floor:1375 Sq. Ft.
Second Floor:343 Sq. Ft.
Unheated Area:
Garage:918 Sq. Ft.
Dimensions
Width:52' 6''
Ridge Height:25-4' 0''
Architectural Styles
Exterior Wall Material
Vinyl SidingRock/Stone
Roof Pitch
9/12
Ceiling Height
9 Foot Ceiling
Garage Type
Attached Garage
Fireplaces
One Fireplace
Exterior Wall Framing
2x6

What’s Included

Most plan sets include the following:

icon text-secondary-400 included Artist’s rendering of the home,

icon text-secondary-400 included Front/Rear/Left and Right Elevations,

icon text-secondary-400 included Main floor plan, Second or Basement floor plans (if applicable),

icon text-secondary-400 included Foundation plan and detail,

icon text-secondary-400 included Floor framing plan,

icon text-secondary-400 included Roof framing plan, supporting details and

icon text-secondary-400 included Electric layout.

What’s Not Included

These items are  NOT included:

icon text-secondary-400 includedArchitectural or Engineering Stamp - handled locally if required.

icon text-secondary-400 includedSite Plan - handled locally when required.

icon text-secondary-400 includedMechanical Drawings (location of heating and air equipment and ductwork) - your subcontractors handle this.

icon text-secondary-400 includedPlumbing Drawings (drawings showing the actual plumbing pipe sizes and locations) - your subcontractors handle this.

icon text-secondary-400 includedEnergy calculations - handled locally when required.

Related House Plans

Plan Collection
Plan Collection
Plan Collection
Plan#108-1549
Starting at$725
1434
Sq Ft
2
Story
1
Bed
2.5
Bath
1
Car
Plan Collection
Plan Collection
Plan Collection
Plan#108-1881
Starting at$900
1976
Sq Ft
2
Story
1
Bed
2
Bath
0
Car
View All

Other Plans By This Designer

Plan Collection
Plan Collection
Plan Collection
Plan#108-1923
Starting at$1150
2928
Sq Ft
1
Story
4
Bed
3
Bath
2
Car
Plan Collection
Plan Collection
Plan Collection
Plan#108-1538
Starting at$725
1216
Sq Ft
2
Story
2
Bed
2
Bath
0
Car
Plan Collection
Plan Collection
Plan Collection
Plan#108-2031
Starting at$450
1808
Sq Ft
2
Story
2
Bed
1
Bath
2
Car