3-Bedroom, 1725 Sq Ft Country Plan with Nook/Breakfast Area

Front view of Country home (ThePlanCollection: House Plan #146-1550)

Images/Plans copyrighted by designer. Photos may reflect homeowner modifications.

About House Plan #146-1550

Sq Ft
1725
Sq Ft
Bedrooms
3
Bedrooms
Bathroom
2
Baths
Half Baths
1
Half Baths
Bedrooms
2
Cars
Bedrooms
1
Stories
Bedrooms
46' 0'
Width
Bedrooms
64
Depth
Starting at$980.00What's included
STEP 1Bedrooms
STEP 2Bedrooms
STEP 3Bedrooms

Subtotal:$0
Plan Collection

How much will it cost to build?

Estimate your costs based on your location and materials.

Free Cost Instant Estimator

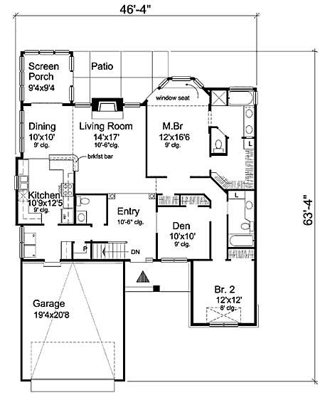
Floor Plans

Floor Plan First Story
Floor Plan First Story
Plan Collection

Can I modify this plan?

Yes! This plan can be customized—contact us for a free quote.

House Plan Description

The rooms have varying ceiling heights and each one has its own special feel. The living room has the highest ceiling and a huge fireplace. The dining room and kitchen flow together and make mealtime enjoyable for the pickiest of eaters. The den is way from the other living areas and with its smaller area and lower ceiling it makes private parties fit the room.

Home Details

Summary
Plan #:146-1550
Starting at:$980.00
Floors:1
Bedrooms:3
Full Baths:2
Half Baths:1
Garage:
Square Footage
Heated Area:1725 Sq. Ft.
First Floor:1725 Sq. Ft.
Unheated Area:
Basement:1469 Sq. Ft.
Garage:399 Sq. Ft.
Dimensions
Ridge Height:21'0"' 0''
Architectural Styles
Exterior Wall Material
BrickShakes
Roofing Type
Gable
Roof Pitch
6/12
Ceiling Height
9 Foot Ceiling
Special Feature
Dining RoomMain Level Laundry
Garage Type
Front Entry
Exterior Wall Framing
2x4
Building Lot Type
Flat Site
Porches and Exterior Features
Covered Front PorchSundeckScreened Porch/Sunroom
Master Suite Features
Main Floor MasterMaster BathroomWalk In ClosetSitting Area

What’s Included

Most plan sets include the following:

What’s Not Included

These items are  NOT included:

icon text-secondary-400 includedArchitectural or Engineering Stamp - handled locally if required.

icon text-secondary-400 includedSite Plan - handled locally when required.

icon text-secondary-400 includedMechanical Drawings (location of heating and air equipment and ductwork) - your subcontractors handle this.

icon text-secondary-400 includedPlumbing Drawings (drawings showing the actual plumbing pipe sizes and locations) - your subcontractors handle this.

icon text-secondary-400 includedEnergy calculations - handled locally when required.

Related House Plans

Plan Collection
Plan Collection
Plan Collection
Plan#117-1092
Starting at$1095
2091
Sq Ft
1
Story
3
Bed
2.5
Bath
2
Car
Plan Collection
Plan Collection
Plan Collection
Plan#142-1041
Starting at$1245
1300
Sq Ft
1
Story
3
Bed
2
Bath
2
Car
Plan Collection
Plan Collection
Plan Collection
Plan#141-1243
Starting at$1485
1640
Sq Ft
1
Story
3
Bed
2
Bath
2
Car
View All

Other Plans By This Designer

Plan Collection
Plan Collection
Plan Collection
Plan#146-2806
Starting at$980
1933
Sq Ft
2
Story
3
Bed
2
Bath
0
Car
Plan Collection
Plan Collection
Plan Collection
Plan#146-2810
Starting at$1285
3594
Sq Ft
2
Story
4
Bed
3.5
Bath
2
Car
Plan Collection
Plan Collection
Plan Collection
Plan#146-1917
Starting at$1120
2525
Sq Ft
2
Story
4
Bed
2.5
Bath
3
Car