Estimate your costs based on your location and materials.
Yes! This plan can be customized—contact us for a free quote.
Yes! This plan can be customized—contact us for a free quote.
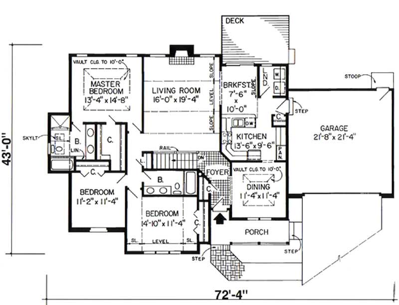
A covered porch and entry foyer show good breeding while the single-level design across 1,737sq. ft. offers magnanimous comfort. The central family room with sloped ceilings draws folks to the fireplace warmth. A fully-stocked kitchen feeds into the breakfast room and moves out to the deck. The formal dining room is proud with vaulted ceilings. The master bedroom also enjoys vaulted ceilings. A skylight and double vanities augment the master bath. Bedrooms #2 and #3 each have ample closets and pretty windowing. Their shared bath has double sinks. The front-load garage also has a back door to...
Estimate your costs based on your location and materials.
All sales of house plans, modifications, and other products found on this site are final. No refunds or exchanges can be given once your order has begun the fulfillment process. Please see our Policies for additional information.
All plans offered on ThePlanCollection.com are designed to conform to the local building codes when and where the original plan was drawn.
The homes as shown in photographs and renderings may differ from the actual blueprints. For more detailed information, please review the floor plan images herein carefully.
Estimate your costs based on your location and materials.