2-Bedroom, 1738 Sq Ft Small House Plans Plan with Wrap Around Porch

Main image for house plan # 19843

Images/Plans copyrighted by designer. Photos may reflect homeowner modifications.

About House Plan #131-1060

Sq Ft
1738
Sq Ft
Bedrooms
2
Bedrooms
Bathroom
2
Baths
Half Baths
0
Half Baths
Bedrooms
3
Cars
Bedrooms
1
Stories
Bedrooms
66' 0'
Width
Bedrooms
52
Depth
Starting at$850.00What's included
STEP 1Bedrooms
STEP 2Bedrooms
STEP 3Bedrooms

Subtotal:$0
Plan Collection

How much will it cost to build?

Estimate your costs based on your location and materials.

Free Cost Instant Estimator

Floor Plans

MAIN LEVEL FLOOR PLAN
MAIN LEVEL FLOOR PLAN
FLOOR OPTION
FLOOR OPTION
Plan Collection

Can I modify this plan?

Yes! This plan can be customized—contact us for a free quote.

House Plan Description

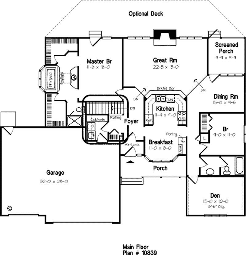
This is quite a spread. Here, 1,738 sq. ft. delivers a three-car garage with spacious work area, comfy front and back porches and a big welcoming entry foyer. Families enjoy this style kitchen. It spreads casually to a breakfast nook and beyond to formal dining. The sunken great room has WOW appeal, a fireplace, plus entry to the screened porch. The master suite owns two enormous walk-ins and sky-lit bathroom. Bedroom #2 snuggles up to a shared bath. Bedroom #3 converts easily to a home office or den.

Home Details

Summary
Plan #:131-1060
Starting at:$850.00
Floors:1
Bedrooms:2
Full Baths:2
Half Baths:0
Garage:
Square Footage
Heated Area:1738 Sq. Ft.
First Floor:1738 Sq. Ft.
Unheated Area:
Garage:796 Sq. Ft.
Dimensions
Ridge Height:24'6' 0''
Architectural Styles
Exterior Wall Material
Vinyl Siding
Roofing Type
GableHip
Roof Pitch
8/12
Ceiling Height
8 Foot Ceiling
Special Feature
FireplaceHome Office
Garage Type
Attached Garage
Exterior Wall Framing
2x62x4

What’s Included

Most plan sets include the following:

icon text-secondary-400 includedExterior elevations

icon text-secondary-400 includedFoundation plans

icon text-secondary-400 includedInterior elevations

icon text-secondary-400 includedElectrical layout

icon text-secondary-400 includedDetailed house floor plans

What’s Not Included

These items are  NOT included:

icon text-secondary-400 includedArchitectural or Engineering Stamp - handled locally if required.

icon text-secondary-400 includedSite Plan - handled locally when required.

icon text-secondary-400 includedMechanical Drawings (location of heating and air equipment and ductwork) - your subcontractors handle this.

icon text-secondary-400 includedPlumbing Drawings (drawings showing the actual plumbing pipe sizes and locations) - your subcontractors handle this.

icon text-secondary-400 includedEnergy calculations - handled locally when required.

Related House Plans

Plan Collection
Plan Collection
Plan Collection
Plan#138-1003
Starting at$1050
1922
Sq Ft
1
Story
2
Bed
2
Bath
1
Car
Plan Collection
Plan Collection
Plan Collection
Plan#101-1336
Starting at$1040
2049
Sq Ft
1
Story
2
Bed
2
Bath
3
Car
Plan Collection
Plan Collection
Plan Collection
Plan#144-1024
Starting at$1110
1389
Sq Ft
1
Story
2
Bed
2
Bath
2
Car
View All

Other Plans By This Designer

Plan Collection
Plan Collection
Plan Collection
Plan#131-1013
Starting at$900
2083
Sq Ft
2
Story
3
Bed
2.5
Bath
2
Car
Plan Collection
Plan Collection
Plan Collection
Plan#131-1047
Starting at$800
1792
Sq Ft
1
Story
3
Bed
2
Bath
0
Car
Plan Collection
Plan Collection
Plan Collection
Plan#131-1243
Starting at$600
972
Sq Ft
2
Story
3
Bed
1
Bath
0
Car