2-Bedroom, 1755 Sq Ft Ranch Plan with Fireplace

Country Ranch home (ThePlanCollection: Plan #194-1040)

Images/Plans copyrighted by designer. Photos may reflect homeowner modifications.

About House Plan #194-1040

Sq Ft
1755
Sq Ft
Bedrooms
2
Bedrooms
Bathroom
2
Baths
Half Baths
0
Half Baths
Bedrooms
2
Cars
Bedrooms
1
Stories
Bedrooms
43' 0'
Width
Bedrooms
63
Depth
Starting at$1195.00What's included
STEP 1Bedrooms
STEP 2Bedrooms
STEP 3Bedrooms

Subtotal:$0
Plan Collection

How much will it cost to build?

Estimate your costs based on your location and materials.

Free Cost Instant Estimator

Floor Plans

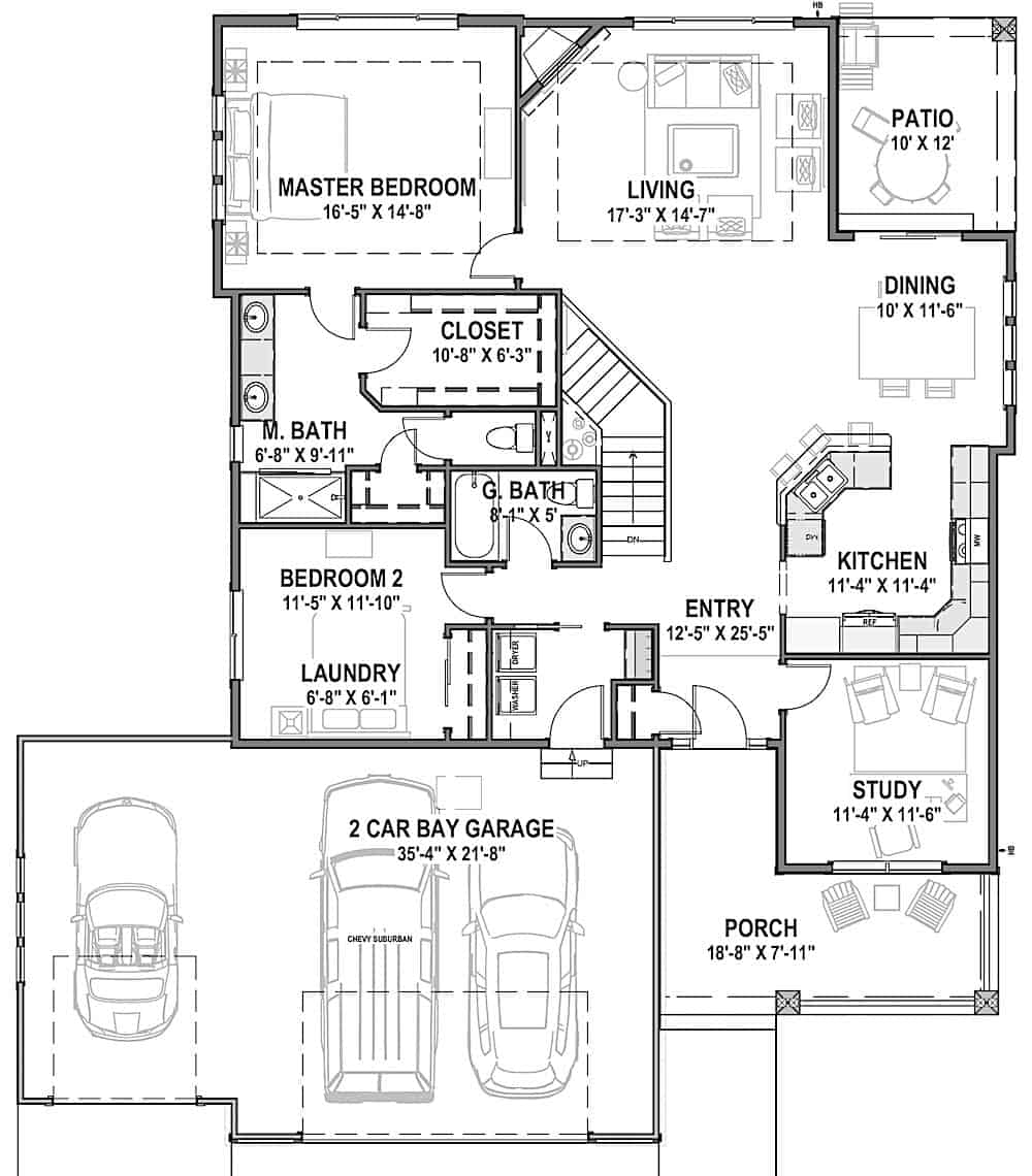
Floor Plan Main Level
Floor Plan Main Level
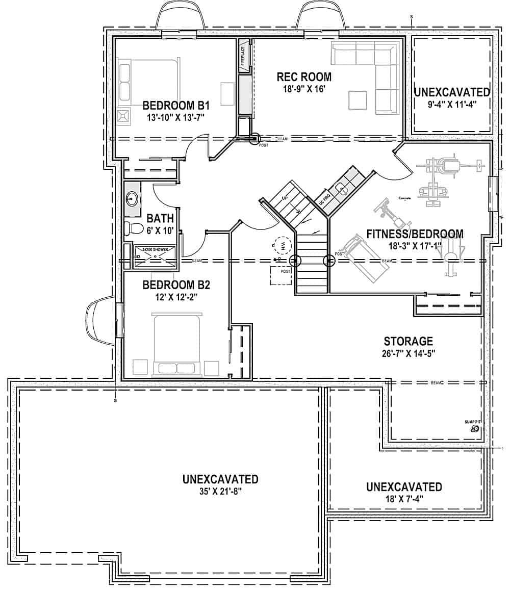
Floor Plan Basement
Floor Plan Basement
Plan Collection

Can I modify this plan?

Yes! This plan can be customized—contact us for a free quote.

House Plan Description

Here is something for someone who loves a modest and simple but elegant house. This Ranch-Country style residence with open floor plan is definitely the one for you. There is no wasted space in this adorable house with 1755 square feet of living space, which  includes 2 bedrooms and 2 bathrooms, plus an additional 1243 square feet of conditioned space and 390 square feet of unfinished space in the optional basement if one chooses to finish it according to the floor plan.

Home Details

Summary
Plan #:194-1040
Starting at:$1195.00
Floors:1
Bedrooms:2
Full Baths:2
Half Baths:0
Garage:
Square Footage
Heated Area:1755 Sq. Ft.
Basement:1243 Sq. Ft.
First Floor:1755 Sq. Ft.
Unheated Area:
Basement:390 Sq. Ft.
Garage:528 Sq. Ft.
Dimensions
Architectural Styles
Exterior Wall Material
Vinyl SidingBrickWood Siding
Roofing Type
Gable/Dormer
Roofing Material
Asphalt Shingles
Roof Pitch
8/12
Ceiling Height
9 Foot Ceiling
Special Feature
FireplaceFamily RoomMain Level LaundryLibrarySplit BathroomOpen Floor Plan
Garage Type
Attached GarageFront Entry
Fireplaces
One Fireplace
Exterior Wall Framing
2x6
Building Lot Type
Narrow Lot Design
Kitchen Features
Kitchen IslandPeninsula/Eating Bar
Porches and Exterior Features
Covered Front PorchCovered Rear Patio
Master Suite Features
Main Floor MasterMaster BathroomWalk In Closet

What’s Included

Most plan sets include the following:

icon text-secondary-400 includedCover Sheet - project statistics, including square footage, 3D images (typically), general notes, and drawings sheet index.

icon text-secondary-400 includedFoundation/basement plan - showing room/wall layout, beams, posts, joist direction, and often electrical outlets, switches, and light locations.

icon text-secondary-400 includedMain Level Plan - floor plan rooms and walls dimensioned, window and door sizes noted, plumbing, millwork locations, and other general notes.

icon text-secondary-400 includedUpper-Level Plan (if needed) - same information as Main Level.

icon text-secondary-400 includedMain Level Electrical Plan - electrical outlets, switches, and light locations shown.

icon text-secondary-400 includedUpper-Level Electrical Plan (if needed) - electrical outlets, switches, and light locations shown. (sometimes just the lighting is shown)

icon text-secondary-400 includedExterior Elevations - Elevations of the Front and Right side with notes, dimensions, and material designations.

icon text-secondary-400 includedSections and details - One or more building sections to show vertical relationships and construction plate heights, details as needed.

What’s Not Included

These items are  NOT included:

icon text-secondary-400 includedArchitectural or Engineering Stamp - handled locally if required.

icon text-secondary-400 includedSite Plan - handled locally when required.

icon text-secondary-400 includedMechanical Drawings (location of heating and air equipment and ductwork) - your subcontractors handle this.

icon text-secondary-400 includedPlumbing Drawings (drawings showing the actual plumbing pipe sizes and locations) - your subcontractors handle this.

icon text-secondary-400 includedEnergy calculations - handled locally when required.

Related House Plans

Plan Collection
Plan Collection
Plan Collection
Plan#138-1003
Starting at$1050
1922
Sq Ft
1
Story
2
Bed
2
Bath
1
Car
Plan Collection
Plan Collection
Plan Collection
Plan#178-1047
Starting at$945
1394
Sq Ft
1
Story
2
Bed
2
Bath
2
Car
Plan Collection
Plan Collection
Plan Collection
Plan#100-1205
Starting at$1300
1440
Sq Ft
1
Story
2
Bed
2
Bath
2
Car
View All

Other Plans By This Designer

Plan Collection
Plan Collection
Plan Collection
Plan#194-1056
Starting at$1395
3582
Sq Ft
1
Story
4
Bed
4.5
Bath
4
Car
Plan Collection
Plan Collection
Plan Collection
Plan#194-1057
Starting at$1395
3692
Sq Ft
1
Story
4
Bed
4.5
Bath
4
Car
Plan Collection
Plan Collection
Plan Collection
Plan#194-1010
Starting at$1395
2605
Sq Ft
1
Story
2
Bed
2.5
Bath
3
Car