3-Bedroom, 1858 Sq Ft Ranch Plan with Fireplace

Front elevation of Ranch home (ThePlanCollection: House Plan #147-1064)

Images/Plans copyrighted by designer. Photos may reflect homeowner modifications.

About House Plan #147-1064

Sq Ft
1858
Sq Ft
Bedrooms
3
Bedrooms
Bathroom
3
Baths
Half Baths
0
Half Baths
Bedrooms
2
Cars
Bedrooms
1
Stories
Bedrooms
62' 0'
Width
Bedrooms
51
Depth
Starting at$693.00What's included
STEP 1Bedrooms
STEP 2Bedrooms
STEP 3Bedrooms

Subtotal:$0
Plan Collection

How much will it cost to build?

Estimate your costs based on your location and materials.

Free Cost Instant Estimator

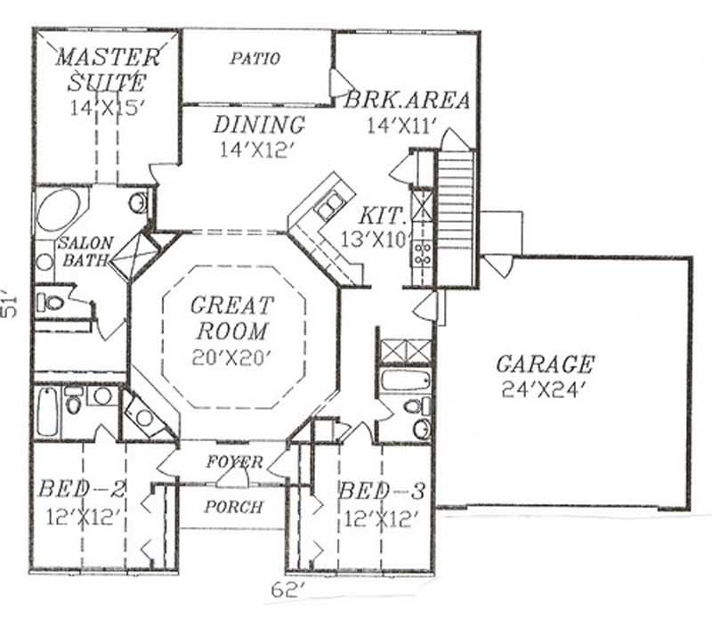
Floor Plans

Floor Plan First Story
Floor Plan First Story
Plan Collection

Can I modify this plan?

Yes! This plan can be customized—contact us for a free quote.

Additional Notes from Designer

PLEASE NOTE!! Mirror Reverse ONLY available if purchasing a PDF. Right Reading Reverse ONLY available if purchasing a CAD!

TOTAL SF. 1858, MAIN LEVEL SF. 1858, WIDTH 62'-0", DEPTH 51'-4", BEDROOMS 3, BATHS 3, GARAGE 2 CAR, STORIES 1, EXTERIOR WALL 2X4, EXTERIOR SURFACE SIDING/BRICK, CEILING HEIGHTS MAIN 9'-0", FOUNDATION BASEMENT, SPECIAL FEATURES: GREAT ROOM 10' STEP UP CEILING, MASTER BEDROOM VAULTED HIP

House Plan Description

This beautiful Ranch style home with Bungalow attributes (House Plan #147-1064) has 1858 living sq ft. The 1-story floor plan includes 3 bedrooms.

Home Details

Summary
Plan #:147-1064
Starting at:$693.00
Floors:1
Bedrooms:3
Full Baths:3
Half Baths:0
Garage:
Square Footage
Heated Area:1858 Sq. Ft.
First Floor:1858 Sq. Ft.
Unheated Area:
Garage:563 Sq. Ft.
Dimensions
Depth:51' 4''
Ridge Height:20'0"' 0''
Architectural Styles
Exterior Wall Material
Brick
Roofing Type
Gable
Roof Pitch
12/126/12
Ceiling Height
9 Foot Ceiling
Special Feature
FireplaceDining RoomMain Level Laundry
Garage Type
Front Entry
Fireplaces
One Fireplace
Exterior Wall Framing
2x4
Building Lot Type
Flat Site
Kitchen Features
Nook/Breakfast Area
Porches and Exterior Features
Covered Front Porch
Master Suite Features
Main Floor MasterMaster BathroomWalk In Closet

What’s Included

Most plan sets include the following:

icon text-secondary-400 includedFoundation Plan

icon text-secondary-400 includedFloor plans

icon text-secondary-400 includedRoof plan

icon text-secondary-400 includedExterior Elevations

icon text-secondary-400 includedCross Sections & typical details

icon text-secondary-400 includedInterior elevations as needed

icon text-secondary-400 includedDoor & Window schedule

icon text-secondary-400 includedElectrical layout

What’s Not Included

These items are  NOT included:

icon text-secondary-400 includedArchitectural or Engineering Stamp - handled locally if required.

icon text-secondary-400 includedSite Plan - handled locally when required.

icon text-secondary-400 includedMechanical Drawings (location of heating and air equipment and ductwork) - your subcontractors handle this.

icon text-secondary-400 includedPlumbing Drawings (drawings showing the actual plumbing pipe sizes and locations) - your subcontractors handle this.

icon text-secondary-400 includedEnergy calculations - handled locally when required.

Related House Plans

Plan Collection
Plan Collection
Plan Collection
Plan#207-1002
Starting at$1275
2017
Sq Ft
1
Story
3
Bed
3
Bath
2
Car
Plan Collection
Plan Collection
Plan Collection
Plan#147-1037
Starting at$578
1803
Sq Ft
1
Story
3
Bed
3
Bath
2
Car
View All

Other Plans By This Designer

Plan Collection
Plan Collection
Plan Collection
Plan#147-1156
Starting at$809
1950
Sq Ft
2
Story
4
Bed
2.5
Bath
2
Car
Plan Collection
Plan Collection
Plan Collection
Plan#147-1165
Starting at$809
2399
Sq Ft
1
Story
3
Bed
2
Bath
3
Car
Plan Collection
Plan Collection
Plan Collection
Plan#147-1164
Starting at$693
1748
Sq Ft
1
Story
3
Bed
2
Bath
3
Car